| Tác giả |
|
longly Hội viên


Đă tham gia: 30 December 2003 Nơi cư ngụ: United States
Hiện giờ: Offline Bài gửi: 307
|
| Msg 181 of 299: Đă gửi: 24 March 2006 lúc 10:45am | Đă lưu IP
|
|
|
Chào anh BinhNguyenQuan,
Mấy tuần nay v́ bận quá nên lâu lâu vào đọc các phần trả lời của anh, không phụ anh trả lời các câu hỏi, nên tôi thấy ngại quá. Chẳn những thế, hôm nay tôi lại thêm câu hỏi cho anh th́ thật t́nh không biết nói làm sao đây. Thôi th́ cứ hỏi trước, mọi việc tính sau vậy .
Theo cách luận đoán của HKPT về H́nh thể th́ thứ tự ưu tiên là: hướng, toạ, cửa chính, cửa phụ, bếp, cầu thang (hoặc hành lang), cửa pḥng, vị trí thủy, v.v.
Như về Lư khí th́ khó xác định thứ tự ưu tiên khi phải xét đến. Ví dụ như trước tiên ta phải chú trọng đến Hướng tinh và Sơn tinh ở hướng và toạ. Tuy nhiên, đôi khi các sao này lại bị ảnh hưởng bởi các phương vị Chính thần, Linh thần, v.v. Ngoài ra c̣n phải kể đến các cuộc Tam ban quái, Thập hợp, hoặc các hợp tinh Tiên thiên, Hậu thiên cũng có ảnh hưởng khác nhau đến trạch bàn.
Như vậy, câu hỏi đặt ra là: Đối với Lư khí th́ ta phải theo thứ tự ưu tiên như thế nào khi luận xét để có thể giải đoán hoặc tạo phương, lập hướng cho một tinh bàn?
Kính,
LongLy.
__________________ Nhất thân nhất kiếm tầm long mạch
Bách sơn bách hướng ngoái cổ t́m
|
| Quay trở về đầu |
|
| |
chuctuu Học Viên Lớp Dịch Lư

Đă tham gia: 14 February 2006 Nơi cư ngụ: Vietnam
Hiện giờ: Offline Bài gửi: 47
|
| Msg 182 of 299: Đă gửi: 24 March 2006 lúc 9:15pm | Đă lưu IP
|
|
|
Cháu chào các bác
Mấy hôm vừa rồi cháu vừa đi công tác xa mới, về nên hôm nay cháu mới có thời gian để đọc các lời chỉ dẫn và khuyên bảo của các bác.
Thành thật cháu không biết làm ǵ hơn ngoài việc cảm ơn các bác đă dành thời gian và cho cháu các lời phân tích, chỉ dẫn và khuyên bảo về mảnh đất của cháu. V́ vậy cháu đă dừng lại kế hoạch xây dựng nhà trong năm nay, bỏ thiết kế cũ (mặc dù đă trả tiền thiết kế) và rời kế hoạch xây dựng sang năm sau (2007).
Theo như chỉ dẫn và khuyên bảo của các bác, cháu xin được phép phác thảo qua sơ đồ nhà theo một số phương án dưới đây để các bác tham khảo và xin được sự chỉ dẫn của các bác.
Cháu dự định sẽ bỏ tầng trệt (tầng GARA), bỏ cầu thang từ sân lên tầng 1. Chỉ xây một tầng và bố trí lại các pḥng và các cửa như sau:
Phương án 1:
Phương án 2:
Phương án 3:
Phương án 4:
(note: v́ view của mỗi h́nh khác nhau, lên kích cỡ các h́nh khác nhau. Thực tế kích thước chiều dài và rộng nhà như nhau).
Rất mong nhận được sự giúp đỡ của các bác.
Kính thư
ChucTuu
|
| Quay trở về đầu |
|
| |
BINHNGUYENQUAN Hội viên

Đă tham gia: 23 December 2003 Nơi cư ngụ: United States
Hiện giờ: Offline Bài gửi: 818
|
| Msg 183 of 299: Đă gửi: 25 March 2006 lúc 1:28pm | Đă lưu IP
|
|
|
Chào anh T́m Ṭi,
Chúng ta vào đây mục đích chỉ là học hỏi và trao đổi với nhau thôi, nên xin anh đừng dùng tới những từ ngữ "diễm phước cho mọi người" nghe ghê gớm quá và lại khiến cho những người khác hiểu lầm. Tŕnh độ của BNQ th́ thật sự cũng chưa đủ để chỉ bảo cho ai, chỉ là đưa ra những ǵ ḿnh đă trải qua hay phát hiện được trong quá tŕnh học hỏi về Phong thuỷ thôi, thế mà đôi khi cũng c̣n có những sai lầm như anh và mọi người đă thấy th́ làm sao có thể chỉ bảo ai được???
Về vấn đề Chính thần với Linh thần th́ BNQ nghĩ cũng chỉ v́ những câu nói như anh đă trích dẫn mà khiến cho người mới học về Huyền không lầm lẫn hoặc lo sợ trong vấn đề có thuỷ hay không có thuỷ tại phương vị của Chính thần. Nhưng thật ra nếu 1 nhà mà phương vị của Chính thần đă đắc vượng khí th́ có cửa hoặc thêm thuỷ hay đường đi đều sẽ khá giả như thường, chứ không có vấn đề vượng khí sẽ v́ vậy mà trở thành Linh thần đâu. Điều này BNQ đă nh́n thấy rất nhiều nhà hướng chính TÂY (tức hướng MĂO) trong vận 7 là hướng của Chính thần, nhưng nhờ có cửa trước hoặc thuỷ ở đó nên vẫn khá, tài chánh ổn định chứ không bị phá tán ǵ cả. V́ vượng khí mà gặp thuỷ th́ dù nằm tại phương vị nào: Chính thần hay Phản ngâm, Phục ngâm... cũng vẫn tốt như thường. Chỉ đến lúc vào cuối vận khi vượng khí sắp chuyển sang suy th́ mới nảy sinh ra tai hoạ mà thôi. Cho nên nếu anh để ư th́ sẽ thấy trong vận 8 này, những nhà hướng SỬU (tức hướng ĐÔNG BẮC, là phương vị của Chính thần) nếu phía trước thoáng và có cửa trước th́ cũng vẫn khá. Nếu lại có thêm thuỷ ở đó th́ càng khá hơn nữa. Riêng phương vị của Linh thần th́ chắc có lẽ anh cũng đồng ư với BNQ nên ở đây không c̣n ǵ để nói thêm.
Riêng về phía TÂY NAM của nhà anh có hướng tinh Nhất bạch tới, là tiến khí của tương lai, nên nếu có thuỷ cũng tốt cho tài lộc. Lại thêm đây là phương vị của Linh thần nên nếu có thuỷ th́ lại càng vượng thêm cho tài lộc mà thôi.
C̣n trường hợp nhà cũ của anh th́ đă có anh Long Lư phân tích lư do tại sao, nên BNQ chẳng phải nói thêm làm ǵ. Chỉ có điều muốn nói là nhà dù h́nh cuộc bên ngoài có hoàn mỹ tới mức nào mà không hợp được với lư khí của phi tinh th́ cũng chuốc lấy đau khổ, tai hoạ mà thôi. Ngược lại, dù h́nh cuộc bên ngoài rất xấu, nhưng nếu hợp được với phi tinh th́ vẫn có thể vượng phát 1 thời. Chỉ nên lưu ư khi đến cuối vận th́ nên tu sửa hay dọn nhà đi chỗ khác mà thôi.
Cám ơn anh đă đưa ra trường hợp nhà cũ lẫn nhà mới để cho mọi người cùng kiểm nghiệm. Chúc anh và gia đ́nh nhiều thành công và hạnh phúc trong cuộc sống.
Chào anh,
BNQ
|
| Quay trở về đầu |
|
| |
BINHNGUYENQUAN Hội viên

Đă tham gia: 23 December 2003 Nơi cư ngụ: United States
Hiện giờ: Offline Bài gửi: 818
|
| Msg 184 of 299: Đă gửi: 25 March 2006 lúc 2:17pm | Đă lưu IP
|
|
|
Chào anh Long Lư,
Biết là dạo này anh rất bận, nên lúc nào anh có thể trở lại diễn đàn và giúp trả lời được cho ai th́ tốt lúc đó thôi. Chứ c̣n BNQ cũng mong mọi chuyện của anh mau chóng kết thúc và đạt được như ư muốn, để anh có thể phấn khởi trở lại diễn đàn mà giúp đỡ thêm cho những ai đang cần có sự giúp đỡ.
Về câu hỏi của anh th́ BNQ nghĩ nếu về lư khí hoặc loan đầu th́ vẩn phải chú ư đến sơn và hướng tinh ở 2 phương toạ và hướng trước. Nếu v́ 1 lư do ǵ đó mà 2 phương này không đạt được những yêu cầu thoả đáng th́ mới nh́n vào những phương khác xem có thể bù đắp lại được không? Lấy thí dụ như 1 nhà trong vận 8 mà sơn tinh phía sau nhà là sao Ngũ hoàng th́ tất nhiên là nhân đinh trong nhà rất kém, có thể bị hiếm con hay tuyệt tự. Thế nhưng nếu tại 1 phía nào đó của căn nhà có núi hay nhà lầu cao tầng, mà nơi đó lại có sơn tinh Bát bạch tới th́ lại vượng cho nhân đinh, nên đoán về vấn đề nhân sự của nhà này không đến nỗi và vẫn có thể dùng để ở được. Hay 1 nhà có hướng MĂO trong vận 8 là bị tử khí Tứ lục tới hướng. Nhà này lại chỉ có cửa trước, c̣n phía sau th́ lại bít kín, không có cửa th́ thấy ngay là có khó khăn lớn rồi. Nhưng nếu nhà này lại nằm ngay ngă tư đường ở phía ĐÔNG NAM, nơi đó lại có nhiều người hay xe cộ qua lại th́ lại đắc Thành môn và vẫn có thể khá như thường. Cho nên khi xét đến lư khí của 1 căn nhà th́ vẫn phải chú ư đến toạ và hướng trước, rồi mới để ư đến những điểm đặc biệt về h́nh thế loan đầu bên ngoài hay cấu trúc, thiết kế bên trong của căn nhà mà xác định. Điều này đ̣i hỏi phải thực hành và coi phong thuỷ cho rất nhiều nhà th́ mới có thể dần dần thấu đáo và kết hợp được thôi. Chứ c̣n dù có giảng giải ra tới thiên kinh vạn quyển cũng chẳng đi tới đâu, chỉ làm cho người đọc hay hậu học thêm rối trí.
C̣n trong trường hợp các sao bị ảnh hưởng bởi vị trí của Linh thần hay Chính thần th́ nếu phi tinh là vượng tinh th́ không có ǵ ngại, dù là vị trí của Chính thần vẫn có thể dùng thuỷ như thường. Chỉ có khi phi tinh là suy hay tử khí th́ mới đáng ngại mà thôi. Vấn đề Phản ngâm, Phục ngâm cũng vậy. C̣n hợp thập hay kết hợp thành những số Tiên thiên... th́ thông thường là tốt, như nhà có vượng tinh 8 ở hướng mà bên phải nhà có hướng tinh 3, nơi đó lại có lối đi hay sông ng̣i dẫn từ từ hướng tới th́ là 3-8 kết hợp thành Mộc tiên thiên, chủ vượng phát tài lộc lẫn công danh. Chỉ có 1 số trường hợp đặc biệt như nhà anh T́m Ṭi, do hướng bị kiêm nhiều, vượng tinh không chắc đă thực sự tới hướng mà lại có 3-8 kết hợp th́ mới đáng lo ngại mà thôi. Cũng may v́ nhà anh ấy có thuỷ lớn từ xa chiếu tới nên mới hoá hung thành cát mà thôi.
Kính,
BNQ
|
| Quay trở về đầu |
|
| |
Star Học Viên Lớp Dịch Lư


Đă tham gia: 15 October 2004
Hiện giờ: Offline Bài gửi: 287
|
| Msg 185 of 299: Đă gửi: 25 March 2006 lúc 11:43pm | Đă lưu IP
|
|
|
Chào 2 anh, thấy anh Longly viết lại là mừng, v́ anh có nhiều câu hỏi "y chóc" để anh BNQ trả lời làm mọi người lại có dịp học hỏi thêm. C̣n tôi có lẽ cũng sẽ làm phiền 2 anh nhiều v́ thắc mắc mỗi ngày mỗi nảy sinh, nhất là sau khi đọc được một cái ǵ đó... Có lúc tôi không dám đọc nữa v́ sợ "đau cái điền"! Nhân đây tâm sự với các anh và mọi người đôi chút.
Tôi nhận thấy một điểm quan trọng là rất nhiều người vẫn dựa vào Bát trạch để đặt câu hỏi cho mệnh và nhà hoặc ít ra cũng chờ câu trả lời về hướng đó. Thuyết Phi tinh đối với nhiều người có lẽ là xa lạ, và tôi cũng thấy rất lạ lùng khi chả thấy ai hỏi lại ǵ cả?
V́ tôi tự đặt ḿnh vào trường hợp đó khi tôi mới bước vào đây, thực tế là chỉ nắm được các lư thuyết của Bát trạch, mà điều này th́ dĩ nhiên là phổ biến v́ sách vở tràn ngập thị trường, dễ mua dễ đọc. Nên khi biết được thêm các cái "món" gọi là "phi tinh" và nào "tọa trước","hướng sau" hay là "hướng này" th́ "tọa đó"... đúng là hoa cả mắt!
Nhưng theo lời anh Longly tôi đă làm một danh sách "tử vi nhà", tức là các dữ kiện từ khi mua nhà cho đến bây giờ, lôi các tinh bàn của năm đó ra mà nghiệm. Và phải nói là cực kỳ ngạc nhiên v́ trên lư thuyết cơ bản là mọi sự đúng là kể như đă sắp đặt trước! Ai không tin th́ cứ dành th́ giờ làm điều này thử coi. Dĩ nhiên, không chỉ là "phi tinh" mà c̣n nhiều yếu tố phụ tác động vào đấy mà ḿnh không ngờ, thí dụ như cái món "linh thần", "chính thần", "có hay không có thủy" mà tôi mới học được.
Cái thí dụ nhà có sơn tọa là Ngũ hoàng mà vẫn phát đinh trong một thời gian mà anh BNQ nêu trên, tôi xác nhận trong trường hợp của tôi là có xảy ra. V́ đúng là phía Tây nhà tôi rất vượng nhờ có Bát bạch và Cửu Tử, nên trong ṿng 5 năm các con các cháu tới nhà tôi ở thường xuyên, nói chung là tấp nập lạ thường. Nhưng đùng 1 cái, các cháu bỏ đi hết trong một năm với nhiều lư do không tốt lắm. Bây giờ tính lại phi tinh năm đó th́ quả nhiên là Ngũ hoàng lại đến chơi hướng Tây, trong khi đó "bóng râm" của nhà hàng xóm bắt đầu có hiệu lực! Tức là sau vài năm đến ngự phía sau nhà tôi, khí động mạnh từ cửa ra vào và garage của họ tác động vào cửa nhà phía sau chúng tôi.
Phải nói là trên thực tế, nói nghĩa đen là "bóng râm" cũng không ngoa đâu, v́ nhà của họ cao lắm, che hết ánh sáng vườn nhà tôi ở phía Đông, cho nên chúng tôi đều ngán ngẫm nh́n khu vườn rau ngày ngày lụn bại dần, cho đến lúc phải bỏ luôn trồng rau mà thôi ! Thú vật trong vườn cũng không yên, v́ chỗ đó động quá, dần dà chúng tôi cũng mất hết đàn thỏ v́ tự nhiên chúng "xé rào" bỏ đi đâu mất, con chó th́ nhảy sang hàng xóm cứ nhè cắn thằng bé con bên ấy. Thế là chiến tranh xảy ra, và cuối cùng lại tốn tiền dựng lên cái hàng rào gỗ thật là cao để che luôn tầm nh́n của cửa nhà bên ấy! Sau đó là tạm yên thân và sự liên hệ chỉ c̣n là những câu chào hỏi qua loa phải phép. Nhưng tức nhất là cái vườn hoa, vườn rau giờ kể như vườn hoang!
Tóm lại, trong trường hợp 2 cửa nhà đối diện, cửa trước cửa sau ǵ cũng thế, miễn là có động khí nhiều th́ có thể xảy ra vấn đề lớn. Ở đây, chúng tôi là người bị thiệt tḥi v́ ánh sáng không c̣n chiếu vào vườn nhà nữa.
Theo Bát trạch, khu Đông và Đông Nam của chúng tôi là Họa hại, Lục sát. Câu hỏi là nếu chúng là những khu xấu, không nên làm nơi sinh họat nhiều th́ tại sao có những năm rất tốt đẹp cho cả người lẫn vật? Nếu tính theo phi tinh th́ các lưu niên tốt ở phía Đông và Đông Nam đó lưu phiên nhau có các Bát bạch, Cửu tử, Thất xích đến ngự và ít ra không có Ngũ hoàng đến chính hướng!
Chắc có lẽ tôi dị ứng với Ngũ hoàng nên cứ nhớ là trong vận 8 "ổng" ở đâu trong nhà tôi, đó là hướng Tây Nam. Thành ra tôi đă nhanh nhẩu đoảng báo cho anh hungvd là không nên xây nhà năm nay v́ hướng Tây Nam có Ngũ hoàng! Mà thực ra là hướng Tây trong năm 2006. Cám ơn mọi người đă sửa sai dùm.
Tôi đă học được chút ít căn bản môn Phi tinh, nhưng c̣n nhiều thứ tôi chưa hiểu ǵ cả, thí dụ như Thành môn chính, thành môn phụ, các số kết hợp để thông khí...v.v... Khi nào 2 anh có th́ giờ th́ nói thêm dùm về nguyên tắc tính. Tôi th́ tôi thích khi nào tôi hiểu được nguyên lư và nghiệm cho bản thân th́ tôi mới tin . (Xin phép đùa chút cho không khí ngũ hoàng bay đi khỏi bài này ấy mà.)
Sửa lại bởi Star : 26 March 2006 lúc 12:09am
|
| Quay trở về đầu |
|
| |
longly Hội viên


Đă tham gia: 30 December 2003 Nơi cư ngụ: United States
Hiện giờ: Offline Bài gửi: 307
|
| Msg 186 of 299: Đă gửi: 26 March 2006 lúc 2:26pm | Đă lưu IP
|
|
|
Chào anh Star,
Bản thân tôi cũng như số đông là làm quen với Bát trạch trước v́ môn này rất thông dụng và dể hiểu. Nhưng mức độ chính xát không cao, đôi khi có mâu thuẩn v́ cách áp dụng không đồng nhất hoặc bị xai lạc. Sau khi biết thêm lư thyết Huyền Không Phi tinh th́ mới thấy cách ứng dụng chi tiết hơn, và mức độ chính xát cao hơn.
Theo kinh nghiệm bản thân, lúc trước trong vận 7 tôi ở căn nhà toạ Măo hướng Dậu. Khi đó chưa biết tí ǵ về phong thuỷ, nhưng công ăn việc làm, sức khoẻ cả gia đ́nh đều rất tốt. Đến gần cuối vận 7, khoản từ năm 2001, 2002 th́ mọi việc đều theo chiều hướng ngược lại. Chính v́ vậy tôi mới bắt đầu t́m hiểu thêm các môn khoa học Đông phương. Môn đầu tiên tôi làm quen là Bát trạch. Trong khoản thời gian đó cứ nghĩ rằng hướng nhà không hợp với Mệnh quái, và Trạch quái của căn nhà đang ở phạm Tuyệt Mạng. Cho nên tôi quyết định t́m nhà mới cho hợp Mệnh quái, và dùng lư thuyết Bát trạch để chọn nhà. Sau khi chọn căn nhà hợp với Mệnh quái, nhưng mọi việc cũng xấu như lúc chưa dọn nhà, th́ tôi mới đâm ra ngờ vực hoặc là ḿnh dùng sai, hoặc là lư thuyết Bát trạch không đúng trong trường hợp của ḿnh. Rất may tôi được làm quen với môn KHPT qua những bài viết hấp dẩn của anh BNQ, cụ thể là tôi biết một trường hợp mà anh ấy giúp cho gia chủ đạt được ư nguyện. Sau khi biết chút it về những lư thuyết này, và kiểm chứng trong thời gian ở căn nhà trước đây th́ tôi mới thấy tuy cả hướng và nhà không tốt theo Bát trạch, nhưng thực tế mọi việc đều tốt trong thời gian đầu, và trở nên xấu khi đến gần cuối vận 7, rất đúng với lư thuyết của HKPT.
Qua kinh nghiệm thực tế, tôi rút ra kết luận: lư thuyết HKPT theo xát với thời gian, vận hạn hơn lư thuyết Bát trạch. Nếu chỉ áp dụng Bát trạch th́ tỷ lệ chính xát rất thấp v́ mọi việc tốt xấu đều thay đổi, không dừng ở một thời điểm nào cả.
Tuy nhiên, lư thuyết Bát trạch vẩn có đất dụng vơ của nó, nhưng phải kết hợp với lư thuyết HKPT th́ mới được hổ trợ xát thực hơn. Có nhiều ư kiến cho rằng Bát trạch chỉ có thể áp dụng trên Mệnh quái của từng cá nhân, trong khi HKPT phải được áp dụng lên toàn trạch vận, mà trạch vận th́ ảnh hưởng tất cả mọi người sống trong căn nhà đó. Ví dụ như trong vận 8, căn nhà tọa Tốn hướng Càn được vượng đinh vượng tài. Căn nhà này có cửa chính ở hướng Tây nên rất tốt cho người có Mệnh quái thuộc Tây tứ mệnh. Mặc dù ai ở trong nhà này cũng đều hưởng được vượng đinh vượng tài, nhưng người Tây mệnh có thể có ưu thế hơn người Đông mệnh. V́ lư do này mà người ta áp dụng Bát trạch cho người Đông mệnh trong những trường hợp như đặt giường ngủ theo hướng sinh khí để được tốt đẹp thêm. Cho nên, mỗi lư thuyết đều có ưu điểm riêng, nhưng phải được áp dụng đúng th́ mới phát huy hết công năng của nó. Ngược lại, nếu dụng xai th́ tai hoạ khó lường.
Nhân đây tôi cũng xin nói sơ qua lư thuyết Thành môn, v́ phần này có viết trong mục "Phong-thủy Bát-trạch và Huyền-không-hoc", nếu có cơ hội chúng ta sẻ trở lại bàn xâu thêm.
Ứng dụng của Thành môn là để bổ cứu cho hướng chính trong trường hợp hướng chính bị suy, tử khí chiếu đến. Đối với dương trạch, lư thuyết Thành môn có thể dùng để mở cửa phụ dùng thay cho cửa chính, hoặc bỏ cửa củ và trổ cửa mới, hoặc mở cửa sổ đón vượng khí. Cách này thường được anh BNQ hướng dẫn trong nhiều bài viết trả lời cho mọi người.
Lư thuyết Thành môn cũng cần dùng trong các cuộc Thượng sơn hạ thuỷ hoặc cuộc song tinh đáo tọa để bổ cứu hướng chính cho vượng tài.
Cách t́m Thành môn, nói ngắn gọn là dùng vận tinh của cung ở hai bên hướng chính đưa và trung cung để xét xem vượng tinh có đến một trong hai cung đó không. Nếu có th́ dùng được hướng của cung đó. Cách xét th́ dùng dương hoặc âm để phi thuận hoặc nghịch tùy vào Thiên-Địa-Nhân nguyên long của hướng chính. Thành môn chính ở hướng kết hợp với hướng chính thành cập quẻ tiên thiên 6-1, 8-3, 4-9, 2-7. Thành môn phụ ở hướng kết hợp với hướng chính thành các cập 1-8, 3-4, 9-2, 7-6. Thành môn chính có ảnh hưởng mạnh hơn Thành môn phụ.
Kính,
LongLy.
__________________ Nhất thân nhất kiếm tầm long mạch
Bách sơn bách hướng ngoái cổ t́m
|
| Quay trở về đầu |
|
| |
longly Hội viên


Đă tham gia: 30 December 2003 Nơi cư ngụ: United States
Hiện giờ: Offline Bài gửi: 307
|
| Msg 187 of 299: Đă gửi: 26 March 2006 lúc 6:07pm | Đă lưu IP
|
|
|
Chào Chuctuu,
Theo những đề nghị tôi đọc của anh BNQ th́ phương án 1 là thích hợp nhất. Duy chỉ kích thước cửa chính quá rộng e rằng vuợt ra ngoài phạm vi sơn Giáp, sẻ gây nghĩ ngợi về sau. Em thử đo lại xem, chứ như tôi đo th́ có vẻ cửa chính lấn qua sơn Măo. Nếu cần thu hẹp th́ bớt phía sơn Măo, ví dụ 2/10, th́ bên sơn Dần bớt đi 1/10. Hoặc chỉ làm cửa một cánh năm trọn trong sơn Giáp, c̣n hơn là làm hai cánh nhưng lại chỉ dùng một cánh lấn qua sơn Măo th́ hỏng hóc.
Quyết định dời qua năm sau để xây nhà là quyết định rất hay. Thời gian bắt đầu xây th́ phải đợi qua giữa tháng 2 DL khi đó mới bắt đầu niên tinh năm 2007. Hy vọng anh BNQ sẻ góp ư thêm và cho biết khi nào nên dọn vô để em có thể chọn.
Kính,
LongLy.
__________________ Nhất thân nhất kiếm tầm long mạch
Bách sơn bách hướng ngoái cổ t́m
|
| Quay trở về đầu |
|
| |
timtoi Hội viên


Đă tham gia: 09 February 2006 Nơi cư ngụ: Vietnam
Hiện giờ: Offline Bài gửi: 18
|
| Msg 188 of 299: Đă gửi: 27 March 2006 lúc 1:15am | Đă lưu IP
|
|
|
Chào anh BinhNguyenQuan và anh LongLy,
Cám ơn các anh đă chỉ dẫn cho tôi hiểu thêm về chính thần và Linh thần và hiểu tại sao nói HKPT lấy vượng tinh để giải đóan các vấn đề về phong thủy. Tôi c̣n một vấn đề muốn hỏi về chiếu thần,vận 8 cung chiếu thần là cung Đông 3 cần phải có thủy để thúc đẩy điều tốt ở hai cung Bắc và Đông Nam. C̣n về thành môn nhà tôi th́ không có thành môn chính chỉ có thành môn phụ ở cung Đông được vượng khí. Chính v́ vậy nên ở góc sân phía Đông tôi có đặt một chậu tiểu cảnh h́nh ô van 0.90*1.60 M2 cùng ḥn non bộ. Chậu cảnh có nước là tốt sẽ thúc đẩy điều tốt ở cung Bắc và Đông Nam giúp thành môn phụ vượng thêm, nhưng phương này kỵ núi nên ḥn non bộ trong chậu có cây cảnh có ảnh hưởng ǵ không?
Lại quay về cái nhà cũ của tôi, trước kia đă có lần tôi để chậu tiểu cảnh tại Canh, công việc khônh ổn định, sức khỏe có vấn đề, chỉ khi rời sang Tuất th́ t́nh thế mới thay đổi. Tôi cứ nghĩ do chính thần có thủy không biết có đúng không? Hiện tại th́ ngôi nhà này không có tiểu cảnh nữa, người thuê nhà chuyển vào ở tháng 7/2005 công ty của họ vẫn ăn lên làm ra. Có phải là niên tinh lục bạch đă phối với Nhất bạch ở vận tạo thành mộc tiên thiên nên vượng? Vận 8 này tọa gíap, hướng canh không c̣n Thướng sơn há thủy nữa, sơn tinh vừa vượng cả hướng lẫn tọa nên ngôi nhà này lại đắc vị? Như vậy cứ sang vận mới có thể tiến hành tu sửa và chuyển đi nơi khác ở quá 3 tháng lại quay lại ở th́ tinh bàn sẽ tính cho vận mới, không phụ thuộc ngôi nhà đó xây cất từ bao giờ. Làm nhà mới cũng vậy, cứ làm c̣n khi nào chuyển về ở th́ mới tính, như vậy có cần xem ngày tháng năm làm nhà nữa không? Tôi biết có một số người đang làm nhà th́ bị chết, sau đó người ta nói là bị kim lâu thân nên những ngôi nhà này rất khó bán, nhưng nếu tính đến vận th́ cứ mua, năm nào vận tốt chuyển đến ở th́ có lẽ không ảnh hưởng ǵ.
Có lẽ những suy nghĩ của tôi làm phiền các anh, nhưng tôi nghĩ cứ đưa lên để các anh giải đóan giùm. Cám ơn các anh nhiều.
__________________ Timtoi
|
| Quay trở về đầu |
|
| |
BINHNGUYENQUAN Hội viên

Đă tham gia: 23 December 2003 Nơi cư ngụ: United States
Hiện giờ: Offline Bài gửi: 818
|
| Msg 189 of 299: Đă gửi: 28 March 2006 lúc 2:09pm | Đă lưu IP
|
|
|
Chào ChucTuu,
Các phương án 1, 2, 3 đều tốt cả, nhưng có lẽ tôi sẽ chọn phương án 3 v́:
- Cửa pḥng ngủ không nằm gần cửa nhà vệ sinh.
- Không có pḥng ngủ nào bị nối liền với nhà vệ sinh.
- Phía sau 2 pḥng ngủ đều có thuỷ. Pḥng ngủ 1 th́ có bồn rửa chén của nhà bếp, pḥng ngủ 2 th́ có 2 nhà vệ sinh nơi phía sau.
Về vấn đề chọn ngày tốt nhập trạch th́ hiện giờ tôi đang sống xa nhà nên không có đem lịch theo, thành ra không thể tra cứu trước ngày tháng được. Nhưng đến lúc nào nhà gần xong th́ em cứ cho biết, tôi sẽ tính ngày cho em dọn vào nhà ở.
Ngoài ra, em cũng cần lưu ư tới vấn đề cửa trước phải nằm trọn trong sơn GIÁP như anh Long Lư đă có nói ở trên.
Thân,
BNQ
|
| Quay trở về đầu |
|
| |
BINHNGUYENQUAN Hội viên

Đă tham gia: 23 December 2003 Nơi cư ngụ: United States
Hiện giờ: Offline Bài gửi: 818
|
| Msg 190 of 299: Đă gửi: 28 March 2006 lúc 5:16pm | Đă lưu IP
|
|
|
Chào các anh Star, Long Lư, T́m Ṭi,
Đúng là đa số chúng ta khi mới chập chững bước vào bộ môn Phong thuỷ th́ đều có học và tin theo Bát trạch. Chỉ đến khi thực hành mới khám phá ra những khiếm khuyết to lớn của môn này. Bản thân BNQ lúc mới đầu cũng đă học qua Bát trạch, rồi đến Mật tông Tây tạng (v́ môn này ở Mỹ được phổ biến rất rộng lớn), sau đó t́nh cờ mới được làm quen với môn Huyền không phi tinh. Sau 1 thời gian học và thực hành th́ càng ngày càng thấy thích môn Huyền không, và đến bây giờ th́ chỉ dùng môn này để giải đoán trạch vận phong thuỷ cho mọi người mà thôi. Đúng ra th́ ngay cả môn Huyền không cũng chưa phải đă hoàn hảo, mà vẫn c̣n 1 số vấn đề khúc mắc cần được nghiên cứu và giải đáp thoả đáng hơn. Nhưng nếu so ra th́ nó chính xác và hợp t́nh, hợp lư hơn những môn khác nhiều. Như những trường hợp cụ thể mà các anh đă đưa ra.
Riêng vấn đề anh T́m Ṭi đưa về căn nhà cũ của anh bây giờ đă đổi chủ, và chủ nhà này cũng làm ăn khá là v́ đúng như những ǵ anh đă nghĩ. Nếu 1 căn nhà mà đổi chủ th́ chỉ tính theo lúc người chủ mới vào ở mà thôi, chứ không tính căn nhà được xây dựng từ bao giờ cả. Điều này đă được nói rơ ràng trong Trạch vận tân án, thế mà vẫn c̣n có nhiều người lầm lẫn. C̣n nếu không th́ chúng ta có thể kiểm chứng những thực tế ngoài đời rất nhiều, nhất là những ai sống ở Mỹ th́ lại càng thấy rơ. Có biết bao nhiêu nhà cửa, hàng quán, công ty... đang làm ăn lỗ lă, phải bán đi. Thế mà chủ mới sau khi vô lại làm ăn khá. Hoặc có những trường hợp trái ngược lại là 1 căn nhà đang làm ăn khá, nhưng đến khi bán đi th́ chủ mới vào lại bị lụn bại. Điều nay cho thấy là vận khí căn nhà chỉ tuỳ thuộc vào lúc chủ nhà dọn vào ở hay làm việc mà thôi, chứ không lệ thuộc vào lúc xây cất. V́ ở Mỹ có những căn nhà đă được xây 50, 60 hay gần 100 năm. Mà người bên Mỹ đa số chỉ sống trong căn nhà chừng 5, 10 năm... rồi bán đi kiếm chỗ khác. Cho nên nếu nói trạch vận căn nhà là phải tính theo lúc nhà mới xây cất th́ có lẽ cả nước Mỹ sẽ nghèo đói, khổ sở c̣n hơn VN ḿnh nhiều lắm, v́ nhà nào cũng bị khí suy, tử tới trước hướng cả!!!Cho nên mỗi khi nhà tu sửa lớn hay đổi chủ, hoặc chủ bỏ nhà đi vài tháng rồi trở về là phải dùng thời gian đó để tính cho trạch vận, chứ không dựa vào lúc bắt đầu xây nhà nữa. Và cũng v́ điều này cho nên BNQ mới nhận thấy vấn đề chọn ngày, giờ tốt để làm nhà, khởi công... là vô lư. Đúng ra, việc chọn thời điểm khởi công xây dựng nhà chỉ là để tránh né hung sát tới toạ hoặc hướng mà thôi. Như năm nay Ngũ Hoàng tới phía TÂY, nên những nhà có toạ nằm hướng này th́ không nên làm nhà, v́ như thế sẽ có tai hoạ cho người trong nhà. Nếu như phía TÂY đă có niên tinh Ngũ hoàng, mà năm đó c̣n bị sao Lực sĩ chiếu tới, nếu xây nhà th́ tất nhiên chủ nhà phải chết. Chỉ có thế thôi. Cho nên khi xây nhà th́ chỉ tính niên vận để xem hướng hoặc toạ có bị Ngũ hoàng chiếu tới không để mà tránh không xây trong năm đó, hay chọn hướng khác... Chứ không phải là chọn ngày giờ tốt để cho gia đ́nh gặp nhiều phúc lộc, may mắn...Những điều này đă do trạch vận của căn nhà quyết định rồi, nên dù có chọn ngày tốt khởi công mà vận khí của căn nhà xấu th́ liệu có thể khá được không? C̣n việc chọn ngày, giờ tốt để nhập trạch là chỉ v́ nếu nhà và cửa đă đắc vượng tinh, lại c̣n vào nhà ngay lúc có niên, nguyệt, nhật, thời tinh nếu không là vượng khí th́ cũng là những sao sinh cho vượng khí, hay những sao 1,4,6... th́ kết quả sẽ đến ngay lập tức mà không phải trông ngóng dài cổ xem tại sao nhà ḿnh hướng tốt mà vào nhà lại bị hao tiền hay căi nhau liền...Như trường hợp nhà hướng NAM, trong vận 8 đắc vượng khí Bát bạch Thổ tới hướng, nên nếu nhập trạch trong năm ngoái th́ vấn đề tài lộc sẽ khá ngay. Nếu lại chọn tháng có nguyệt tinh Cửu tử Hoả tới sinh cho vượng tinh Bát bạch th́ lại càng khá hơn nữa. Rồi ngày và giờ cũng thế. C̣n như nếu nhập trạch năm nay th́ niên tinh Thất xích Kim tới hướng, nên tài lộc không khá lắm, c̣n có thể bị hao tài nếu vào nhà những tháng có nguyệt tinh số 6 hay số 1 tới. Hoặc có thể bị xung đột, căi cọ nếu vào nhà những tháng, ngày, giờ có những sao 6,3,2 chiếu tới...
C̣n ḥn non bộ đặt phía ĐÔNG là không tốt cho nhà anh v́ ḥn non bộ nếu không có nước chảy như fountain th́ sẽ mang nhiều âm khí. Mà nơi phía này của nhà anh cũng đă có nhiều âm tinh nên nếu để nó ở đó th́ không tốt. Nhưng nếu nó có nước chảy quanh co th́ cũng không đến nỗi. Tuy nhiên, nếu anh chỉ để nước tại đây th́ vẫn hay hơn là có thêm ḥn non bộ. C̣n phía ĐÔNG th́ đúng là chiếu thần của vận 8, nên nếu có thuỷ th́ tốt cho tài lộc (ngoại trừ phương này có hung sát như Ngũ Hoàng, Nhị hắc, Thất xích hay những cặp sơn-hướng tinh như 2-3, 7-6, 9-7, 2-7, 7-3...th́ không nên thấy thuỷ v́ như thế th́ điều tốt không chống nổi với hung, chủ tai hoạ).
V́ thời gian có hạn nên chỉ viết được như thế. Hẹn gặp lại các anh sau.
Kính,
BNQ
Sửa lại bởi BINHNGUYENQUAN : 28 March 2006 lúc 10:39pm
|
| Quay trở về đầu |
|
| |
chuctuu Học Viên Lớp Dịch Lư

Đă tham gia: 14 February 2006 Nơi cư ngụ: Vietnam
Hiện giờ: Offline Bài gửi: 47
|
| Msg 191 of 299: Đă gửi: 29 March 2006 lúc 7:55pm | Đă lưu IP
|
|
|
Cháu xin chào các bác
Cháu xin chân thành cảm ơn những ǵ hai bác đă giành cho cháu và cháu sẽ làm theo những ǵ các bác khuyên bảo.
Theo như những chỉ dẫn của các bác, cháu sẽ nhờ kỹ sư thiết kế chi tiết và cách bầy đặt bố trí các vận dụng trong nhà cũng như bên ngoài để được các bác chỉ bảo cho ngôi nhà được hợp lư.
Hẹn gặp lại các bác
Kính thư
Chuctuu
|
| Quay trở về đầu |
|
| |
longly Hội viên


Đă tham gia: 30 December 2003 Nơi cư ngụ: United States
Hiện giờ: Offline Bài gửi: 307
|
| Msg 192 of 299: Đă gửi: 05 April 2006 lúc 3:45pm | Đă lưu IP
|
|
|
Kính chào qúy vị,
Theo lệ mỗi tháng, tôi sẻ có bài lược đoán phong thủy trong tháng. Nhưng v́ đă có Bác Tuấn Kiệt, tác giả của trang TuanKiet.com.vn, viết loạt bài "Lưu nguyệt Phi Tinh năm Bính Tuất - 2006", nên các bài lược đoán trong chủ đề này sẻ tạm ngưng. Qúy vị có thể theo dơi loạt bài của Bác Tuấn Kiệt tại mục: Lưu nguyệt Phi Tinh năm Bính Tuất - 2006
Ngoài ra, qúy vị vẩn có thể nêu thắc mắc hoặc trao đổi ư kiến liên quan đến Huyền Không Phi tinh trong chủ đề này để chúng ta cùng học hỏi nhau.
Kính,
LongLy.
__________________ Nhất thân nhất kiếm tầm long mạch
Bách sơn bách hướng ngoái cổ t́m
|
| Quay trở về đầu |
|
| |
Kie^n' Vang` Hội viên


Đă tham gia: 24 March 2006
Hiện giờ: Offline Bài gửi: 8
|
| Msg 193 of 299: Đă gửi: 08 April 2006 lúc 8:05am | Đă lưu IP
|
|
|
Kính chào anh LongLy và anh BinhNguyenQuan,
Đề tài "Huyền Không Phi Tinh" này rất hấp dẫn. Thấy hai anh giúp đỡ mọi người rất nhiệt t́nh, nên hôm nay mạo muội nhờ hai anh xem giúp cho gia đ́nh em.
Nhà xây tháng 4 năm 2004, gia đ́nh chúng em dọn vào tháng 12 năm 2004. Nhà này khoảng 250 độ hướng Tây.
Em sinh năm 1964, ông xă sinh năm 1959.
1/Em tính xây 1 hồ cá, nhưng chưa biết nên xây ở đâu, ông xă th́ muốn xây hồ cá trước nhà, em th́ muốn xây sau nhà, nhờ hai anh cho em vài lời nên xây hồ cá ở đâu. Nhà này có tốt và nên ở lâu dài hay không. Có nên làm ǵ để giải những điều xấu trong nhà hay không.
2/Cửa chính của nhà này nằm ở gần bên tay trái, nếu đứng trong nhà nh́n ra ngoài đường. Căn nhà này nằm gần cuối đường (có 1 ṿng tṛn lớn cho xe chạy ở trưóc nhà) và ở trong 1 ṿng ôm của con đường. Trước mặt nhà khoảng chừng 100m là 1 con đường chạy ngang qua và có 1 đèn xanh/đỏ(traffic light) ở hướng Tây Bắc (đây cũng là cổng vào của khu vực/community này).
3/Garage th́ nằm bên tay phải (nh́n từ trong nhà ra ngoài đường). Gia đ́nh thường dùng cửa garage để đi vào nhà.
4/Nhà này có walkout basement, và sau nhà khoảng chừng 30m-50m th́ có nhà của hàng xóm bao bọc chung quanh (trong ṿng ôm của con đường).
5/Cầu thang nhà này nằm ở trung tâm nhà để đi lên lầu và xuống basement.
6/Bếp của nhà này nằm ở góc trái của nhà nếu đứng trước nhà nh́n vào, khoảng khu vực hưóng Bắc/Đông Bắc.
7/Pḥng ngủ/master bedroom ở trên lầu khu vực hướng Nam.
8/Bàn thờ Phật ở trên lầu, chỗ cầu thang đi lên, gần bên cạnh master bedroom có 1 pḥng/loft nh́n xuống khu vực/foyer của cửa chính.
*Sau khi dọn vào nhà này khoảng chừng 2 tháng th́ mẹ chồng của em mất (Bà không ở chung với chúng em và bác sĩ cho biết trưóc từ mùa hè năm 2004 là bà chỉ sống đưọc thêm khoảng chừng 6 tháng thôi). Như vậy không có ảnh hưởng ǵ của căn nhà này phải không ạ. Về tài chánh th́ ông xă kiếm được nhiều tiền hơn những năm trước.
Cảm ơn hai anh LongLy và BinhNguyenQuan, nhờ hai anh giúp cho gia đ́nh em nhé.
Sửa lại bởi Kie^n' Vang` : 08 April 2006 lúc 8:14am
|
| Quay trở về đầu |
|
| |
BINHNGUYENQUAN Hội viên

Đă tham gia: 23 December 2003 Nơi cư ngụ: United States
Hiện giờ: Offline Bài gửi: 818
|
| Msg 194 of 299: Đă gửi: 08 April 2006 lúc 11:21pm | Đă lưu IP
|
|
|
Chào chị Kiến Vàng,
Nếu có thể được th́ xin chị cho biết thêm 1 số chi tiết sau:
- Hướng nhà chị. Tuy chị đă có cho biết hướng nhà là 250 độ, nhưng tôi chỉ muốn xác định lại cho chắc chắn trước khi trả lời. Nếu chị đă dùng la bàn để đo rồi, hoặc nếu trong sơ đồ nhà chị đă có hướng chính xác của căn nhà và như chị nói th́ xin chị cũng cho biết, nhưng không phải mất công đo lại nữa.
- Chiều dài và chiều rộng của căn nhà (kể cả garage)là bao nhiêu ft? Từ mé bên tay trái (nếu đứng từ trong nhà nh́n ra trước) tới cửa trước là khoảng bao nhiêu ft? C̣n garage th́ rộng khoảng bao nhiêu ft? Từ garage tới cửa trước khoảng chừng bao nhiêu ft?
- Phía sau nhà chị có cửa sau không? Vị trí của cửa sau là nằm chính xác tại đâu?
- Vị trí chính xác của bếp và bồn rửa chén (như cách bức tường bên trái nếu đứng từ trong nhà nh́n ra sau là bao nhiêu ft?). Vị trí của pḥng tắm?
- Nếu đứng từ tâm pḥng ngủ th́ cầu thang nằm tại khu vực nào? Quanh pḥng ngủ của anh, chị có buồng tắm không? Và nằm tại đâu?
- Căn nhà chị là vuông vức hay có nhiều góc cạnh? Góc cạnh nằm ở phía trước, phía sau hay bên hông nhà?
- Đất quanh nhà chị là bằng phẳng hay có chỗ nào cao, thấp không? Phía trước, phía sau nhà chị có cây cối lớn không?
Sở dĩ tôi hỏi nhiều như thế là v́ khi nghe chị diễn tả căn nhà, tôi đă h́nh dung ra được tại sao sau khi vào nhà này th́ tài lộc của anh chị có khá hơn trước, cũng như việc đặt hồ cá là nên để ở phía trước. Nhưng v́ hướng nhà chị lệch độ hơi nhiều, cửa trước có thể bị xuất quái nên tôi mới hỏi thêm chi tiết trước khi trả lời chị mà thôi.
BNQ
|
| Quay trở về đầu |
|
| |
Kie^n' Vang` Hội viên


Đă tham gia: 24 March 2006
Hiện giờ: Offline Bài gửi: 8
|
| Msg 195 of 299: Đă gửi: 09 April 2006 lúc 9:03pm | Đă lưu IP
|
|
|
Thưa Anh BinhNguyenQuan,
Cảm ơn anh rất nhiều đă hồi âm cho Kiến Vàng.
Thưa Anh, căn nhà này trên giấy tờ là 253 độ nhưng khi dùng la bàn đo th́ là khoảng 250 - 252 độ.
Chiều dài của nhà là 45ft, chiều rộng là 53ft cho cả 3 tầng.
V́ có garage thứ 3 nên mặt tiền của nhà là 68ft, phần garage thứ 3 tḥi ra ở góc Tây Bắc bên phải nhà, khoảng 15ftX20ft.
Từ góc tường mé trái tới cửa chính là 17ft, garage rộng khoảng 33ftX20ft, từ mé garage thứ 3 tới cửa trước là 48ft.
Phía sau có cửa từ walkout basement đi ra vườn, từ mé tường góc Đông Nam ra là khoảng 15 ft.
Bếp nằm ở góc Đông Bắc từ trung tâm nhà nh́n ra sau vườn là góc trái.
Halfbath nằm sau garage thứ 1 và pḥng giặt, bên cạnh wet bar/butler entry.
Cầu thang with double stairways nằm ở trung tâm nhà, sau dining room, có thể lên lầu từ foyer (không thấy cầu thang từ cửa trước v́ cầu thang nằm ngang sau bức tường của dining room, và có thể lên lầu từ hallway của butler entry/breakfast room.
Master bedroom ở trên lầu khoảng 1000sqft is spanning từ góc hướng Nam (dưới lầu là living room, library room), Đông Nam seating room, (dưới lầu là family room) Đông master bathroom(chính giữa tường sau nhà, dưới lầu là breakfast room)và Đông Bắc với 2 walkin closets(dưới lầu là kitchen).
Ba pḥng ngủ và 2 pḥng tắm khác th́ nằm ở trên lầu góc hướng Tây, Tây Bắc và Bắc.
Căn nhà nh́n th́ thấy vuông vức, v́ cả 3 tầng đều nhau, chỉ có phần garage thứ 3 th́ tḥi ra ngoài ở hướng Tây Bắc, và góc Đông Nam th́ có lanai ở main level, nhưng không có pḥng ở trên mái lanai.
Đất trước nhà thấp hơn nền nhà main level, trước nhà là 1 ṿng tṛn vừa là chỗ đậu xe vừa cho xe chạy quanh rất lớn, cách khoảng 100m trước nhà th́ đất cao lên khoảng 8 ft, có đường chạy ngang và có traffic light ở hướng Tây Bắc (có cổng vào community này).
V́ là walkout basement nên đất sau vườn thấp hơn đất ở vườn trước nhà, nhưng lên cao dần cho tới mặt đường v́ sau nhà là nhà hàng xóm bao bọc chung quanh con đường h́nh chữ C.
Trước nhà góc trái (nh́n từ trong nhà ra) có 1 cây cao khoảng 15 ft, và nhiều cây thấp landscape trước nhà. Ở trước dining room vườn trước nhà có 1 cây cao khoảng 15 ft; và bên cạnh có 1 ngọn đèn cao khoảng 5ft. Vườn sau nhà có khoảng 10 cây cao 15ft trồng bao bọc chung quanh nhà.
Nhờ anh BinhNguyenQuan giúp cho gia đ́nh của em nhé.
Cảm ơn anh rất nhiều.
Sửa lại bởi Kie^n' Vang` : 09 April 2006 lúc 9:12pm
|
| Quay trở về đầu |
|
| |
BINHNGUYENQUAN Hội viên

Đă tham gia: 23 December 2003 Nơi cư ngụ: United States
Hiện giờ: Offline Bài gửi: 818
|
| Msg 196 of 299: Đă gửi: 10 April 2006 lúc 1:34pm | Đă lưu IP
|
|
|
Chào chị Kiến Vàng,
Xin lỗi chị là có lẽ từ hôm nay đến cuối tuần th́ tôi rất bận, nên sẽ không trả lời cho chị được. Mong chị thông cảm và ráng chờ tới lúc đó, hay lúc nào có thời gian th́ tôi sẽ cố gắng giải đáp về Phong thuỷ cho căn nhà của chị. Mong chị thông cảm và thành thật xin lỗi v́ làm chị phải chờ đợi lâu.
Kính,
BNQ
|
| Quay trở về đầu |
|
| |
BINHNGUYENQUAN Hội viên

Đă tham gia: 23 December 2003 Nơi cư ngụ: United States
Hiện giờ: Offline Bài gửi: 818
|
| Msg 197 of 299: Đă gửi: 16 April 2006 lúc 9:47am | Đă lưu IP
|
|
|
Chào chị Kiến Vàng,
Xin lỗi chị v́ mấy ngày nay tôi bận quá nên mới phải làm cho chị và mọi người chờ đợi lâu. Về căn nhà chị tuy đo hướng là 250-252 độ, nhưng tôi vẫn dựa theo hướng trên giấy tờ là 253 độ, v́ lúc nhà thầu đo hướng thường chính xác hơn là sau này, do không bị từ trường của những ḍng điện hay sóng ti vi, internet... chi phối.
Cho nên hướng nhà chị là 253 độ là hướng CANH, toạ GIÁP, kiêm THÂN-DẦN 2 độ. Nhập trạch năm 2004 tức là trong vận 8 nên bị tử khí Tam Bích chiếu tới hướng, cho nên tài lộc đúng ra phải có nhiều khó khăn. Cũng may cho gia đ́nh chị là ở khu vực chính giữa mặt tiền nhà lại không có cửa, mà lại có cửa garage nằm lệch sang phía bên tay phải (nếu đứng từ trong nhà nh́n ra trước), tức là nằm trong các cung DẬU và TÂN, nơi này lại đắc vượng khí Bát bạch. Mà thường ngày lại dùng lối này để ra vào thường xuyên nên biến suy thành vượng, tài lộc đương nhiên phải sung túc trong suốt 16 năm tới. C̣n cửa trước nhà chị th́ nằm tại cung KHÔN của hướng TÂY NAM, nơi này cũng bị suy khí Thất Xích chiếu tới, nên gia đ́nh chị ít dùng cửa này là tốt, khí xấu không vào nhà được th́ cũng sẽ đỡ bị hao tán tiền bạc, nhất là trong năm ngoái.
Phía sau nhà chị th́ có vượng tinh của cả sơn và hướng chiếu tới, nơi này vừa có cửa sau, vừa có đất thấp ở gần, sau đó mới có nhà cao bao bọc theo h́nh cánh cung nên tài, đinh đều vượng, chủ tiền của dồi dào, trong gia đ́nh có người tài giỏi hoặc con cái sẽ thành danh. Nếu nhà chị c̣n để 1 cái hồ cá sau nhà th́ lại càng tốt đẹp hơn. Hôm trước tôi phỏng đoán là chị nên để hồ cá ở phía trước nhà là v́ căn cứ vào hướng mà chị cho, nhưng đến khi biết được hướng theo giấy tờ th́ tôi mới phải coi lại và nghiệm thấy đúng hơn là hướng mà chị cho, nên phải lấy lại phi tinh cho nhà chị mà thành ra có sự thay đổi như thế. Cho nên nhà chị cửa garage lẫn cửa sau đều đắc vượng khí, thế nhà lại vuông vức, bề thế, cho nên tài lộc sẽ phát khá lớn, lại ổn định, lâu dài. Chỉ có điều từ ngày dọn vào nhà này th́ chưa được niên tinh thật sự tốt đẹp chiếu tới hướng nên sự thành công cũng chỉ có giới hạn mà thôi. Phải chờ tới sang năm (tức năm 2007) th́ tài lộc sẽ càng tăng tiến hơn nữa. Rồi liên tiếp các năm 2008, 2009 mọi sự sẽ ngày càng tốt đẹp hơn. Đến năm 2010 th́ tài lộc mới hơi bị xuống 1 chút, nhưng liên tiếp 2 năm sau đó tài lộc lại phát tới mức tột độ. Sau đó mới trở lại t́nh trạng b́nh thường như mấy năm gần đây.
Về thiết kế nội thất th́ tuy chị đă diễn tả, nhưng v́ không có sơ đồ nên tôi cũng khó h́nh dung ra vị trí chính xác của mọi thứ, thành ra cũng khó mà giải đoán hay sửa chữa ǵ được. Chỉ có lối từ garage và nhà chị th́ tôi nghĩ có lẽ là nằm tại khu vực phía BẮC. Chỗ này có 3 sao vận-sơn-hướng là 4-1-6 chủ tài lộc, danh tiếng, lại có lối ra vào rồi thêm pḥng tắm, pḥng giặt... tại đây nên tài lộc, công việc, danh tiếng đều tốt đẹp, nhất là cho chồng chị. C̣n cầu thang có lẽ cũng nằm tại khu vực phía BẮC của pḥng Master bedroom nên cũng là đắc 4-1-6 nên vào ở nhà này th́ chồng chị sẽ gặp nhiều may mắn trong công việc cũng như tài lộc.
Đại khái với nhà chị th́ hiện tại tôi chỉ coi được như thế. Nếu có thêm sơ đồ chính xác th́ tôi mới có thể nói thêm. Nhất là vị trí bếp ḷ, bồn rửa chén, nhà vệ sinh, các pḥng ngủ...Phía trước nhà chị, nhất là bên khu vực cửa trước nếu có cây càng to, cao th́ càng tốt. Khu vực này không nên có nước, nếu có nước tất nhiên sẽ bị hao tổn tài lộc.
Mấy ḍng để chị khỏi mong. Chúc chị và gia đ́nh nhiều hạnh phúc và may mắn.
BNQ
|
| Quay trở về đầu |
|
| |
chuctuu Học Viên Lớp Dịch Lư

Đă tham gia: 14 February 2006 Nơi cư ngụ: Vietnam
Hiện giờ: Offline Bài gửi: 47
|
| Msg 198 of 299: Đă gửi: 21 April 2006 lúc 4:38am | Đă lưu IP
|
|
|
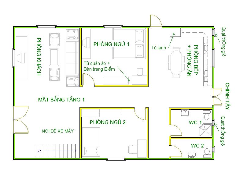
Thưa hai bác
Vừa rồi cháu có ư định muốn thêm một tầng xép để thêm diện tích sử dụng cho căn nhà và dưới đây là sơ đồ cháu phác thảo qua và các đồ đạc trong nhà để hai bác coi giúp cháu có ǵ sai sót xin các bác chỉ bảo:
Cháu làm cầu thang lên gác xép từ nơi này để đón nhận sinh khí trong vận 8, vượng khí trong vận 9 (v́ nơi này có hương Tinh cửu tử)
Mở thêm một cửa ngách từ pḥng bếp (như h́nh vẽ) theo như tinh bàn nhà cháu th́ Tây nam là phương vị Linh thần suy khí, theo tài liệu của bác Kép Nhựt khi mở của thấy thủy th́ tốt (khu vực này nhà hàng xóm là nhà bếp có bồn rửa chén và nhà vệ sinh)
Mặt bằng tầng 1:
Mặt bằng gác xép:
Cháu xin hai bác phân tích giúp cháu:
Theo như tài liệu cách tính Cửu cung tinh của bác Kép Nhựt th́ cửa mở về hướng Giáp th́ rất xấu:
XƯƠNG-DÂM: Cửa về hướng này rất xấu. Trong nhà sự dâm dục không biết dừng: nử th́ hay hư thai, trai gái đắm say tửu sắc, không biết liêm sỉ, vợ tự chuyên quyến làm loạn, súc vật tổn hại.
Trong bài nào đó có viết: Phía TÂY BẮC mà có pḥng tắm th́ rất xấu, chủ đau yếu, bệnh tật, nhất là bệnh phổi, họng. Nếu đúng như vậy th́ nhà cháu cháu có giống trong trường hợp này không?
Cháu có ǵ thiếu sót cháu xin các bác bỏ qua cho và những ǵ cháu hỏi dưới đây xin các bác đừng cười cháu là lo xa. V́ với cháu những ǵ các bác chỉ bảo là rất quan trọng và ư nghĩa với cháu, gia đ́nh cháu và cũng là những bài học và thực hành rất bổ ích cho cháu bây giờ và sau này.
Như bác BINHNGUYENQUAN đă nói: nhà cháu hết vận 8 nên phá đi xây lại với cửa trước ở chính giữa mặt tiền. Xin bác giúp cháu hiểu thêm phần này. Nếu không phá đi xây mới th́ cơ bản phải sửa chữa những phần ǵ và cách bố trí lại các pḥng ốc như thế nào của ngôi nhà để đổi vận và cho phong thủy của ngôi nhà được tốt trong vận 9? C̣n nếu phá đi xây mới hoàn toàn th́ các pḥng và cửa nên bố trí như thế nào...?
Và nhân tiện cháu mới quay được 1 đoạn Film về khung cảnh bên ngoài nhà cháu và muốn gửi cho các bác xem giúp, nhưng diễn đàn này không cho Upload Film, vậy các bác cho cháu xin địa chỉ email để cháu có thể gửi cho các bác và tiện cho việc học hỏi của cháu từ các bác sau này (có thể một lúc nào đó diễn đàn này không hoạt động nữa...).
Địa chỉ email của cháu: chuctuu@yahoo.com
Kính thư
ChucTuu
|
| Quay trở về đầu |
|
| |
Kie^n' Vang` Hội viên


Đă tham gia: 24 March 2006
Hiện giờ: Offline Bài gửi: 8
|
| Msg 199 of 299: Đă gửi: 21 April 2006 lúc 1:50pm | Đă lưu IP
|
|
|
Xin chân thành cảm ơn anh BinhNguyenQuan đă bỏ thời giờ quư báu ra giải thích và giúp đỡ gia đ́nh Kiến Vàng.
Xin cầu chúc anh BinhNguyenQuan và gia đ́nh luôn được nhiều may mắn khoẻ mạnh và hạnh phúc.
|
| Quay trở về đầu |
|
| |
chindonco Trợ Giáo


Đă tham gia: 28 March 2003 Nơi cư ngụ: United States
Hiện giờ: Offline Bài gửi: 5248
|
| Msg 200 of 299: Đă gửi: 22 April 2006 lúc 8:10pm | Đă lưu IP
|
|
|
chuctuu đă viết:
Và nhân tiện cháu mới quay được 1 đoạn Film về khung cảnh bên ngoài nhà cháu và muốn gửi cho các bác xem giúp, nhưng diễn đàn này không cho Upload Film, vậy các bác cho cháu xin địa chỉ email để cháu có thể gửi cho các bác và tiện cho việc học hỏi của cháu từ các bác sau này (có thể một lúc nào đó diễn đàn này không hoạt động nữa...).
Địa chỉ email của cháu: chuctuu@yahoo.com
|
|
|
Thật là khéo nói.
|
| Quay trở về đầu |
|
| |
|
|