Đăng nhập nhanh
Mạnh Thường Quân
  Bảo Trợ
Chức Năng
  Diễn Đàn
  Thông tin mới
  Đang thảo luận
  Hội viên
  Tìm Kiếm
  Tham gia
  Đăng nhập
Diễn Đàn
Nhờ Xem Số
  Coi Tử Vi
  Coi Tử Bình
  Coi Địa Lý
  Coi Bói Dich
  Chọn Ngày Tốt
Nghiên Cứu và
Thảo Luận

  Mệnh Lý Tổng Quát
  Qủy Cốc Toán Mệnh
  Tử Vi
  Tử Bình
  Bói Dịch
  Mai Hoa Dịch Số
  Bát Tự Hà Lạc
  Địa Lý Phong Thủy
  Nhân Tướng Học
  Thái Ất - Độn Giáp
  Khoa Học Huyền Bí
  Văn Hiến Lạc Việt
  Lý - Số - Dịch - Bốc
  Y Học Thường Thức
Lớp Học
  Ghi Danh Học
  Lớp Dịch & Phong Thuy 2
  Lớp Địa Lư
  Lớp Tử Vi
    Bài Giảng
    Thầy Trò Vấn Đáp
    Phòng Bàn Luận
    Vở Học Trò
Kỹ Thuật
  Góp Ý Về Diễn Đàn
  Hỗ Trợ Kỹ Thuật
  Vi Tính / Tin Học
Thư Viện
  Bài Viết Chọn Lọc
  Tủ Sách
Thông Tin
  Thông Báo
  Hình Ảnh Từ Thiện
  Báo Tin
  Bài Không Hợp Lệ
Khu Giải Trí
  Gặp Gỡ - Giao Lưu
  Giải Trí
  Tản Mạn...
  Linh Tinh
Trình
  Quỷ Cốc Toán Mệnh
  Căn Duyên Tiền Định
  Tử Vi
  Tử Bình
  Đổi Lịch
Nhập Chữ Việt
 Hướng dẫn sử dụng

 Kiểu 
 Cở    
Links
  VietShare.com
  Thư Viện Toàn Cầu
  Lịch Âm Dương
  Lý Số Việt Nam
  Tin Việt Online
Online
 241 khách và 0 hội viên:

Họ đang làm gì?
  Lịch
Tích cực nhất
dinhvantan (6262)
chindonco (5248)
vothienkhong (4986)
QuangDuc (3946)
ThienSu (3762)
VDTT (2675)
zer0 (2560)
hiendde (2516)
thienkhoitimvui (2445)
cutu1 (2295)
Hội viên mới
thephuong07 (0)
talkativewolf (0)
michiru (0)
dieuhoa (0)
huongoc (0)
k10_minhhue (0)
trecon (0)
HongAlex (0)
clone (0)
lonin (0)
Thống Kê
Trang đã được xem

lượt kể từ ngày 05/18/2010
Địa Lư Phong Thủy (Diễn đàn bị khoá Diễn đàn bị khoá)
 Tử Vi Lư Số : Địa Lư Phong Thủy
Tựa đề Chủ đề: Phong Thủy có vấn đề - trong nhà có ma. Gửi trả lời  Gửi bài mới 
Tác giả
Bài viết << Chủ đề trước | Chủ đề kế tiếp >>
Nguyet Nuong
Hội viên
 Hội viên
Biểu tượng

Đă tham gia: 29 August 2005
Nơi cư ngụ: Canada
Hiện giờ: Offline
Bài gửi: 9
Msg 1 of 37: Đă gửi: 29 August 2005 lúc 4:18am | Đă lưu IP Trích dẫn Nguyet Nuong

Kính gởi các bạn trong diễn đàn,

Tôi thú thật đây là lần đầu tiên tôi sợ hăi và hồi hộp trong đời. Từ nhỏ đến lớn, tôi đi chùa, tụng kinh, tŕ chú, nhưng chưa bao giờ có cảm giác rằng những chuyện ma trong dân gian người ta kể có thật.

Hiện tại tôi và chồng tôi đang ở trong một căn nhà có quỷ. Cách đây bốn tháng, mẹ tôi v́ giận hai chị lớn của tôi căi nhau và không ở chung với nhau được, nhất định mua một căn nhà mới cho chị hai tôi dọn ra và không ở với chị ba tôi nữa.   Tôi cản hoài, mẹ tôi không chịu nghe.   Khi mẹ tôi mua rồi mới nói với tôi đến coi.

V́ bận rộn làm ăn, tôi không có đến coi.   Sau 1 tuần mẹ tôi lấy nhà, tôi đến coi và thấy có vẽ thích lầu 2 của căn nhà (tại v́ nhà ở đường lớn cách văn pḥng luật pháp của vợ chồng tôi 1/2 block). Nhà lớn quá, mẹ tôi bảo chị hai tôi ở không đủ, bà ta muốn vợ chồng son tôi về ở giúp đở tiền mortgage cho má tôi.

Tôi thấy căn nhà ở lầu hai hơi cũ, nhưng rộng, đ̣i lấy làm văn pḥng v́ cửa cái đi thẳng lên lầu. Nhân dịp vợ chồng tôi làm văn pḥng luật di trú khấm khá (năm ngoái giúp được nhiều người đoàn tụ gia đ́nh) mới mướn thêm nhân viên cần nhiều pḥng ốc hơn để làm văn pḥng, và cũng đang kiếm chổ mới dời văn pḥng, tôi đồng ư với mẹ tôi dọn văn pḥng về nhà mới.

Hai tuần sau khi lấy nhà, tôi và chồng tôi cùng về quét dọn và sửa chửa lại nhà. Chồng tôi người tây trắng, anh ta rất thích tự ḿnh trang trí, quét vôi kiểu mới, làm sàn mới và treo tranh ảnh thật đẹp. Trong lúc dọn dẹp, anh rễ tôi th́ dọn dẹp ở dưới, c̣n vợ chồng tôi th́ sửa sang ở trên lầu, chị tôi vô t́nh giận bâng quơ và quyết định không dọn vào nhà ở nữa. Chị hai tôi tự nhiên quay lại làm huề với chị ba tôi và đ̣i ở chung lại. Tôi thật không hiểu tại sao như vậy và lấy làm lạ lắm.   Mẹ tôi buồn lắm, và than thở rằng mua nhà chỉ để con ở mà bây giờ nhà trống mẹ tôi không đủ tiền trả mortgage.   Vợ chồng tôi thấy mẹ tôi buồn, chồng tôi nhủ rằng thôi ḿnh mướn hết căn nhà đi, lầu 2 làm văn pḥng và tầng trệt ở.   V́ nhà tôi xa phố, nên tôi đồng ư v́ cứ đi xe gần 2 tiếng đi làm cũng mệt. Mẹ tôi rất mừng. Sau gần 1 tháng sửa sang. Vợ chồng chúng tôi dọn vào nhà mới vào ngày 22 tháng 7, 2005.

Lầu 2 dùng làm văn pḥng được trang trí rất đẹp và ấm cúng. Mấy người làm trong văn pḥng điều vui.   Nhưng không hiểu tại sau, mặc dù chồng tôi là người rất thích trang trí, mà anh ta chưa hề đề cập đến ư tưởng trang trí tầng trệt nơi chúng tôi ở. Chúng tôi về không lâu th́ mẹ tôi cho một anh ấn độ trẻ sinh viên mướn cái basement dưới nhà. Anh ta rất vui vẻ và hay lên chơi với vợ chồng tôi.

Sau khi dọn về, gần 1 tháng th́ văn pḥng đâu vô đó. Chúng tôi ở tầng trệt dưới lầu. Lầu hai th́ ấm cúng bao nhiêu th́ tầng trệt kỳ cục bấy nhiêu.   Khi vừa bước vô nhà, cửa trước mở vào một hành lang xông thẳng lên lầu, giửa hành lang đó trước khi lên lầu th́ có cửa hông mở vào pḥng khách ở dưới nhà. Giửa pḥng khách và pḥng ăn (nhà bếp) th́ có cái bức tường kỳ quặc vô duyên chắn ngay đó làm chắn lại ánh sáng cửa sổ từ pḥng khách không vô được. Sau pḥng ăn/nhà bếp th́ có 2 pḥng ngủ. Kế pḥng ăn th́ có cái washroom đặt rất vô duyên giửa nhà bếp và pḥng khách.   Mặc dù nhà hướng về hướng đông, mỗi sáng pḥng khách rất sáng, nhưng nhà sau th́ tối u trệ, không có ánh sáng ở nhà bếp và pḥng ngủ thứ nhất sau nhà bếp. Mặc dù mỗi pḥng điều có cửa sổ lớn, nhưng trong nhà lại ngột ngạt lạ kỳ.

Sau hai tuần dọn vào nhà mới th́ vợ chồng tôi tự nhiên hay đăm ra căi vă về chuyện bâng quơ. Văn pḥng th́ làm ăn vẫn suông sẽ, nhưng tối ngủ th́ chúng tôi cảm thấy nghẹt thở và không ngủ ngon. Rồi th́ tôi liên tiếp nằm thấy ác mộng.   Có một đêm tôi làm việc mệt quá ngủ đi rồi lại thức dậy cải vă và mắng chửa chồng tôi thậm tệ, thậm chí đánh đấm và cắn anh ta.   Sáng hôm sau tôi thấy vai chồng tôi bị bầm tôi hỏi, th́ chồng tôi ngạc nghiên bảo rằng tối qua tôi mới cắn anh ta mà? Vợ chồng tôi sống lâu với nhau, chưa từng có nói nặng với nhau mà nay sinh ra thế nay khiến tôi phát sợ. Chồng tôi lâu nay rất hiền lành vui vẻ, bổng nhiên sinh ra buồn rầu và ủ rủ. Chúng tôi bổng sinh nghi là trong nhà có ma.

Lâu lâu, chồng tôi lại ngửi thấy mùi lạ như củi đốt, mùi hương v..v... c̣n tôi th́ ngửi thấy mùi ẩm mốc thoáng xông ra.

Có một đêm cách đây hai tuần, tôi đánh thức chồng tôi nữa đêm v́ nghe tiếng chân đi trong pḥng ăn và ai lật báo chí nghe sồn sột. Khi anh ta thức dậy cũng nghe mồng một và ra coi th́ không thấy ǵ hết.

Có một ngày chồng tôi đang ngồi cùng bạn ở pḥng ăn th́ tự nhiên cánh cửa hành lang đập qua đập lại như có ai xô mà không có gió trong pḥng.

Ở càng lâu trong nhà th́ chúng tôi càng sợ. Không khí trong nhà ngột ngạt khó thở, và chấn thủy ở ḷng ngực như bị ai đè xuống có cảm giác ngột ngạt rất khó chịu.

Chưa đầy một tháng ở trong nhà mà tôi hầu như đêm nào cũng mất ngủ và bị ác mộng.

Tôi chịu không nổi nữa chạy ra ngoài phố tàu đi tiệm bán đồ cúng mua ông địa, ông thần tài về trấn thờ ở cửa cái. Tôi nói mẹ tôi th́ bà ta lật đật sang nhà mang theo h́nh phật bổn sư thờ ở nhà qua lập bàn thờ ở pḥng khách cho tôi. Nhưng hôm đó chồng tôi và tôi vẫn thấy bất an trong ḷng v́ pḥng ăn là có không khí khó chịu nhất mà không thể thờ phật ở đó được.

Nữa đêm ngày 24 tháng 8, 2005, tôi nhờ chồng tôi lái xe qua nhà chị ba tôi và thỉnh mời tượng Quan Công của anh rể tôi thờ về nhà. Khi chồng tôi vừa đặt tượng quan công ở pḥng ăn/nhà bếp và thắp hương vái th́ lập tức không khí u trệ từ từ biến mất và cảm giác bị đè nặng ở lồng ngực của vợ chồng tôi biến mất.

Tối hôm đó vợ chồng tôi dọn giường vào pḥng khách ngủ (nơi có thờ phật) và có được đêm ngủ ngon đầu tiên ở trong nhà từ khi dọn về.

Ngày hôm sau tôi gặp cậu sinh viên người Ấn Độ ở nhà dưới, tôi kể chuyện kỳ lạ trong nhà th́ cậu ta bước vào nhà liền và ngồi nghe tôi kể. Cậu ta nói, từ khi dọn về ở dưới lầu, cậu ta cũng cứ nằm ác mộng. Có đêm thấy có con nhện đen to ở trên đầu gường, cậu vớ cuốn sách để đập th́ nó biến mất. Cậu nằm mơ thấy toàn nhện đen đầy nhà và liên tiếp nằm ác mộng 5-7 đêm.   3-4 lần cậu vào pḥng tắm th́ thấy thoáng có bóng đen đi qua, hay đi ngang hàng lang, thấy có bóng đen, quay lại th́ bóng biến mất. Trời vào thu lành lạnh mà cậu cảm thấy nực nội mở hết cửa sổ ra vẫn không thấy mát.

Tôi thấy như vậy th́ lập tức mua hoa quả về nhà và kính bát quái về nhà, để trước bàn phật tụng chú phật mẫu chuẩn đề vào chén nước và kính. Tôi đem treo kính bát quái chiếu ra trên cửa ra vô của nhà và đem bát nước dùng nhánh cây rẩy khắp nhà vừa rẩy vừa tụng chú.

Chồng tôi vẫn thấy không yên, chiều nay anh ta phá bức tường chắn giửa pḥng ăn và pḥng khách ra khiến cho ánh sáng cửa sổ trước nhà dội vào nhà.   Trong nhà tôi tự nhiên thấy yên tỉnh và yêm thắm lạ thường.

Tối nay trong lúc quét dọn nhà bếp cùng chồng tôi, v́ bụi bặm bay nên tôi mở cửa hông của nhà bếp ra driveway bên nhà (cửa xoay về hướng nam) tôi đang loay hoay đứng trên ghế cao dọn bàn thờ Quan Thánh th́ khi tôi xoay sang phía sau nh́n ra cửa ngoài nhà bếp bỗng thấy 1 bóng trắng của người đàn bà thoáng qua. Biết là bóng ma, tôi nói gấp: "Đóng cửa lại." th́ chồng tôi lập tức đóng cửa lại.   Anh ta nói với tôi: "Anh cũng cảm giác được nó. Em không nói anh cũng đóng cửa rồi."

Tôi không biết căn nhà này có quá khứ ǵ nhưng vợ chồng tôi chỉ muốn ở yên thân.   Mẹ tôi đă già, dành dụm bao nhiêu tiền đă đổ vào hết mua căn nhà này. V́ thương mẹ tôi, vợ chồng tôi đă bàn tính mua lại căn nhà cho bà ta đỡ lo. V́ thương chị tôi nên mẹ tôi mua căn nhà khá mắc, bây giờ bán lại th́ mất giá, mất hết tiền già dành dụm. Vợ chồng tôi muốn mua lại dùng làm chổ làm ăn và giúp mẹ tôi. Nhưng bị như vầy mẹ tôi rất buồn. Bà bảo nếu vợ chồng tôi không ở được th́ bà sẽ bán.

Tôi muốn giúp mẹ tôi và ở tiếp rồi mua lại căn nhà, nhưng không biết làm sao trừ khử bóng ma khỏi khuông viên nhà và trong nhà.   Căn nhà có vườn sau và driveway bên hông khá rộng.   Tôi đuổi nó ra khỏi pḥng khách pḥng ăn, nhưng pḥng ngủ c̣n chưa yên, lại nữa nó quanh quẩn trong khuôn viên làm ớn lạnh tóc gáy.    

Không biết có bạn hửu nào biết cách trừ khử hay đổi phong thủy của nhà và khuông viên nhà để thứ đó bỏ đi hay không? Hay có thầy nào giỏi ở Toronto, Canada có thể đuổi nó đi hay không?

Tôi sinh ngày 21 tháng 9 năm 1975 DL
c̣n chồng tôi sinh ngày 27 tháng 11 năm 1964 DL
Không biết tuổi chúng tôi có hợp hay khắc nhà này hay không nhưng nghe bà hàng xóm kế bên nói, không ai mua nhà này ở hơn hai năm cả. Chúng tôi muốn sửa lại nhà và mua lại của mẹ tôi để làm ăn an cư lạc nghiệp, nhưng không biết thế nào? Xin giúp dùm.

Vợ chồng tôi vô cùng cảm tạ.
(có lời giúp đở xin email gởi đến moonmissy@hotmail.com)


Sửa lại bởi Nguyet Nuong : 29 August 2005 lúc 4:23am
Quay trở về đầu Xem Nguyet Nuong's Thông tin sơ lược T́m các bài viết đă gửi bởi Nguyet Nuong
 
chindonco
Trợ Giáo
Trợ Giáo
Biểu tượng

Đă tham gia: 28 March 2003
Nơi cư ngụ: United States
Hiện giờ: Offline
Bài gửi: 5248
Msg 2 of 37: Đă gửi: 29 August 2005 lúc 11:12am | Đă lưu IP Trích dẫn chindonco

Chào Nguyet Nuong,
Trong môn bói Dịch có chương Quỷ Thần. Chị có thể gieo quẻ để hỏi: Nhà đang ở có thật bị ma quỷ quấy phá không? Cách chế hoá quỷ ra sao?



Cách thức gieo quẻ tại đây

Quay trở về đầu Xem chindonco's Thông tin sơ lược T́m các bài viết đă gửi bởi chindonco
 
TueNhan
Hội viên
 Hội viên
Biểu tượng

Đă tham gia: 23 July 2003
Nơi cư ngụ: Vietnam
Hiện giờ: Offline
Bài gửi: 62
Msg 3 of 37: Đă gửi: 29 August 2005 lúc 10:49pm | Đă lưu IP Trích dẫn TueNhan

1- Bạn nên tác pháp thanh tẩy nhà lại theo cách thức của Mật tông mũ đen.
2- Bạn nên cung cấp cụ thể phương hướng nhà, đường đi, lối vào. Phương vị các pḥng, bếp...
Quay trở về đầu Xem TueNhan's Thông tin sơ lược T́m các bài viết đă gửi bởi TueNhan
 
Nguyet Nuong
Hội viên
 Hội viên
Biểu tượng

Đă tham gia: 29 August 2005
Nơi cư ngụ: Canada
Hiện giờ: Offline
Bài gửi: 9
Msg 4 of 37: Đă gửi: 30 August 2005 lúc 7:26pm | Đă lưu IP Trích dẫn Nguyet Nuong

Ban TueNhan và các bạn trong forum,

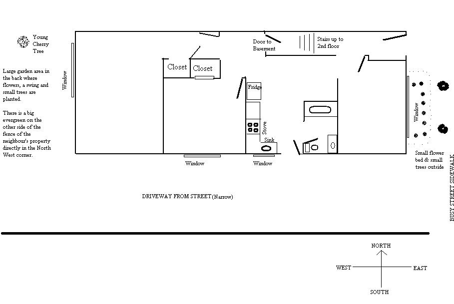
Xin cho ư kiến giùm cái floor plan của tôi nên sửa cái ǵ? Tại sao nhà tôi lại có ma quỷ ớn quá?

Xin cho ư kiến giùm?
Xin chân thành cám ơn!

Nguyet Nuong
Quay trở về đầu Xem Nguyet Nuong's Thông tin sơ lược T́m các bài viết đă gửi bởi Nguyet Nuong
 
BINHNGUYENQUAN
Hội viên
 Hội viên


Đă tham gia: 23 December 2003
Nơi cư ngụ: United States
Hiện giờ: Offline
Bài gửi: 818
Msg 5 of 37: Đă gửi: 31 August 2005 lúc 6:19pm | Đă lưu IP Trích dẫn BINHNGUYENQUAN


      Chào Nguyệt Nương,
    Theo như tôi đuợc biết đối với môn Phong thuỷ th́ 1 căn nhà mà bị ma ám thường là do 2 nguyên nhân chính : v́ vận khí xấu và v́ căn nhà quá tối tăm, u ám. Cho nên khi nghe Nguyệt Nương diễn tả về căn nhà th́ tôi cũng có thể tạm h́nh dung ra được lư do tại sao như thế. Nhưng trước khi trả lời cặn kẽ th́ tôi xin Nguyệt Nương cho biết thêm 1 số chi tiết như sau:
     - Kích thước chính xác của căn nhà (chiều dài, chiều rộng).
     - Cho biết hướng chính xác của căn nhà là bao nhiêu độ? Điều này đ̣i hỏi phải có la bàn để coi mới biết được. Nhưng nếu Nguyệt Nương có cái floor plan của căn nhà mà trong đó có vẽ phương hướng BẮC, NAM, ĐÔNG, TÂY như h́nh mà Nguyệt Nương đă đưa lên th́ cũng được.
     - Khoảng cách từ cửa trước vào tới cửa hông để đi vào pḥng khách của tầng trệt là bao nhiêu feet (hoặc mét hay bất cứ đơn vị nào cũng được)? Chiều rộng của cửa trước và hành lang là bao nhiêu?
     - Khoảng cách từ phía trước căn nhà tới cửa sau (hay cửa hông quay về hướng NAM) là bao nhiêu feet?
     - Màu sắc sơn phết bên trong nhà như thế nào? Có dùng những màu làm cho nhà thêm u tối hay không?
     - Những nhà hàng xóm ở 2 bên hông có phải là những nhà cao tầng (từ 2 tầng trở lên) hay không? Và những nhà này có làm chắn hết ánh nắng mặt trời chiếu vào trong tầng trệt hay không?
     - Địa thế chung quanh nhà của Nguyệt Nương như thế nào? Đây là khu đô thị bằng phẳng hay có đồi núi ghập gềnh? Nếu có đồi núi hay sông ng̣i, hồ, biển ... th́ những cái đó nằm ở những khu vực nào của căn nhà? Gần hay xa nhà?
    Tôi nghĩ có lẽ căn nhà của Nguyệt Nương là căn nhà duy nhất trong dăy phố bị lâm vào t́nh trạng này, nên Nguyệt Nương cần để ư coi xem địa thế bên ngoài nhà của ḿnh có ǵ khác biệt so với những nhà chung quanh không? Chẳng hạn như h́nh dáng, kích thuớc của những căn nhà phía trước, phía sau, bên phải, bên trái nhà ḿnh có ǵ đặc biệt không? Hay nguyên dăy phố đều xây dựng theo cùng 1 kiểu và kích thước như vậy?
    Biết rằng tôi hỏi hơi nhiều, nhưng v́ đây là trường hợp khá đặc biệt mà tôi chưa từng gặp phải nên thiết nghĩ thà cẩn thận 1 chút vẫn hơn. Hy vọng tôi không làm phiền Nguyệt Nương nhiều quá.
    BNQ
Quay trở về đầu Xem BINHNGUYENQUAN's Thông tin sơ lược T́m các bài viết đă gửi bởi BINHNGUYENQUAN
 
hoangduytam
Hội viên
 Hội viên


Đă tham gia: 20 May 2005
Nơi cư ngụ: Australia
Hiện giờ: Offline
Bài gửi: 169
Msg 6 of 37: Đă gửi: 31 August 2005 lúc 7:07pm | Đă lưu IP Trích dẫn hoangduytam

Anh BinhNguyenQuan viết :

Trích dẫn:
Theo như tôi đuợc biết đối với môn Phong thuỷ th́ 1 căn nhà mà bị ma ám thường là do 2 nguyên nhân chính : v́ vận khí xấu và v́ căn nhà quá tối tăm, u ám.




__________________
Tha^n,

Hoa`ng Duy Ta^m
Quay trở về đầu Xem hoangduytam's Thông tin sơ lược T́m các bài viết đă gửi bởi hoangduytam
 
Nguyet Nuong
Hội viên
 Hội viên
Biểu tượng

Đă tham gia: 29 August 2005
Nơi cư ngụ: Canada
Hiện giờ: Offline
Bài gửi: 9
Msg 7 of 37: Đă gửi: 01 September 2005 lúc 12:48am | Đă lưu IP Trích dẫn Nguyet Nuong

Cám ơn anh B́nh Nguyên Quân có ḷng tốt giúp đỡ.

Tôi đâu dám phiền ḷng giúp anh t́m hiểu thêm một chút việc đâu.   Để nay mai tôi lấy máy chụp h́nh chụp vài tấm h́nh của căn nhà và địa thế của căn nhà cho anh xem nhé!   Thật sự tôi cũng biết sơ sơ về vấn đề trong nhà quá tối, nên chồng tôi phá bớt bức tường là vậy.

Thật sự ra 2 căn nhà hai bên điều cao hơn căn nhà của chúng tôi 1 chút, và hai căn 2 bên đều cất trồi ra ngoài lộ hơn nhà chúng tôi 1 thướt tây. Phía trước nhà tôi bên góc đông bắc th́ có cột đèn cao có đeo theo cái transformer điện (1 thùng thiệt lớn), đèn chiếu ra ngoài đường và tối hay bị chớp tắt hoài. Đằng sau nhà có cây thông rất cao, cao hơn cả căn nhà cách sau nhà cỡ chừng 18 thướt tây. Nhà th́ nhiều cửa sổ nhưng nắng th́ trước khi chúng tôi dỡ bỏ bức tường không chiếu được vào nhà bếp. Bức tường bên phía driveway ở ngoài th́ không hiểu tại sao lại bị sơn màu đỏ, chủ trước họ câu giây cable, giây telephone chằng chịt như mạng nhện, chồng tôi mới tháo bỏ hôm qua. Căn nhà không hiểu tại sao phía sau pḥng ngủ gần nhà bếp sàng bị hơi lún xuống nghiên dốc gần 10 độ so với bức tường. Sau nhà ở sau vườn th́ ban ngày rất thoáng, mẹ tôi trồng mấy luống rau, hoa và cây cherry nhỏ.

Chồng tôi tuổi Giáp Th́n c̣n tôi th́ Ất Mẹo.

Vận khí chúng tôi khá tốt năm nay và càng ngày càng tốt hơn trước. Làm ăn vẫn suông sẽ và có vẽ khá hơn năm ngoái. Chồng tôi xưa làm luật sư h́nh sự mười mấy năm, có rất nhiều thăng trầm trong cuộc sống, sau quen tôi tôi thuyết phục bỏ h́nh sự làm luật di trú th́ khá hơn nhiều.

Tôi biết làm nghề luật sư h́nh sự rất tổn phước nên cản không cho chồng tôi làm nữa. Gần 2 năm nay chúng tôi làm luật di trú giúp cho gia đ́nh người ta đoàn tụ, tôi và chồng tôi rất vui. Chúng tôi làm việc có hiệu quả nên khách càng ngày càng đông. Hồi nhỏ gia đ́nh tôi làm việc phước thiện rất nhiều và tôi làm việc thiện nguyện cho viện dưỡng lăo và nhà thương từ hồi lớp 7 hơn 10 năm.   Lận đận khá nhiều lúc c̣n nhỏ nên tôi có tánh hay giúp người, có khi làm việc gặp người già hay quá nghèo tôi thường hay bớt cho họ hay không lấy tiền, nên hai vợ chồng tôi cũng thuộc loại trung lưu thôi chứ không giàu có ǵ hơn ai. Tôi cũng chẳng mong tiền nhiều bạc vạn mà chỉ mong trong nhà có sự b́nh yên, vui vẻ và có nhiều thời gian dành cho gia đ́nh thôi. Hai năm trước nh́n ba tôi hấp hối trong nhà thương, dù ông giàu có làm nghề luật pháp lâu năm nhưng chỉ có 61 tuổi là mất rồi trong sự sợ sệt tiếc nuối luyến tiếc trần gian. Tôi thấy cũng ngán ngẩm lắm và chỉ mong an phận thôi.

Bây giờ gặp cảnh này không biết ḿnh gây nghiệp chướng ǵ mà như vậy khiến tôi buồn lắm. Mẹ tôi bảo v́ mấy năm nay tôi lo làm ăn không lo tu tŕ, tôi thiếu phước, yếu bóng vía nên gặp phải chuyện phiền ḷng này. Không biết có vậy hay không, nhưng tôi buồn lắm, cả tháng nay không đêm nào ngủ yên cả. Tôi tự ngủ từ nhỏ quy y phật đến nay không bao giờ làm chuyện ǵ tày trời hại ai cả, hay đi chùa tụng kinh học đạo, thọ bát, thọ giới, báo hiếu cha mẹ tṛn đầy, không hiểu tại sao giờ lại bị ma quỷ quấy phá như vầy. Nếu các bạn trong diễn đàn giúp đỡ, trời phật giúp đỡ cho qua cơn này tôi sẽ phát nguyện mỗi tháng mùng một ngày rằm ăn chay cúng phật sám hối nghiệp chướng.

Quay trở về đầu Xem Nguyet Nuong's Thông tin sơ lược T́m các bài viết đă gửi bởi Nguyet Nuong
 
BINHNGUYENQUAN
Hội viên
 Hội viên


Đă tham gia: 23 December 2003
Nơi cư ngụ: United States
Hiện giờ: Offline
Bài gửi: 818
Msg 8 of 37: Đă gửi: 02 September 2005 lúc 2:14am | Đă lưu IP Trích dẫn BINHNGUYENQUAN

    
       Chào Nguyêt Nương,
    Trong khi chờ Nguyệt Nương đưa thêm h́nh ảnh cũng như cho biết thêm những chi tiết chính xác về kích thước cũng như phương hướng của căn nhà th́ tôi xin kể câu chuyện có thật về gia đ́nh tôi như sau:
    Gia đ́nh tôi là dân Bắc kỳ di cư vào Nam năm 1954. Sau nhiều lần dọn tới, dọn lui, cuối cùng vào năm 1965, cha mẹ tôi về Sài G̣n và thuê 1 căn nhà gần khu chợ ông Tạ để sinh sống. Từ khi dọn vào nhà này ở th́ gia đ́nh tôi vẫn không thấy có dấu hiệu ǵ lạ, chỉ có điều là vấn đề tài chánh ngày càng xuống dốc 1 cách thê thảm. Sau khi vào ở chừng hơn 1 năm th́ ông nội tôi bắt đầu bị bệnh liên miên cho đến năm 1969 th́ qua đời. Được 2 năm sau th́ tới phiên ba tôi bị bệnh, rồi đến năm 1973 th́ ba tôi bị đứt mạch máu, trở thành bán thân bất toại. Vào giữa năm 1974, có người quen với gia tôi đến giới thiệu 1 ông thầy lang từ Đà Lạt mới xuống nghe nói có tài chữa bệnh như thần, bệnh nào cũng khỏi. Ba, mẹ tôi liền mời ông tới để coi bệnh cho ba tôi. Mới bước vào nhà ngồi xuống ghế, ông đă nói ngay ba tôi đang đau bệnh ǵ, trong nguời lúc đó cảm thấy như thế nào? Chổ nào đang đau... mổi thứ đều trúng phong phóc, khiến cho ba tôi phải giật ḿnh kinh ngạc. Một điều lạ là ông không cần phải bắt mạch hay khám bệnh ba tôi ǵ cả. Nhưng sau khi nói về những căn bệnh của ba tôi xong, ông lại thêm rằng những căn bệnh này là do ma làm, chứ không phải là bệnh thông thường. Ông nói rằng trong nhà tôi có 2 con quỷ, ngày xưa bị chết bất đắc kỳ tử, được người ta đem về chôn ngay ở băi đất ngay giữa nhà tôi. Cho nên bây giờ làm nhà lên ở th́ chẳng những sẽ bị chúng phá cho tán gia bại sản, mà đàn ông trong nhà sẽ dần dần nối nhau ra đi (chết) hết. Ba tôi nghe như thế th́ có vẻ không tin lắm, v́ gia đ́nh tôi theo đạo Thiên Chúa nên ít khi tin chuyện quỷ thần, nên ba tôi hỏi ông ta làm sao mà biết được là trong nhà tôi có ma? Ông ta liền nói là ông dùng Kỳ môn-Độn giáp để coi nên mới biết. Rồi có lẽ v́ biết ba tôi vẫn chưa tin, nên ông tiếp tục dùng Độn giáp để nói về quá khứ của ba tôi như thế nào? Gia đ́nh tôi ở ngoài Bắc ra sao? Thậm chí ông c̣n miêu tả đuợc căn nhà của ông nội tôi ở ngoài Bắc như thế nào? Cảnh vật, cây cối chung quanh nhà ra sao? Cái ǵ cũng trúng phong phóc khiến ba tôi chỉ c̣n biết ngồi gật đầu thán phục mà thôi. Một điều nữa làm ba tôi giật ḿnh là tự nhiên ông ta lại hỏi tại sao vào năm 1954, trước lúc di cư, gia đ́nh tôi lại đi cải táng cho mộ ông của ba tôi. Ông nói rằng mộ lúc đó đang phát, bỗng nhiên đào lên cải táng nên bây giờ con cháu mới xuống dốc như vậy. Điều này làm ba tôi hết sức ngạc nhiên, v́ từ ngày vào Nam ông không hế tiết lộ chuyện đó với ai, chỉ có những người khi đó đào mộ đem chôn mới biết mà thôi (ba tôi và ông nội tôi là 2 trong số những người dó). Đến lúc đó ba tôi mới nói cho cả nhà biết là khi cải táng th́ thấy tơ vàng đă kết đầy huyệt rồi, nhưng đă lỡ đào lên th́ không thể chôn xuống được nữa, thành ra đành đem xác cụ tổ đem chôn ở 1 nơi khác gần nhà, để nếu mai sau có về lại đất Bắc th́ cũng c̣n biết nơi mà t́m kiếm mồ mả tổ tiên. Nhưng chuyện mả kết th́ tuyệt đối dấu kín, kẻo lỡ mai sau trong ḍng họ biết được th́ lại bị oán trách. Cho nên 1 người xa lạ mà lại có thể biết được chuyện đó là ngoài sức tưởng tượng của ba tôi lúc đó.
    Trở lại vấn đề bệnh của ba tôi là do bị quỷ làm th́ ông lang đó nói rằng sẽ không có thuốc ǵ chữa được bệnh của ba tôi hết. Ông chỉ có thể cho ba tôi 1 số thuốc làm giảm bịnh hoặc đỡ đau mà thôi. Ba, mẹ tôi từ trước đến lúc đó không bao giờ tin chuyện bói toán hay quỷ thần, nhưng thấy ông nói cái ǵ cũng trúng nên bắt đầu tin. Tôi cũng quên nói là cái chỗ mà ông thầy lang đó nói là nơi chôn 2 cái xác người ở giữa nhà tôi là sau khi vào nhà này ở đuợc chừng mấy năm th́ chỗ đó cứ từ từ bị lún sâu xuống. Nhưng ba, mẹ tôi cứ nghĩ là chỉ tại đất chỗ đó không đuợc chắc nên mới bị như vậy thôi. Nhưng từ lúc nghe ông thầy lang đó nói th́ chúng tôi mới biết tại sao. Mẹ tôi lúc đó cũng bán tín, bán nghi nên lại chạy sang nhà 1 nguời hàng xóm, chỉ cách nhà tôi có 1 căn nhà để hỏi xem coi họ có biết ǵ về chuyện có 2 xác người chết chôn trong nhà tôi khi xưa không? Sở dĩ mẹ tôi hỏi gia đ́nh này v́ họ đă từng sống tại khu vực này cả hơn trăm năm nay rồi, và nguời chủ nhà lúc đó nếu sống tới bây giờ th́ cũng phải trên 100 tuổi rồi. Ông ta liền xác nhận là quả thật lúc trước có 2 xác người bị Pháp bắn chết đem về chôn ngay ở chỗ chính giữa căn nhà tôi, nhưng không có quan tài hay bia huyệt ǵ cả, nên sau này người mua lại miếng đất không biết, chỉ cất nhà lên để ở thôi. Ông cũng nói thêm là ông không dám nói cho nhà tôi biết, v́ sợ làm cho gia đ́nh tôi lại lo sợ thêm, nhưng bây giờ mẹ tôi đă biết mà hỏi th́ ông ta mới nói. Thế là từ đó chúng tôi mới biết là giữa nhà ḿnh có 2 xác chết, mà như ông thầy lang nói là 2 con quỷ rất hung dữ sẽ làm cho gia đ́nh tôi tán gia bại sản, đàn ông trong nhà sẽ đau yếu, đoản thọ. Mà quả thật là như vậy, v́ tới đầu năm 1975 th́ ba tôi qua đời. Sau đó vào năm 1977 th́ tới phiên anh tôi bị bệnh. Chạy chữa bao nhiêu thuốc vừa mới đỡ th́ lại bị bắt đi bộ đội. Tôi nghĩ cái đó cũng là điều may v́ mẹ tôi rất thương con, không muốn cho anh tôi bị bắt đi lính nên đem anh tôi xuống gởi cho họ hàng duới quê. Từ ngày rời gia đ́nh th́ anh tôi trở lên khoẻ mạnh chứ không c̣n đau yếu bệnh hoạn triền miên như trước. Rồi sau đó tới phiên tôi cũng vậy. Hồi tôi c̣n ở nhà cũng bị đau yếu thường xuyên, thậm chí năm nào đi học cũng phải nghỉ hết 2,3 tháng v́ bệnh. Một điều kỳ lạ là mẹ và các chị, em gái tôi đều khoẻ mạnh b́nh thuờng, khiến cho 1 vị y tá ở khu vực nhà tôi cứ hay được mẹ tôi mời tới để chích thuốc cho chúng tôi đă phải thốt lên là "con trai nhà bác ǵ mà c̣n ốm yếu hơn con gái nữa!"
    Nhờ mẹ tôi gởi xuống dưới quê nên sau này tôi và anh tôi mới có dịp vượt biên và sang định cư ở Hoa Kỳ. Sau khi chúng tôi tới đây th́ lo đi làm gởi tiền về cho mẹ tôi mua lại căn nhà đó, rồi đến năm 1986 th́ đập đi xây lại nhà mới. Lúc đó th́ tôi chưa biết ǵ về Phong thuỷ, nhưng vẫn c̣n nhớ cái mộ giữa nhà nên có nói với mẹ tôi nên nhờ người đào lên lấy hết hài cốt trong nhà ra rồi hăy xây nhà lại. Nhưng khi mẹ tôi nhờ người đào khu vực đó lên th́ không thấy ǵ hết, nên gia đ́nh tôi vẫn tiếp tục làm nhà và sống trong căn nhà đó cho tới bây giờ. Một điều tôi nhận thấy là từ sau khi chúng tôi qua đuợc bên này th́ gia đ́nh tôi bên VN cũng đỡ vất vả đi nhiều, và sau khi xây nhà lại th́ thấy khấm khá hẳn lên. Sau này tôi học Phong thuỷ và nhất là biết tới môn Huyền không phi tinh lấy trạch vận cho căn nhà cũ của ḿnh mới biết lư do tại sao mà ra nông nỗi như thế.
    Viết đến đây th́ tôi nghĩ nếu có bạn nào đang nghiên cứu về môn Huyền không phi tinh mà muốn biết lư do tại sao gia đ́nh tôi bị như vậy th́ tôi xin cung cấp 1 số chi tiết sau cho các bạn tham khảo:
     - Nhà tôi toạ SỬU, hướng MÙI (210 độ), nhập trạch năm 1965. Xây lại năm 1986.
     - Cửa trước nằm ở phương MÙI (tức TÂY NAM), cửa sau nằm ở khu vực phía TÂY (v́ nhà tôi xây theo kiểu gần giống lối nhà ranch ở bên Mỹ, tức là mặt tiền dài, nhưng chiều sâu ngắn). Nhà tôi lại sát vách với nhà hàng xóm ở phía sau, nên phải làm cả cửa trước lẫn cửa sau nơi phía trước (tức mặt tiền của căn nhà).
     - Ngơ vào nhà nằm ở phía NAM của căn nhà.
    V́ nhà tôi có cả của trước lẫn cửa sau đều nằm ở phía truớc nhà, lại thêm cửa sổ, nhà lại quay về hướng TÂY NAM, chiều sâu căn nhà lại rất hẹp (chỉ khoảng 4 mét) nên nhà tôi lúc nào cũng sáng sủa, nhất là từ chiều đến tối, ánh nắng rọi vào rất gay gắt, nên tôi nghĩ có lẽ v́ vậy mà tuy trong nhà có ma, nhưng chưa bao giờ chúng tôi thấy ma xuất hiện hay quấy phá ǵ cả.
    Riêng về vấn đề t́m không thấy hài cốt của người chết th́ tôi nghĩ có lẽ v́ họ không được mai táng đàng hoàng, có quan, quách hẳn hoi, nên sau nhiều năm xương cốt đă bị mục nát hết chăng? Chỉ có điều là từ khi xây nhà lại xong th́ gia đ́nh tôi cũng trở nên tương đối khá trong vùng. Điều này các bạn học Huyền không phi tinh có thể thấy được lư do tại sao? Nó không ngoài câu " Nhất chính đương quyền, bách tà cũng phục" mà thôi.
    Cho nên dựa vào những ǵ ḿnh đă trải qua, cũng như sau này đọc phần luận đoán của Chương trọng Sơn về dương trạch, tôi mới đi đến kết luận là dù trong nhà có ma, nhưng nếu hướng nhà, cửa ra vào mà thu nạp được vượng khí, nhà lại sáng sủa th́ ma không thể nào xuất hiện, dù có quấy phá cũng chỉ ngấm ngầm mà thôi. V́ ma, quỷ là cơi âm, chỉ tồn tại ở những nơi có nhiều âm khí, tức là những chổ tối tăm, không có ánh sáng. Ngược lại, những nhà tuy không có ma, nhưng nếu v́ 1 lư do ǵ đó mà trong nhà quá tối tăm, u ám cũng có ngày bị hồn ma từ chỗ khác kéo đếm tác quái mà thôi.
    Năy giờ tôi viết quá dài, hy vọng không làm Nguyệt Nương và mọi người ngủ gục.
    BNQ

Sửa lại bởi BINHNGUYENQUAN : 02 September 2005 lúc 9:00am
Quay trở về đầu Xem BINHNGUYENQUAN's Thông tin sơ lược T́m các bài viết đă gửi bởi BINHNGUYENQUAN
 
longly
Hội viên
 Hội viên
Biểu tượng

Đă tham gia: 30 December 2003
Nơi cư ngụ: United States
Hiện giờ: Offline
Bài gửi: 307
Msg 9 of 37: Đă gửi: 02 September 2005 lúc 12:19pm | Đă lưu IP Trích dẫn longly

Chào anh BINHNGUYENQUAN,

Vắng mặt bấy lâu, nay trở lại nghe anh kể chuyện ma thấy hồi hộp quá. Kinh nghiệm từ gia đ́nh tôi cũng tương tự như thế, chỉ có khác là phía sau nhà của Ba Má tôi là khu nghĩa địa xưa, nên khi cất nhà lại th́ mỗi nơi làm cột móng là đào trúng một quan tài và phải làm lể hốt cốt cho họ.

Hầu hết các nhà trong khu vực tôi ở đều bị ma quấy phá, mặc dù không gia đ́nh nào kể là gặp bóng ma trong nhà nhưng mỗi gia đ́nh đều có một đặc tính chung là có sự gây gỗ trong gia đ́nh. Liên hệ giữa xóm giềng rất tốt, duy chỉ trong mỗi gia đ́nh th́ có sự xích mích giữa vợ chồng, con cái mà thôi.

Kể ra kinh nghiệm như vậy mới thấy rơ thế giới của người chết cũng khá phức tạp. Theo tôi suy diễn th́ thế giới này chỉ bao gồm những linh hồn, vong linh của những người không được siêu thoát (nói theo Phật giáo), hoặc chưa xuống địa ngục hoặc lên thiên đàn (nói theo Công giáo).

Những linh hồn này c̣n lẩn quẩn trong thế giới của người c̣n sống và có sự tương tác với thế giới này, bằng chứng là có người bị qủi ám, bị ma đè khi ngủ, hoặc bị phá cho sức khoẻ yếu, phá cho không khí trong gia đ́nh luôn căng thẳng, v.v. Đương nhiên cũng có những nơi có ma nhưng vẩn b́nh yên. Điều này cũng dể hiểu v́ hồn ma cũng từ con người mà ra. Người sống cũng có người hiền, người dữ, người ác, người thiện nên khi chết th́ linh hồn của họ vẫn mang các đặc tính như khi họ c̣n sống. Cho nên tùy vào đặc tính của từng hồn ma mà sự quấy phá người sống có khác nhau như đă nói ở trên.

Nếu ta hiểu được về thế giới của người chết th́ ta có thể t́m ra nhiều cách để bớt bị quấy phá. Ví dụ như trong khu vực ta ở mà biết được có mồ mả, th́ ta nên làm lể hốt cốt để các vong hồn dể siêu thoát, hoặc cải táng các mộ đó đi nơi khác. Khi linh hồn của họ được yên tĩnh th́ không có lư do ǵ họ quấy phá ta.

Những cách khác như đặt các tượng linh thiên như tượng Chúa, tượng Đức Mẹ, tượng Phật, tượng Quan Âm, v.v., hoặc dùng phong thủy để khiến cho các bóng ma không thể xuất hiện, nhưng không giải quyết tận gốc của vấn đề. Bằng chứng là từ kinh nghiệm của gia đ́nh tôi và gia đ́nh anh BINHNGUYENQUAN, gia đ́nh tôi cũng theo đạo Công giáo nên có đặt tượng Chúa, tượng Đức Mẹ trong nhà và sớm tối đều đọc kinh cầu nguyện. Tuy không thấy bóng ma những vẫn bị quấy phá.

Tuy nhiên, cách nào cũng có cái dễ, cái khó của nó. Trong nhà có ma cũng do số phần định đoạt cả. Khoa tử vi cũng có cách xem số coi nhà ở có ma hay không. Nếu biết là số phần bị có ma trong nhà th́ làm cách nào t́m ra mộ nằm ở đâu để hốt cốt đây, cách này khó đấy. Nếu không thực hiện được cách này th́ đành phải dùng cách dể hơn như đặt tượng thờ trong nhà rồi thành tâm đọc kinh cầu nguyện để được b́nh an, và nếu kết hợp với phong thuỷ th́ càng tốt. Cho nên vấn đề dùng phong thủy để hoá giải bóng ma trong nhà được anh BINHNGUYENQUAN ra tay hướng dẫn th́ coi như phúc cho cả làng ĐLPT này .

Kính,
LongLy.


__________________
Nhất thân nhất kiếm tầm long mạch
Bách sơn bách hướng ngoái cổ t́m
Quay trở về đầu Xem longly's Thông tin sơ lược T́m các bài viết đă gửi bởi longly
 
Zero04
Hội viên
 Hội viên


Đă tham gia: 10 November 2004
Nơi cư ngụ: United States
Hiện giờ: Offline
Bài gửi: 1114
Msg 10 of 37: Đă gửi: 02 September 2005 lúc 12:24pm | Đă lưu IP Trích dẫn Zero04

    Vấn đề xương cốt lâu năm bị mục rửa mà anh BNQ nêu ra, tôi không cho là vậy. Hiện giờ, nhiều nơi như Egyp, họ c̣n t́m được sọ, và xương cốt cách đây đă ngh́n năm.
Quay trở về đầu Xem Zero04's Thông tin sơ lược T́m các bài viết đă gửi bởi Zero04
 
nguyen an
Hội viên
 Hội viên


Đă tham gia: 12 August 2003
Nơi cư ngụ: United States
Hiện giờ: Offline
Bài gửi: 30
Msg 11 of 37: Đă gửi: 02 September 2005 lúc 12:46pm | Đă lưu IP Trích dẫn nguyen an

Rất vui khi thấy anh B́nh Nguyên Quân trở lại với diễn đàn

nguyên an
Quay trở về đầu Xem nguyen an's Thông tin sơ lược T́m các bài viết đă gửi bởi nguyen an
 
BINHNGUYENQUAN
Hội viên
 Hội viên


Đă tham gia: 23 December 2003
Nơi cư ngụ: United States
Hiện giờ: Offline
Bài gửi: 818
Msg 12 of 37: Đă gửi: 03 September 2005 lúc 3:11am | Đă lưu IP Trích dẫn BINHNGUYENQUAN

       Chào anh Long Lư,
    Đúng như anh nói là vấn đề tương tác với hồn ma cho đến bây giờ cũng vẫn c̣n nhiều bí ẩn và đầy phức tạp. Hầu như mọi tôn giáo và nhiều học thuật đă dành ra khá nhiều thời gian và công sức để đối phó với vấn đề này, nhưng có lúc có kết quả, có lúc không. Điều này cũng c̣n tuỳ thuộc vào hồn ma là hiền hay đữ, biết nghe theo lẽ phải hay cố chấp...!! Cách đây đă lâu, BNQ cũng vô t́nh đọc 1 tờ báo Mỹ nói về vấn đề này, nhưng họ lại đưa ra 1 giải pháp khá lư thú là t́m kiếm những người có khả năng nói chuyện với người chết để thuyết phục những hồn ma c̣n vất vưởng với thế giới thực tại là họ không c̣n thuộc về thế giới này nữa th́ hồn ma sẽ đi qua thế giới khác và không c̣n quấy phá người c̣n sống nữa. Họ có đưa ra 1 số thí dụ về những căn nhà bị ma ám, nhưng sau khi được "thuyết phục" th́ hồn ma không c̣n nữa, và những gia đ́nh này quay trở về đời sống yên ổn, b́nh thường. Nhưng sau khi đọc xong bài báo đó th́ BNQ vẫn thắc mắc là không biết người sống có thuyết phục nổi những hồn ma thuộc loại "dữ" như tự tử hay chết bất đắc kỳ tử không? Hay chỉ thuyết phục được những hồn ma thuộc loại "hiền" như chết v́ già hay v́ bệnh?
   Riêng đối với môn Phong thuỷ th́ sau khi đọc đi đọc lại phần luận đoán dương trạch của Chương trong Sơn, BNQ nhận thấy cứ mỗi khi gặp 1 nhà nào mà quá tối tăm, u ám, ông đều luận đoán nhà đó có ma, có quỷ, bất kể là nhà đó có sẵn hồn ma hay xác chết trong nhà hay không? Như thế đủ biết là nhà ở phải có đầy đủ ánh nắng mặt trời mới tốt, c̣n nếu ngột ngạt, tối tăm là vấn đề đại kỵ cho dương trạch. C̣n khi nói tới việc hoá giải những điều này th́ cả Chương trọng Sơn lẫn Thẩm trúc Nhưng và Vương tắc Tiên đều có cùng 1 quan điểm là "mở cửa ở phương vuợng". Nhưng cửa ở vị trí nào mới được gọi là "phương vượng"? Điều này cần phải dùng cách bài bố phi tinh giống như của Thành môn để xác định vị trí vượng, suy của cửa mà quyết định, chứ không phải theo khu vực có vượng khí của căn nhà. Điều này nếu nói dài ḍng th́ lại càng khó hiểu nên BNQ xin lấy thí dụ về căn nhà của cô Nguyệt Nương này. Nếu thực sự nhà của cô ta là hướng chính ĐÔNG (90 độ), và sơ đồ cô ấy cho là đúng với tỉ lệ kích thuớc của căn nhà, nếu lập phi tinh để tính trạch vận cho căn nhà th́ sẽ thấy khu vực phía ĐÔNG có vận tinh là 6, sơn tinh 3 và hướng tinh 4. Người mới học về Huyền không thường cho rằng căn nhà này xấu, vận khí thất bại không thể dùng được. Nhưng nếu để ư kỹ hơn 1 chút th́ sẽ thấy cửa trước nhà cô ta nằm ở cung GIÁP (v́ hướng ĐÔNG c̣n được chia ra thành 3 hướng nhỏ là GIÁP, MĂO, ẤT).Lấy vận tinh của phía ĐÔNG là số 6 nhập trung. V́ cửa nằm ở cung GIÁP là tương ứng với cung TUẤT của số 6 nên lấy 6 nhập trung cung bay nghịch th́ 8 sẽ đến cửa trước. 8 là vượng khí của vận này nên nhà hướng ĐÔNG mà có cửa trước nằm ở cung GIÁP th́ tưởng là không tốt mà hoá ra lại tốt.
    Nhưng nếu nói tốt th́ sao trong nhà lại có ma? Đó chẳng qua là v́ khu vực cửa trước lại xây hành lang làm cản trở khiến vượng khí khó vào tầng trệt được. Rồi lại làm thêm cánh cửa quay về hướng BẮC khiến cho vượng khí bị pha tạp. Kế đó là cầu thang lên lầu và xuống basement đều nằm ở khu vực phía ĐÔNG BẮC, nơi này có vận tinh 2, sơn tinh 7 và hướng tinh 9, tức bị âm tinh tụ tập dày đặc ở đó. Rồi cửa sau nằm ở cung TỐN có vận tinh 7, sơn tinh 2 và Hướng tinh 5 là vừa bị âm tinh thao túng, lại vừa phạm cách Nhị- Ngũ (2-5) giao nhau chủ nhà sẽ bị tai hoạ. Cho nên do hành lang làm cản trở hết vượng khí của cửa trước, lại bị hung sát và âm khí dày đặc của cửa sau và cầu thang tràn vào thao túng, mà trong nhà lại tối tăm, u ám th́ làm sao mà không có ma quỷ xuất hiện được? V́ ma quỷ là thuộc cơi âm, nhà đă không đủ ánh dương quang tức là âm khí dày đặc, lại c̣n bị âm khí của phi tinh trợ lực thao túng th́ người sống khó ḷng ở lâu mà không có vấn đề ǵ xảy ra được.
    Cho nên phương cách hoá giải cho căn nhà này là phải phá bể hành lang nơi phía trước để cho vượng khí vào nhà, đồng thời bít cửa hông, mở cửa sau ở phía TÂY (cung DẬU hay TÂN) và cửa sổ nơi phía TÂY NAM để lấy thêm vượng khí và ánh sáng th́ nhà sẽ không c̣n bị ma ám nữa.
     Một điều cần nói thêm là chỉ có tầng trệt và basement của căn nhà này là có ma, c̣n tầng trên lầu th́ lại rất tốt, 1 phần v́ sáng sủa hơn 2 tầng dưới, 1 phần v́ được cầu thang dẫn vượng khí của cửa trước chạy thẳng lên lầu, cho nên công việc làm ăn sẽ càng ngày càng khá giải. Bởi thế cho nên tuy cùng là 1 building, nhưng do sai lầm về cấu trúc mà mỗi tầng sẽ có vận số hên, xui khác nhau là vậy.
    Trên đây chỉ là học thuật của người xưa truyền lại mà BNQ có đọc qua nên muốn nói 1 chút cho những ai chưa đọc cũng đuợc biết để rút tỉa kinh nghiệm. Nếu có đúng th́ cái hay là của người xưa, không phải chờ tới phiên BNQ. C̣n nếu có sai là do BNQ chưa học hết mà đă vội nói. Rất mong anh cũng như cô Nguyệt Nương và mọi người bỏ qua cho.
    Một điều cần nói thêm là những điều BNQ vừa nói trên chỉ là giả dụ trong trường hợp nếu nhà của cô Nguyệt Nương đúng vào hướng và kích thuớc vừa nói. C̣n nếu không phải th́ những điều BNQ vừa nói quả thật chỉ là 1 thí dụ mà thôi.
    Kính anh
     BNQ

    Chào Zero04,
   Tôi cũng có nghe qua những hài cốt cách đây hàng ngàn năm được t́m thấy ở Ai cập hoặc Bắc Phi, nhưng theo tôi được biết th́ những hài cốt mà tồn tại lâu như vậy là do điều kiện môi trường 1 là quá khô và nóng như Trung Đông, Ai cập hoặc Bắc Phi, 2 là quá lạnh như Bắc Âu hoặc Siberia...
    Riêng với khí hậu nhiệt đới của VN th́ vừa nóng vừa ẩm ướt nên rất hiếm có thi thể nào tồn tại được lâu (ngoại trừ của những vị cao tăng đời xưa, nhưng đó là 1 vấn đề khác, v́ da thịt của họ không c̣n như của người b́nh thường nữa sau nhiều năm tu luyện). C̣n với khu nhà tôi ở th́ tôi nhớ hồi tôi c̣n ở nhà cứ mỗi lần trời mưa hay trong mùa mưa là nước giếng cứ dâng lên tới sát mặt đất. Trước nhà tôi có cái giếng, đă xây thành lên cao gần 1 mét mà hồi đó tôi hoặc anh tôi ra múc nước cứ việc cần thùng cúi xúng múc lên chứ không cần phải thả dây bao giờ. Sau này có phong trào đóng giếng ngầm, mẹ tôi cũng kêu người tới đóng th́ họ nói chỉ cần đóng xuống từ 3 đến 5 mét là nhà tôi cũng có dư nuớc xài. Cho nên tôi nghĩ có lẽ tại khu nhà tôi thấp, hàng năm vào mùa mưa nước dâng lên tới sát mặt đất, nên những thi thể chôn cất không được tử tế th́ khó mà tồn tại được lâu. Nhưng đó cũng chỉ là lối suy nghĩ riêng của tôi thôi, không chắc đă đúng. Tôi nghĩ cũng có thể là do nuớc cứ dâng lên, hạ xuống kiểu đó nên sau nhiều năm đă làm cho hài cốt di chuyển sang chỗ khác, không c̣n nằm đúng ngay chỗ lỏm xuống nữa. Mà mẹ tôi lúc nhờ người đào lên th́ cũng chỉ nhờ mấy nguời làm nhà nhân thể họ đào móng làm nền th́ họ đào dùm thôi, chứ không phải là kiếm nguời đi t́m cốt hẳn hoi. Mà thợ làm nhà th́ họ cũng chỉ muốn làm cho xong căn nhà để đi thầu tiếp nhà khác, chứ đâu có th́ giờ đi đào bới kiếm xương người chết đâu. Cho nên nếu nói ra th́ có rất nhiều lư do, nhưng tôi sợ lại dài ḍng quá nên chỉ nói luớt qua ư nghĩ của tôi mà thôi.
    Thân,
    BNQ

     Chào Nguyên An,
   Cám ơn Nguyên An đă kích lệ, nhưng tôi có lúc vào, có lúc ra, c̣n tuỳ hứng và thời gian cho phép thôi.
    Chúc Nguyên An và mọi người những ngày cuối tuần và holiday tốt đẹp.
      BNQ
    

Sửa lại bởi BINHNGUYENQUAN : 03 September 2005 lúc 8:13am
Quay trở về đầu Xem BINHNGUYENQUAN's Thông tin sơ lược T́m các bài viết đă gửi bởi BINHNGUYENQUAN
 
Tuyet Suong
Hội viên
 Hội viên


Đă tham gia: 29 May 2005
Hiện giờ: Offline
Bài gửi: 385
Msg 13 of 37: Đă gửi: 05 September 2005 lúc 1:45am | Đă lưu IP Trích dẫn Tuyet Suong


BINHNGUYENQUAN đă viết:
...Một điều nữa làm ba tôi giật ḿnh là tự nhiên ông ta lại hỏi tại sao vào năm 1954, trước lúc di cư, gia đ́nh tôi lại đi cải táng cho mộ ông của ba tôi. Ông nói rằng mộ lúc đó đang phát, bỗng nhiên đào lên cải táng nên bây giờ con cháu mới xuống dốc như vậy. Điều này làm ba tôi hết sức ngạc nhiên, v́ từ ngày vào Nam ông không hế tiết lộ chuyện đó với ai, chỉ có những người khi đó đào mộ đem chôn mới biết mà thôi (ba tôi và ông nội tôi là 2 trong số những người dó). Đến lúc đó ba tôi mới nói cho cả nhà biết là khi cải táng th́ thấy tơ vàng đă kết đầy huyệt rồi...

Chào BINHNGUYENQUAN,
Bài ở trên của BNQ rất hấp dẫn! Không buồn ngủ đâu. TS rất ngạc nhiên khi đọc đến đoạn tơ vàng đă kết đầy huyệt rồi...thực t́nh chưa bao giờ được nghe đến chuyện này. TS mong BNQ giải thích thêm như thế nào là được gọi mộ đang kết phát, hoặc như được diễn tả tơ vàng đă kết đầy huyệt...thực tế trông nó như thế nào nhỉ??? Cảm ơn nhiều.
Quay trở về đầu Xem Tuyet Suong's Thông tin sơ lược T́m các bài viết đă gửi bởi Tuyet Suong
 
TueNhan
Hội viên
 Hội viên
Biểu tượng

Đă tham gia: 23 July 2003
Nơi cư ngụ: Vietnam
Hiện giờ: Offline
Bài gửi: 62
Msg 14 of 37: Đă gửi: 05 September 2005 lúc 9:00pm | Đă lưu IP Trích dẫn TueNhan

Bạn Nguyệt Nương,
Những ư kiến của B́nh Nguyên Quân là quá tốt rồi. Tôi chỉ góp ư về "thanh tẩy" như đă nói.
1- Bạn tập trung tư tưởng trước khi bắt đầu. Cần thuộc ḷng một hay các câu chân ngôn sau:
        - Um Mani Padmê Hum (Úm Mani Bat Di Hồng);
        - Um Shryzim (Úm Xỉ lâm);
        - Um Chalê Chôlê Cundê Svaha Phrum(Úm Chiết lệ Chủ lệ Chuẩn đề Ta bà ha. Bộ lâm).
2- Bắt đầu từ hướng Đông (East) đi vừa đi chậm răi, giữ tâm b́nh an, tụng thầm hoặc ra tiếng các câu chú trên, đi về hướng Đôngnam; rồi Trung tâm nhà-> Tâybắc-> Tây->
Đôngbắc-> Nam-> kết thúc ở Bắc. Bạn lập lại nghi thức 3/7/21 lần càng tốt (Do định lực của bạn ... mới toanh nên cần gia tŕ lập đi lập lại mới có sức    ).
3- Sau đó bạn dùng hạt cải trắng(không có th́ thay thế bằng gạo trắng)để trong dĩa. Vừa đi vừa tụng chú vừa rắc hạt ṿng trong nhà và xung quanh nhà.
4- Khi làm số 2, tay nên kết ấn: hai tay chắp, co hai ngón trỏ-ngón mặt ngoài ngón trái, hai ngón cái vịn đốt giữa ngón trỏ.
5- Ấn khi làm số 3: Tay trái co ngón giữa ngón áp út, ngửa lên bưng dĩa. Tay mặt rải hạt bằng ngón cái và ngón áp út.
6- Bạn nên làm một mâm cơm cúng khấn "Bản gia Tiền chủ", xin với người khuất mày khuất mặt đă từng trú ngụ tại đó, cho phép ḿnh được ở tiếp và xin họ giúp đỡ cho ḿnh.
Hy vọng bạn sẽ t́m lại được b́nh an cho ngôi nhà của ḿnh.
Thân.
Quay trở về đầu Xem TueNhan's Thông tin sơ lược T́m các bài viết đă gửi bởi TueNhan
 
BINHNGUYENQUAN
Hội viên
 Hội viên


Đă tham gia: 23 December 2003
Nơi cư ngụ: United States
Hiện giờ: Offline
Bài gửi: 818
Msg 15 of 37: Đă gửi: 06 September 2005 lúc 1:22am | Đă lưu IP Trích dẫn BINHNGUYENQUAN


       Chào Tuyết Sương,
    Thực tế th́ tôi cũng chưa được tận mắt nh́n thấy bên trong những ngôi mộ đang kết nên không biết tơ vàng nó như thế nào? H́nh dạng ra sao?... Chỉ nhớ mang máng lời ba tôi nói lúc đó là khi đào huyệt lên th́ thấy " tơ vàng óng dăng chằng chịt đầy mộ".
    Nếu Tuyết Sương muốn t́m hiểu thêm về vấn đề này th́ có thể t́m đọc bài "NGÔI MỘ KẾT" cũng trong mục Địa lư phong thuỷ này (phần đầu trang 4). Hy vọng những bài viết trong đó sẽ giải đáp được những thắc mắc của Tuyết Sương.
    Riêng với câu hỏi " như thế nào là được gọi mộ đang kết phát" th́ tôi không biết ư của Tuyết Sương là muốn định nghĩa hay muốn biết làm cách nào để nh́n hay nhận biết được là mộ đang phát? Nếu muốn định nghĩa th́ theo tôi nghĩ mộ đang kết phát là những ngôi mộ đang nhận được vượng khí (hay khí tốt) của long mạch (tức vùng đất nơi đặt mồ mả) khiến cho con cháu giàu sang, phú quư hay ngày càng đông đúc (vượng nhân đinh). Việc phát mạnh hay yếu th́ c̣n tuỳ thuộc vào nơi hạ táng có nằm đúng "huyệt" hay không? Cũng như long mạch của cuộc đất là lớn hay nhỏ để xác định mức độ thụ hưởng của con cháu là lâu dài hay ngắn ngủi. C̣n nếu muốn biết được là ngôi mộ có đang phát hay không th́ đối với phái Huyền không phi tinh mà tôi đang học và xử dụng th́ chỉ cần biết chính xác hướng mộ, thời điểm xây mộ và địa thế chung quanh là có thể biết được mộ đang phát hay không? Và đến bao giờ mới phát? Phát được bao lâu? ... Nếu đang phát th́ để yên, nếu không phát th́ có thể chọn hướng khác và ngày giờ tốt để cải táng.
    Mấy ḍng thô thiển, và cũng chỉ là ư kiến của riêng tôi (c̣n những vị có tŕnh độ cao thâm về địa huyệt, cũng như những trường phái khác có thể sẽ có những lời giải thích tinh tường và sâu sắc hơn về vấn đề này), mong giải đáp được phần nào thắc mắc của Tuyết Sương.
    BNQ
Quay trở về đầu Xem BINHNGUYENQUAN's Thông tin sơ lược T́m các bài viết đă gửi bởi BINHNGUYENQUAN
 
longly
Hội viên
 Hội viên
Biểu tượng

Đă tham gia: 30 December 2003
Nơi cư ngụ: United States
Hiện giờ: Offline
Bài gửi: 307
Msg 16 of 37: Đă gửi: 06 September 2005 lúc 1:20pm | Đă lưu IP Trích dẫn longly

Chào anh BINHNGUYENQUAN,

Đúng như lời anh giải thích những trường hợp mà Chương trọng Sơn, Thẩm trúc Nhưng và Vương tắc Tiên luận đoán tại sao trong nhà lại xuất hiện ma qủy, th́ hầu hết các nhà đều thiếu ánh sáng tạo môi trường âm tính cho các hồn ma ẩn náo.

Có một trường hợp mà tôi đọc được là cho dù căn nhà được vượng cả đinh lẫn tài nhưng vẫn bị hồn ma xuất hiện. Lư do là hoàn cảnh môi trường bên ngoài tác động lên, cộng thêm những nơi bị tác động là những cung có nhiều sao là âm tinh nên tuy nhà có hướng tốt nhưng vẫn có hồn ma xuất hiện. Cách mà Chương trọng Sơn đơn cử là mở cửa ở cung có vượng tinh để đưa cả ánh sáng lẫn vượng khí vào nhà th́ mới hoá giải được. Mặc dù đă đọc phần luận đoán này lâu rồi nhưng không để ư cho kỹ lắm v́ ít khi gặp căn nhà có bóng ma xuất hiện, nhờ hôm nay anh hướng dẫn thêm nên hiểu cặn kẻ hơn.

Tôi có một thắc mắc trong phần ví dụ trên, anh đề nghị mở cửa sổ nơi phía TÂY NAM mục đích là để lấy ánh sáng không thôi hay c̣n có ư nghĩa ǵ khác? V́ hướng TÂY NAM trong ví dụ này có vận tinh 5, sơn tinh 4 và Hướng tinh 3, không phải là vượng tinh. Xin anh giải thích thêm.

Kính,
LongLy

Sửa lại bởi longly : 06 September 2005 lúc 1:21pm


__________________
Nhất thân nhất kiếm tầm long mạch
Bách sơn bách hướng ngoái cổ t́m
Quay trở về đầu Xem longly's Thông tin sơ lược T́m các bài viết đă gửi bởi longly
 
thienloi
Hội viên
 Hội viên
Biểu tượng

Đă tham gia: 12 July 2005
Nơi cư ngụ: United States
Hiện giờ: Offline
Bài gửi: 67
Msg 17 of 37: Đă gửi: 06 September 2005 lúc 3:33pm | Đă lưu IP Trích dẫn thienloi

Ít khi thấy có dịp các vị hiểu biết về Huyền Không trao đổi ư kiến với nhau như thế này. Nay tôi xin mạo mụi hỏi một vài câu, mong các vị phân tích thêm. (Xin lỗi trước nếu câu hỏi bị lạc đề)

Phần trên bác BNQ có viết: "Nếu thực sự nhà là hướng chính ĐÔNG (90 độ) và sơ đồ đúng với tỉ lệ kích thuớc của căn nhà, th́ khu vực phía ĐÔNG có vận tinh là 6, sơn tinh 3 và hướng tinh 4. Người mới học về Huyền không thường cho rằng căn nhà này xấu, vận khí thất bại không thể dùng được. Nhưng nếu để ư kỹ hơn 1 chút th́ sẽ thấy cửa trước nhà cô ta nằm ở cung GIÁP (v́ hướng ĐÔNG c̣n được chia ra thành 3 hướng nhỏ là GIÁP, MĂO, ẤT).Lấy vận tinh của phía ĐÔNG là số 6 nhập trung. V́ cửa nằm ở cung GIÁP là tương ứng với cung TUẤT của số 6 nên lấy 6 nhập trung cung bay nghịch th́ 8 sẽ đến cửa trước. 8 là vượng khí của vận này nên nhà hướng ĐÔNG mà có cửa trước nằm ở cung GIÁP th́ tưởng là không tốt mà hoá ra lại tốt. "

Xin cho biết cách này luận theo thế quái, thành môn hay một lư thuyết nào trong Huyền Không mà tôi thấy rất mới lạ.

Nếu căn nhà là hướng chính ĐÔNG (90 độ) có vận tinh là 6, th́ hướng chính thuộc cung Măo (Thiên nguyên long, khí dương), trong khi cửa chính thuộc cung Giáp (Địa nguyên long, khí âm), như vậy cửa và hướng không đồng nguyên hoặc đồng khí. Nếu không có vượng tinh 8 đến cửa theo như cách luận trên, th́ trường hợp này có phải xem là "xuất quái", là xấu hay không?

Xin cám ơn.
Quay trở về đầu Xem thienloi's Thông tin sơ lược T́m các bài viết đă gửi bởi thienloi
 
BINHNGUYENQUAN
Hội viên
 Hội viên


Đă tham gia: 23 December 2003
Nơi cư ngụ: United States
Hiện giờ: Offline
Bài gửi: 818
Msg 18 of 37: Đă gửi: 07 September 2005 lúc 2:18am | Đă lưu IP Trích dẫn BINHNGUYENQUAN


        Chào anh Long Lư,
    BNQ cũng biết là anh có sách, nhưng chưa có thời giờ đọc kỹ nên mới cố t́nh nhắc đi nhắc lại cái tên Chương trọng Sơn để anh xem lại phần đó th́ tất nhiên sẽ hiểu thấu thôi!!Hi hi...
    C̣n về việc BNQ đề nghị mở cửa sổ nơi phía TÂY NAM mục đích chỉ là để lấy ánh nắng vào trong nhà thôi, chứ không có ư ǵ khác. Lư do là v́ khi nh́n vào sơ đồ căn nhà, cũng như sau khi nghe Nguyệt Nương nói về nhà cô bị 2 căn nhà 2 bên đều cao hơn nhà cô th́ BNQ nghĩ rằng tuy những khu vực phía NAM và TÂY của nhà cô có nhiều cửa sổ, nhưng chắc nhà vẫn tối, nhất là khu vực từ giữa tới phía sau nhà. V́ nhà cô ở tận bên Canada, nên cho dù là vào ngay giữa mùa hè đi nữa, mặt trời cũng chỉ chiếu vào nhà cô từ phía TÂY NAM chứ không thể lên đến chính TÂY để chiếu vào nhà. V́ vậy mà tuy nhà cô đă có cửa sổ lớn ở phía sau (khu vực hướng TÂY), nhưng vẫn không giúp ích được ǵ mấy. C̣n vào mùa ĐÔNG th́ nhà sẽ c̣n bị tối tăm hơn nữa. Cho nên BNQ mới đề nghị mở thêm cửa sổ nơi phía TÂY NAM (mà cũng cần nên làm ở nơi góc phía cuối căn nhà mới lấy được nhiều ánh sáng, v́ chỗ đó mới không c̣n bị nhà bên cạnh che chắn, nếu tính đến trường hợp các nhà trong cùng 2 dăy phố th́ thường là làm tương đối đồng đều). Có như thế th́ mới có đầy đủ ánh dương quang chiếu vào nhà hầu phá tan bầu không khí âm u nặng nề đi được.
   Nhân nói tới hướng TÂY NAM th́ BNQ cũng xin nêu thêm 1 vấn đề ở đây, đó là theo lư thuyết của phái Huyền không phi tinh th́ trong vận 8, phương vị của chính thần là phía ĐÔNG BẮC, nên phía TÂY NAM là phương vị của Linh thần, nên chỗ này cần đặt nước để cho vượng tài lộc. Nhưng kỳ thật th́ không phải căn nhà nào cũng có thể đặt nước ở hướng TÂY NAM để cầu tài trong vận này được, mà có khi c̣n bị phá tài, hao tổn nặng là đàng khác. Lư do là v́ tuy phía TÂY NAM là phương vị tốt để đặt thuỷ, nhưng chỉ có những căn nhà có sinh hay vượng khí nơi phía này mới nhận được tác dụng tốt của nó mà thôi. C̣n những nhà mà có khí suy, tử ở phương này mà c̣n đặt nuớc th́ chẳng những không thấy lợi lộc ǵ, mà có khi c̣n bị tai hoạ nữa. Chẳng hạn như nhà cô Nguyệt Nương này, nơi phía TÂY NAM có vận tinh 5, sơn tinh 4 và hướng tinh 3. 3-4-5 tuy là 1 loại Tam ban quái, nhưng đều là khí suy tử nên chẳng giúp ích ǵ được. Cho nên nếu đặt nước tại khu vực này th́ tài lộc chẳng thấy vào mà chỉ thấy ra. Gặp những năm có niên tinh 2 chiếu tới th́ c̣n phát sinh ra nhiều chuyện xung đột, kiện tụng nữa. Ngoài ra, những nhà mà nơi phía TÂY NAM bị hướng tinh Ngũ Hoàng, hoặc các sát như 7-6, 2-7, 9-7, 2-3, 3-7... mà c̣n có thuỷ th́ đó chính là sát thuỷ, sẽ bị tổn thất tài sản nặng hay bị những tai hoạ như hoả hoạn, trộm cắp ...
    B́nh thường th́ BNQ chỉ chú ư tới phần thực hành, chứ ít khi bàn luận đến phần lư thuyết, v́ phần này phải cần đến những vị tiền bối cao siêu mới có đủ khả năng chỉ dẫn cho mọi người. Nhưng hôm nay v́ nhân lúc cao hứng nên BNQ mới thốt ra mấy lời thô thiển. Hy vọng những kinh nghiệm thô sơ đó có thể giúp phần nào cho những ai mới bước vào lănh vực học hỏi hay nghiên cứu môn Huyền không phi tinh vậy.
    Kính anh,
       BNQ

     Chào anh Thiên Lôi,
    Theo BNQ nghĩ th́ cách tính khí vượng, suy của cửa ra vào theo lối trên là dựa theo cách tính sự vượng, suy của thành môn mà thôi, chứ không phải là dùng thế quái. Cách này tuy không phải là mới (v́ Chương trọng Sơn hồi cuối đời nhà Thanh đă dùng nó rồi), nhưng quả thật là có lạ, v́ hầu như những sách vở viết về Huyền không đều không đề cặp ǵ tới nó, ngay cả Thẩm trúc Nhưng trong Thẩm thị Huyền không học, cũng như Trạch vận tân án đều không nói tới phương pháp này. Chỉ có ḿnh Chương trọng Sơn khi giải đoán dương trạch mới dùng đến nó mà thôi.
   C̣n trường hợp anh đưa ra quả t́nh là đúng chứ không sai. Nếu nhà hướng MĂO mà cửa hướng GIÁP là phạm cách cuộc khí không đồng nguyên. Nhưng trong trường hợp hướng nhà đang trong vận suy bại mà nếu c̣n trổ cửa tại nơi có cùng 1 khí th́ cũng chẳng giúp ích được ǵ, nên có lẽ v́ vậy mà người xưa mới nghĩ ra cách mở cửa ở nơi có khí khác biệt với hướng, hầu tạm lấy khí vượng của cửa mà tồn tại cho đến khi qua hết vận. Lúc đó, nếu hướng nhà gặp được khí vượng th́ lại phải dời cửa trở về nơi đồng nguyên với hướng. C̣n nếu cứ để vị trí cửa như lúc trước th́ đương nhiên là sẽ bị cái hoạ của cửa và hướng không thuần nhất và suy bại nhanh chóng. Trường hợp này BNQ chỉ nghĩ là nhà phạm phải khí không đồng nhất mà thôi, chứ không phải xuất quái. Xuất quái là trong trường hợp nhà hướng GIÁP mà cửa mở hướng SỬU chẳng hạn th́ mới gọi là xuất quái.
    Kính anh,
      BNQ
    
     
Quay trở về đầu Xem BINHNGUYENQUAN's Thông tin sơ lược T́m các bài viết đă gửi bởi BINHNGUYENQUAN
 
thienloi
Hội viên
 Hội viên
Biểu tượng

Đă tham gia: 12 July 2005
Nơi cư ngụ: United States
Hiện giờ: Offline
Bài gửi: 67
Msg 19 of 37: Đă gửi: 07 September 2005 lúc 10:04pm | Đă lưu IP Trích dẫn thienloi

Hôm nay đọc được phần trả lời của bác BNQ cho câu hỏi của bác Longly, mới biết môn Huyền Không này c̣n nhiều lư thuyết tôi nên học hỏi thêm.

Trong khi chờ đợi cô Nguyệt Nương cung cấp thêm chi tiết, tôi xin hỏi tiếp. Phần trên bác đang luận riêng cho hướng TÂY NAM kỵ có nước nếu ở đây có khí suy tử hoặc các cập sát tinh, mặc dù trong vận 8 hướng này là phương vị Linh thần. Nếu không phải là hướng TÂY NAM, th́ những hướng khác có kỵ tương tự như vậy không?

Lư do phải làm phiền bác là v́ tôi đang t́m mua nhà, nhưng v́ kiến thức hạn hẹp của tôi về Huyền Không nên rất thận trọng để tránh những cái kỵ. Hiện tại tôi đang "nghiên cứu" phong thủy của căn nhà hướng chính Nam, chủ nhà đă dọn đi khoản 5 tháng nên tôi nghĩ khi dọn vào th́ có thể tính trạch vận theo vận 8. Nếu được là vận 8 th́ nhà này có song tinh Bát Bạch đáo hướng, cửa chính nằm trong cung Ngọ nên căn nhà được xem là tốt. Nhưng ngặc một điều là phía sau nhà có hồ bơi, mà phía sau có cập sát tinh 9-7, không biết bác có ư kiến như thế nào.

Xin cám ơn.

Sửa lại bởi thienloi : 07 September 2005 lúc 10:08pm
Quay trở về đầu Xem thienloi's Thông tin sơ lược T́m các bài viết đă gửi bởi thienloi
 
hoangduytam
Hội viên
 Hội viên


Đă tham gia: 20 May 2005
Nơi cư ngụ: Australia
Hiện giờ: Offline
Bài gửi: 169
Msg 20 of 37: Đă gửi: 07 September 2005 lúc 11:41pm | Đă lưu IP Trích dẫn hoangduytam

Trích dẫn:
Lư do phải làm phiền bác là v́ tôi đang t́m mua nhà, nhưng v́ kiến thức hạn hẹp của tôi về Huyền Không nên rất thận trọng để tránh những cái kỵ. Hiện tại tôi đang "nghiên cứu" phong thủy của căn nhà hướng chính Nam, chủ nhà đă dọn đi khoản 5 tháng nên tôi nghĩ khi dọn vào th́ có thể tính trạch vận theo vận 8. Nếu được là vận 8 th́ nhà này có song tinh Bát Bạch đáo hướng, cửa chính nằm trong cung Ngọ nên căn nhà được xem là tốt. Nhưng ngặc một điều là phía sau nhà có hồ bơi, mà phía sau có cập sát tinh 9-7, không biết bác có ư kiến như thế nàọ


Anh ḍ hỏi thử lư do người chủ nhà bán căn này ...

Nếu là tôi, th́ tôi sẽ không mua căn này .

__________________
Tha^n,

Hoa`ng Duy Ta^m
Quay trở về đầu Xem hoangduytam's Thông tin sơ lược T́m các bài viết đă gửi bởi hoangduytam
 

Trang of 2 Kế tiếp >>
  Gửi trả lời Gửi bài mới
Bản để in Bản để in

Chuyển diễn đàn
Bạn không thể gửi bài mới
Bạn không thể trả lời cho các chủ đề
Bạn không thể xóa bài viết
Bạn không thể sửa chữa bài viết
Bạn không thể tạo các cuộc thăm ḍ ư kiến
Bạn không thể bỏ phiếu cho các cuộc thăm ḍ

Powered by Web Wiz Forums version 7.7a
Copyright ©2001-2003 Web Wiz Guide

Trang này đă được tạo ra trong 3.8984 giây.
Google
 
Web tuvilyso.com



DIỄN ĐÀN NÀY ĐĂ ĐÓNG CỬA, TẤT CẢ HỘI VIÊN SINH HOẠT TẠI TUVILYSO.ORG



Bản quyền © 2002-2010 của Tử Vi Lý Số

Copyright © 2002-2010 TUVILYSO