| Tác giả |
|
sang Học Viên Lớp Phong Thủy


Đă tham gia: 21 July 2005 Nơi cư ngụ: Canada
Hiện giờ: Offline Bài gửi: 179
|
| Msg 1 of 27: Đă gửi: 25 October 2005 lúc 7:09pm | Đă lưu IP
|
|
|
kính chào quư vị
xin quư vị vui ḷng giúp đỡ
kính chào bác Binh Nguyen Quan , va` ki'nh nhờ huynh longly upload dùm sơ đồ của căn nhà .
- ngôi nhà nằm ở CORNER , và cái corner đó th́ thuộc về phía CHÁNH NAM của cửa chánh của căn nhà .
- cửa chính hướng ĐÔNG NAM (có đường)
- nhưng nhà xe th́ hướng về TÂY NAM (cũng có đường).
- và có thêm 1 cửa ra vào nhà từ trong nhà xe, thuộc hướng Tây bắc .
chu? nha` tuổi Đinh Dậu (1957) , người vợ tuổi Tân Hợi (1971) . họ có 2 đứa con , gái th́ Ất hợi (1995) và trai là Canh Th́n (2000) . nh́n bản đồ nhà th́ huớng bếp là Đông Bắc ( v́ khi nấu ăn th́ mặt của ḿnh hướng về Tây Nam ) . sang nghĩ HƯỚNG NGỦ tốt cho 2 vợ chồng th́ đầu hướng ĐÔNG BẮC . VÀ đứa con gái khi ngủ và khi ngồi học bài th́ mắt hướng CHÁNH Bắc . con trai khi ngủ và khi ngồi học bài th́ mắt quay về hướng Đông Bắc .
xin hỏi , mấy hướng NHÀ VÀ CỬA (cửa chánh (đông nam)và cửa vô từ garage(tây bắc) ) , hướng BẾP và hướng NGỦ của họ có tốt không ? nếu có cái ǵ xấu th́ xin quy' vi. vui ḷng chỉ cách hóa giải .
sang rất cảm ơn .
kính
sang
__________________ Growing
Living
Loving
Giving
|
| Quay trở về đầu |
|
| |
longly Hội viên


Đă tham gia: 30 December 2003 Nơi cư ngụ: United States
Hiện giờ: Offline Bài gửi: 307
|
| Msg 2 of 27: Đă gửi: 25 October 2005 lúc 9:47pm | Đă lưu IP
|
|
|
Sơ đồ căn nhà bạn Sang nhờ upload:
Tôi đă sửa h́nh cho nhỏ lại . Xin đừng đăng h́nh qúa lớn . Nếu có người nhờ đăng h́nh qúa khổ th́ yêu cầu họ thu cỡ nhỏ lại trước khi đăng nhé . Thành thật cám ơn .
Sửa lại bởi Quan Tri Vien 3 : 11 November 2005 lúc 12:34pm
__________________ Nhất thân nhất kiếm tầm long mạch
Bách sơn bách hướng ngoái cổ t́m
|
| Quay trở về đầu |
|
| |
dinhvantan Hội viên


Đă tham gia: 20 September 2003 Nơi cư ngụ: Vietnam
Hiện giờ: Offline Bài gửi: 6262
|
| Msg 3 of 27: Đă gửi: 25 October 2005 lúc 10:29pm | Đă lưu IP
|
|
|
LongLy là sư rồi ai mà có ư kiến nữa . Tôi th́ nhận thấy cầu tiêu gần bếp , nếu bếp ở đó th́ không tốt . Nếu bếp trở mặt ra garage th́ động .
|
| Quay trở về đầu |
|
| |
BINHNGUYENQUAN Hội viên

Đă tham gia: 23 December 2003 Nơi cư ngụ: United States
Hiện giờ: Offline Bài gửi: 818
|
| Msg 4 of 27: Đă gửi: 25 October 2005 lúc 11:55pm | Đă lưu IP
|
|
|
Chào Sang,
Em có biết chính xác hướng nhà là bao nhiêu độ không? Với lại nếu nhà nằm cạnh 2 con đường th́ đường nào lớn hơn? Đường phía trước nhà hay đường bên phía garage? V́ nghe em diễn tả th́ tôi thấy h́nh như nhà này được xây trên 1 ngọn đồi quá? Nếu không phải, mà nhà này nằm trong 1 dăy phố th́ những nhà lân cận có cùng hướng với nhà chú em không? Sở dĩ tôi hỏi là v́ muốn xác định toạ-hướng của căn nhà cho chính xác thôi.
BNQ
Chào anh Long Lư,
Như bác Đinh văn Tân đă mở lời rồi, anh là "sư", lại giúp người ta upload sơ đồ nhà lên mà không cho ư kiến th́ ai dám vào đây nữa? Vậy xin anh nếu thấy căn nhà này có dấu hiệu ǵ tốt, xấu th́ xin cứ ra tay trước, rồi mọi người (trong đó có BNQ) sẽ tiếp tục phụ hoạ sau nhé.
Kính anh,
BNQ
|
| Quay trở về đầu |
|
| |
hoangduytam Hội viên

Đă tham gia: 20 May 2005 Nơi cư ngụ: Australia
Hiện giờ: Offline Bài gửi: 169
|
| Msg 5 of 27: Đă gửi: 26 October 2005 lúc 6:45am | Đă lưu IP
|
|
|
Nếu bạn Sang muốn xem theo thuyết Huyền Không Phi Tinh th́ để các bác như BNQ xem ...c̣n nếu muốn có second opinion xem theo thuyết Huyền Không Lục Pháp th́ bạn hăy cho thêm chi tiết :
1) Ddọc toạ độ (cứ đứng xoay mặt vào tường . Ddọc hai góc tường khác nhau - 90 đô..) . Chú Ư là ở Canada độ compass khác với độ của hướng Bắc Thực rất nhiều cho nên cho biết thêm thành phố đang cư ngụ để đổi sang hướng Bắc Thực .
2) Gởi lên Environment Plan
3) Chụp vài tấm h́nh h́nh từ các cửa nhà và cửa sổ
4) Chấm chính xác các nơi khí có thể thông ra vào như là cửa nhà, cửa sổ , máy lạnh , máy sưởi , quạt vân vân ...
5) nếu được xin vẽ vào chính xác các vị trí đặt giường và nơi nào là nơi các vị trong nhà sẽ ngủ .
__________________ Tha^n,
Hoa`ng Duy Ta^m
|
| Quay trở về đầu |
|
| |
|
|
longly Hội viên


Đă tham gia: 30 December 2003 Nơi cư ngụ: United States
Hiện giờ: Offline Bài gửi: 307
|
| Msg 6 of 27: Đă gửi: 26 October 2005 lúc 10:37pm | Đă lưu IP
|
|
|
Chào các bác,
Ấy ấy, các bác tha cho em nó với. Xin bác Đinhvantan chớ phong "sư" kẻo em nó bị đạp xuống núi, không c̣n cơ hội dùi mài phong xủi nữa. Nhân lúc ông anh BNQ có dịp giá lâm hội quán, em nó vội dán vài h́nh rồi lui vào góc ngồi nghe ông anh luận giải, chứ có dám múa ŕu đâu. Mấy hôm nay không biết em nó bị nguyệt tinh Ngũ Hoàng hay bị cúm ... gà tây vật cho cả tháng mà mắt, mũi th́ chảy ṛng ṛng, miệng th́ ho sù sụ. Bà xă cứ quở "không lo đi ngủ sớm, cả ngày chúi mũi dzô cái cơm-pui-tơ th́ làm sao mà khỏi được". Hôm qua em út nó nhờ dán h́nh th́ cũng ráng làm để các bác có h́nh mà luận. Hy vọng hôm nào khỏe lại, sẻ hầu chuyện với các bác sau.
Kính,
LongLy.
__________________ Nhất thân nhất kiếm tầm long mạch
Bách sơn bách hướng ngoái cổ t́m
|
| Quay trở về đầu |
|
| |
sang Học Viên Lớp Phong Thủy


Đă tham gia: 21 July 2005 Nơi cư ngụ: Canada
Hiện giờ: Offline Bài gửi: 179
|
| Msg 7 of 27: Đă gửi: 29 October 2005 lúc 10:07pm | Đă lưu IP
|
|
|
sang xin cám ơn bác LongLy đă giúp sang upload h́nh và cầu mong sao cho bác LongLy mau sớm hết bịnh , để có dư sức ngồi wính cơm piu tơ . sang cũng đang chờ đợi được nghe lời phân tích của bác LongLy .
sang kính chào bác DinhVanTan và kính chúc bác DinhVanTan luôn dồi dào sức khỏe . Thưa bác , nhà bếp th́ trở mặt ra garage , c̣n cái tủ lạnh th́ chung vách với cái washroom . cái sink rửa chén th́ nằm hướng cửa sổ . xin bác DinhVanTan vui ḷng giải thích thêm về cái từ "động" trong câu : Nếu bếp trở mặt ra garage th́ động . và thưa bác DinhVanTan , nếu cái bếp trở mặt hướng Tây Bắc (320 độ) và cái sink rửa chén hướng về cái garage ( Tây Nam , 230 độ ) th́ có tốt cho gia chủ không ??
sang kính chào bác BinhNguyenQuan . thưa bác BinhNguyenQuan .
- hướng nhà (cửa chánh )chính xác là 138-140 độ ( Đông Nam ) và cửa garage th́ đúng 230 độ ( Tây Nam )
- 2 con đường , Đường phía trước nhà và đường bên phía garage , đều có 2 lanes bằng nhau ?
- nhà này nằm trong 1 dăy phố và những nhà lân cận th́ cùng hướng với nhà của chú sang .
xin ba'c BinhNguyenQuan vui lo`ng giu'p cha'u .
kính chào bác HoangDuyTam, sang rất mong được nghe opinion của bác about my uncle house :
1) thành phố của sang ở tên là Guelph, Ontario, Canadạ c̣n căn nhà th́ chỉ mới xây được cái foundation thôi , tuần sau mới lên frame .
2) sang sẽ hỏi thăm city hall về cái Environment Plan , and will upload it ASAP .
3 và 4 ) kính nhờ bác Longly vui ḷng upload thêm mấy tấm h́nh từ các cửa sổ mà sáng sẽ send trong email ( please please please )
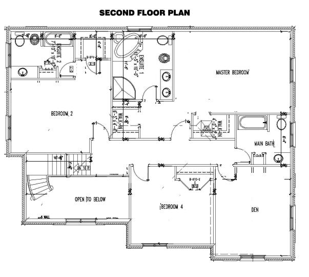
5) xin bác HoangDuyTam vui ḷng nh́n vào cái secondfloor plan .
master bedroom : pḥng chú / thím của sang ( chồng tuổi Đinh Dậu (1957) , người vợ tuổi Tân Hợi (1971) ) th́ đầu giuờng hướng Tây Bắc ( 320 độ ) .
bedroom 2 : pḥng con gái ( ất hợi )th́ đầu giuờng hướng Đông Nam (cùng hướng của chánh )
bedroom 4 : pḥng con trai ( canh th́n ) th́ đầu giuờng hướng Đông Bắc .
sang rất mong được nghe ư kiến của bác HoangDuyTam và cũng như các bác khác .
kính chúc các bác luôn khỏe mạnh .
sang
__________________ Growing
Living
Loving
Giving
|
| Quay trở về đầu |
|
| |
BINHNGUYENQUAN Hội viên

Đă tham gia: 23 December 2003 Nơi cư ngụ: United States
Hiện giờ: Offline Bài gửi: 818
|
| Msg 8 of 27: Đă gửi: 30 October 2005 lúc 11:49am | Đă lưu IP
|
|
|
Chào anh Long Lư,
Xin anh đừng quá khiêm nhượng như thế. Tŕnh độ của BNQ cũng chỉ đuợc như anh mà thôi, chứ làm ǵ mà có "giá lâm hội quán" được. Hôm nay cậu bé Sang đă cho biết hướng nhà rồi, nên xin anh chớ quá nhún nhường và cho vài lời giải đoán về căn nhà anh nhé. Theo BNQ nhận thấy th́:
1/ Căn nhà xây vào năm Ngũ Hoàng đến toạ là 1 điều cấm kỵ.
2/ Hướng nhà lệch khoảng 3,4 độ là không thuần khí, lại không thể dùng Thế quái được nên thành thế tiến, thoái lưỡng nan. Cho nên tuy có vượng khí tới phía trước nhưng sẽ khó phát tài lộc.
3/ Vị trí cửa trước phạm xuất quái (nằm giữa 2 cung TỐN- LY) nên hoạ dễ tới. Cần phải dời cửa và làm cửa 1 cánh để đưa về 1 cung th́ mới hy vọng tránh đuợc tai hoạ.
4/ Hướng tinh 6 bị Phục ngâm nơi phía sau là điều không tốt cho chủ nhà.
Trên đây chỉ là 1 vài điều mà BNQ nhận thấy, hy vọng là anh sẽ t́m ra những yếu tố thuận lợi hay thất bại khác, đồng thời vạch ra những phương pháp hoá giải cho căn nhà này.
Kính anh, và chúc anh chóng khỏi bệnh nhé.
BNQ
|
| Quay trở về đầu |
|
| |
sang Học Viên Lớp Phong Thủy


Đă tham gia: 21 July 2005 Nơi cư ngụ: Canada
Hiện giờ: Offline Bài gửi: 179
|
| Msg 9 of 27: Đă gửi: 30 October 2005 lúc 1:18pm | Đă lưu IP
|
|
|
thưa bác B́nh Nguyên Quân , nếu chủ nhà không dùng cái cửa chánh đó , mà dùng 1 cánh cửa lớn khác từ trong nhà xe để đi vô nhà ( hướng cửa này là : Tây Bắc , 320 độ ) th́ có thể hóa giải không ?
và thưa bác , ngay phía trước cửa nhà th́ có cái CABLE BOX (cao khoảng 1.5 m , rộng khoảng 1 m ) , xin hỏi có ảnh hưởng ǵ tới căn nhà không ?
kính mong bác B́nh Nguyên Quân và các bác khác giúp đỡ cho chú của sang .
sang
__________________ Growing
Living
Loving
Giving
|
| Quay trở về đầu |
|
| |
hoangduytam Hội viên

Đă tham gia: 20 May 2005 Nơi cư ngụ: Australia
Hiện giờ: Offline Bài gửi: 169
|
| Msg 10 of 27: Đă gửi: 30 October 2005 lúc 6:43pm | Đă lưu IP
|
|
|
Thưa bạn sang, HDT sẽ đợi có đầy đủ dự kiện và sau khi bác BNQ khuyên giải xong , HDT sẽ đóng góp thêm ư kiến ....:)
__________________ Tha^n,
Hoa`ng Duy Ta^m
|
| Quay trở về đầu |
|
| |
longly Hội viên


Đă tham gia: 30 December 2003 Nơi cư ngụ: United States
Hiện giờ: Offline Bài gửi: 307
|
| Msg 11 of 27: Đă gửi: 30 October 2005 lúc 10:54pm | Đă lưu IP
|
|
|
Chào anh BINHNGUYENQUAN,
Hôm nay xin mạng phép khai triển thêm ư kiến của anh, và góp thêm vài điểm để bạn Sang hiểu thêm ứng dụng của các lư thuyết Huyền Không Phi Tinh.
Gửi bạn Sang,
Những lư thuyết mà anh BNQ và tôi đề cập đến là từ bộ môn Huyền Không Phi Tinh. Môn này cũng như các môn phái khác của phong thuỷ điều dựa trên căn bản Ngũ hành và Hậu thiên Bát quái liên hệ với Lạc Thư. Riêng đối với môn này, những lư giải phải dựa trên sự xoay chuyển các sao (phi tinh) được bày bố theo một thời gian nhất định để đoán cát hung cho trạch vận nhà hay mồ mả. Kết hợp với h́nh thái loan đầu để cấu thành một nền tảng căn bản là H́nh-Lư-Khi-Số để giải đáp vậnh mệnh của dương hoặc âm trạch. Đây chỉ là một trong những đặc tính của môn này. Chính v́ những điểm này, khi xét trạch vận phải đ̣i hỏi một số chi tiết quan trọng như hướng nhà, vị trí cửa chính, các pḥng trong nhà, hoàn cảnh xung quanh căn nhà như đường xá, ao hồ, cây cối, v.v. để làm căn cứ luận giải. Có thể bạn có thắc mắc tại sao môn này lại khác với những ǵ các bạn đang học trong lớp Phong Thủy của thầy Quảng Đức. Xin bạn đừng lo, những lư thuyết căn bản trong lớp Phong Thủy sẻ giúp bạn dể dàng tiếp cận với môn Huyền Không Phi tinh này. Nếu bạn muốn tham khảo thêm, trên diển đàn này đă có bài viết Phong-thủy Bát-trạch và Huyền-không-hoc, của anh KepNhut, bạn có thể theo dơi.
Trở lại câu hỏi của bạn, với những chi tiết bạn cung cấp như: hướng nhà là 138-140 độ ( Đông Nam ) và cửa garage th́ đúng 230 độ ( Tây Nam ), được xây năm 2005, thuộc vận 8 hạ nguyên, tinh bàn được bài bố như sau:
Theo tinh bàn nói chung cuộc này được vượng tinh đáo sơn, đáo hướng tức vượng đinh, vượng tài trong vận 8 (từ năm 2004 - 2023). Hướng cửa garage ở 230 độ Tây Nam có sao Nhất Bạch là tiến khi trong vận 8 không xấu lắm đối với ngoại khẩu của căn nhà. Tuy nhiên, khi đi vào chi tiết như năm cất nhà, cửa chính, cửa phụ, v.v. th́ không được tốt lắm. Như anh BNQ đă nêu ở trên:
1/ "Căn nhà xây vào năm có niên tinh Ngũ Hoàng đến toạ là 1 điều cấm kỵ". Năm nay niên tinh Tứ Lục nhập trung cung, Ngũ Hoàng đến Tây Bắc là toạ của căn nhà nên rất xấu khi động thổ ở cung này.
2/ "Hướng nhà lệch khoảng 3,4 độ là không thuần khí, lại không thể dùng Thế quái được nên thành thế tiến, thoái lưỡng nan. Cho nên tuy có vượng khí tới phía trước nhưng sẽ khó phát tài lộc". Nếu hướng nhà là 138-140 độ th́ đúng là không thuần khí. Hướng nhà phải là 135 độ với sai số không quá +/- 3 độ mới được thuần khí. Tuy nhiên khi bạn đo có thể bị sai lệch hoặc bị từ trường ảnh hưởng đến nên bạn cần đo lại tại nhiều điểm ở mặt trước căn nhà mới biết chính xát được.
3/ "Vị trí cửa trước phạm xuất quái (nằm giữa 2 cung TỐN- LY) nên hoạ dễ tới. Cần phải dời cửa và làm cửa 1 cánh để đưa về 1 cung th́ mới hy vọng tránh đuợc tai hoạ". Cách chửa này rất khó v́ đây là nhà mới được thiết kế như bản vẻ. Tuy nhiên nếu muốn trổ cửa một cánh th́ có thể mở ở vách tường đối diện với cửa từ garage vào, v́ ở vị trí này mới nằm đúng vào cung Tốn trùng với hướng chính của căn nhà. Có cửa mở ở vị trí này, căn nhà mới hấp thụ được vượng khí giúp cho tài lộc thăng tiến.
4/ "Hướng tinh 6 bị Phục ngâm nơi phía sau là điều không tốt cho chủ nhà". V́ hướng tinh Lục Bạch ở toạ phạm Phục Ngâm nhưng toạ đă có sơn tinh Bát Bạch là vượng tinh. Cách hoá giải Phục ngâm ở đây là trồng thêm cây cao để tạo thêm thế vững chắc cho sơn tinh, đây gọi là cách "dùng sơn để chế ngự thuỷ", thủy ở đây là hướng tinh Lục Bạch.
Ngoài ra, bạn có thể áp dụng thủy pháp cho căn nhà để tăng cát, giảm hung. Trong vận 8, hướng Tây Nam là linh thần nên có thuỷ. Hướng Tây Nam đă có tiến tinh Nhất Bạnh cộng thêm driveway của garage có thể xem là "giả thủy" nên rất tốt. Bạn cũng có thể đặt hồ cá ở cạnh cửa chính, giáp bức tường đối diện với cửa phụ (nếu không trổ cửa ở đây như đă nói phần trên), v́ nơi đây có hướng tinh Bát Bạch rất tốt cho tài vận. Bên ngoài cửa chính đặt một pond nước cũng rất tốt.
Về cách xem cát hung của pḥng ngủ th́ xét pḥng ngủ như một "tiểu thái cực" của trạch vận. Dùng tinh bàn của căn nhà làm gốc để xét phương vị của cửa pḥng mà luận căn pḥng đó tốt hay xấu.
Đối với master bedroom, cửa pḥng ở hướng Đông Nam, tính từ tâm pḥng, nên được hướng tinh Bát Bạch đắc vượng khí, tốt cho sức khoẻ, tiền bạc, lẫn công ăn việc làm trong suốt vận 8.
Pḥng ngủ số 2 có cửa pḥng ở hướng Đông có hướng tinh Cửu Từ đắc sinh khí trong vận 8, đắc vượng khí trong vận 9 (từ năm 2024 - 2043). Trong vận 8 pḥng này tốt về sức khoẻ, sang đến vận 9 tốt cả cho sức khoẻ, tiền bạc, công ăn việc làm.
Tuy nhiên, pḥng ngủ số 4 và pḥng nhỏ (Den) kế bên đều có cửa pḥng ở hướng Tây bị hướng tinh Ngũ Hoàng là hung tinh gây tai hoạ về tiền bạc lẫn sức khoẻ. Ai dùng những pḥng này nên cẩn thận. Cách hoá giải sao Ngũ Hoàng có thể treo phong linh 6 ống rỗng bằng kim loại ở phía ngoài cửa pḥng. Xin lưu ư, tôi vẫn dùng cách này để chế hoá sao Ngũ Hoàng và thấy có công hiệu, mặc dù trên diễn đàn này có người bày bát cách này nhưng lại không đưa ra một cách nào tốt hơn để thay thế.
Trên đây là cách luận đoán tổng quát dựa trên lư thuyết Huyền Không Phi Tinh. Nói chung, một khi đă được cát tinh hỗ trợ th́ mọi người trong nhà đều được tốt đẹp cả. Ngược lại, khi bị hung tinh chiếu đến th́ không kể nam hay nữ, lớn hay bé đều bị ảnh hưởng cả.
Trở lại phần câu hỏi trên của bạn về cách kê đầu giường cho "chủ nhà tuổi Đinh Dậu (1957), người vợ tuổi Tân Hợi (1971)". Nếu theo phái Bát Trạch th́ người chồng thuộc Tây tứ mệnh, vợ thuộc Đông tứ mệnh. Như vậy tuổi của hai người đă "chơi" nhau rồi, có nghĩa là căn nhà có cửa chính ở hướng Đông Nam chỉ tốt cho vợ, không tốt cho chồng. Ngoài ra, bạn c̣n đề nghị "HƯỚNG NGỦ tốt cho 2 vợ chồng th́ đầu hướng ĐÔNG BẮC". Trong khi đó, hướng ĐÔNG BẮC lại tốt cho chồng, không tốt cho vợ. Nói riêng về cách đặt giường ngủ theo phái H́nh Lư th́ đầu giường nên tránh đặt kề vách pḥng tắm, tránh đặt kề cửa sổ. Như vậy đối với master bedroom của căn nhà này th́ chỉ c̣n hướng Tây Bắc là thích hợp nhất để xoay đầu giường. Nói chung, cách chọn hướng để kê đầu giường như thế cho thấy sự kết hợp hài hoà giửa các lư thuyết phong thủy. Một khi căn pḥng được cát tinh th́ căn bản đă tốt rồi, giường xoay hướng nào cũng không thành vấn đề. Ngược lại, nếu căn pḥng bị hung tinh chiếu đến và không có cách hoá giải, th́ giường quay hướng nào cũng không thoát hoạ của hung tinh đưa đến.
Trên đây chỉ là phần luật tổng quát. Nếu bạn c̣n thắc mắc, xin cho biết. Tôi sẻ cố gắng trả lời thêm.
Kính,
LongLy.
Làm ơn đừng đăng h́nh qúa lớn . Cám ơn
Sửa lại bởi Quan Tri Vien 3 : 11 November 2005 lúc 12:31pm
__________________ Nhất thân nhất kiếm tầm long mạch
Bách sơn bách hướng ngoái cổ t́m
|
| Quay trở về đầu |
|
| |
BINHNGUYENQUAN Hội viên

Đă tham gia: 23 December 2003 Nơi cư ngụ: United States
Hiện giờ: Offline Bài gửi: 818
|
| Msg 12 of 27: Đă gửi: 03 November 2005 lúc 1:58am | Đă lưu IP
|
|
|
Chào anh Long Lư,
Mấy ngày qua bận quá nên không ghé vào mục này, không ngờ là anh đă đưa h́nh căn nhà lên với chi tiết rất rơ ràng về các phương hướng của căn nhà, cũng như giảng giải khá đầy đủ về cát, hung, hoạ phước của căn nhà này. Hôm nay BNQ chỉ xin được thêm 1 vài chi tiết cho xong đi để cho cậu bé Sang khỏi phải chờ đợi lâu thêm nữa, cũng như để cho anh Hoàng duy Tâm có cơ hội đóng góp ư kiến thêm về ngôi nhà này. Căn nhà này theo BNQ nghĩ th́ rất xấu và khó ḷng cứu chữa, ngoại trừ làm lại cửa trước c̣n 1 cánh và dời vị trí về cung TỴ mà thôi. Lư do là v́:
- Nhà này động thổ cất nhà vào năm có niên tinh Ngũ Hoàng tới phương toạ: điều này hết sức nguy hiểm, v́ sẽ gây tai hoạ cho người trong nhà. Thông thường th́ sao Ngũ Hoàng nếu không nằm chỗ này th́ cũng nằm chỗ khác. Nhưng nếu muốn cất nhà, nhập trạch hay xây đắp mồ mả th́ tuyệt đối phải kiêng kỵ những năm, tháng, ngày, giờ có Ngũ Hoàng chiếu tới toạ, hướng hay trung cung. Nếu bị Ngũ Hoàng chiếu tới hướng ắt sẽ bị hao tổn tài lộc; nếu chiếu tới trung cung th́ trong nhà sẽ dễ phát sinh mọi chuyện đau ốm, nếu chiếu tới toạ th́ nhân đinh dễ bị hao tổn. Nếu anh c̣n nhớ bài của 1 vị tiền bối lăo thành viết ở 1 web site khác về vụ 1 người ở Sài g̣n cứ muốn cất nhà toạ TB, hướng ĐN mà anh cũng đă đăng lên cho người đó đọc trên diễn đàn này. Trong đó, vị tiền bối này có nói nếu cất nhà năm có Ngũ Hoàng tới toạ là sẽ bị hoạ "sát nhân". Tại sao nói là hoạ "sát nhân"? Là v́ nếu cất nhà trong năm đó th́ sau khi vào ở trong nhà sẽ có người chết. Đó là lư do tại sao cổ nhân lại sợ cất nhà vào năm có Ngũ Hoàng tới toạ là vậy. Nguyên do là v́ "sơn chủ nhân đinh, thuỷ quản tài lộc". Mà "sơn" tức là phương toạ của căn nhà, vào lúc cất nhà, nhập trạch mà bị hung sát chiếu tới th́ ắt là sẽ bị hao tổn nhân đinh vậy.
- Khi biết là nhà này có tai hoạ cho người, sau đó nếu nh́n vào trạch vận th́ thấy hướng tinh Lục Bạch nằm tại khu vực phía TÂY BẮC tức là bị Phục ngâm. Mà Lục Bạch là biểu tượng của người cha, người chủ gia đ́nh nên biết là người cha mắc hoạ. Sao Lục bạch ở phương toạ lại nằm chung với sao Cửu tử và Bát bạch. Đúng ra Lục bạch thuộc hành Kim bị Cửu tử hành Hoả khắc, nhưng nhờ có Bát Bạch hành Thổ nằm đó hoá giải nên vô sự. Nhưng nh́n h́nh anh đưa lên th́ thấy có bếp ḷ cũng nằm tại cung đó tức là thành thế Hoả mạnh khắc Kim. Chưa kể là trung cung có 2 sao 9-7 gặp nhau là Hoả hậu thiên nên Lục bạch kim càng bị khắc nặng. Vận tinh Bát bạch ở trung cung và hướng tinh Bát Bạch ở đầu hướng đúng ra có thể tiết chế được Hoả nóng. Nhưng v́ nhà này làm lệch cửa sang phía NAM, nên khí Bát bạch phía trước nhà thiếu tác dụng. Ngược lại, nơi phía NAM là vận tinh và hướng tinh Tam bích đều là hành Mộc tràn vào trợ lực cho Hoả hậu thiên của trung cung. Chẳng những thế khi Tam bích gặp Bát bạch ở trung cung và phía sau th́ lại kết hợp thành bộ sao 3-8 Mộc tiên thiên, trợ giúp cho Hoả khắc Kim. Lục bạch Kim bị Hoả khắc nặng, mà trong trạch bàn, các sao Nhất Bạch thuỷ (vận, sơn và hướng) đều bị Thổ khống chế tức là không có ǵ để cứu chữa nên gia chủ sẽ bị bệnh thổ huyết mà chết.
-Pḥng Master bedroom cũng có trạch vận tương ứng với trạch vận của căn nhà này, lại gặp cầu thang nằm ở khu vực phía NAM của căn pḥng tức là pḥng này cũng có Hoả khí rất mạnh như của căn nhà. Mà người chồng tuổi ĐINH DẬU tức là mạng thuộc quẻ ĐOÀI (Kim). Mạng Kim bị Hoả khắc nên trong 2 người nằm trong pḥng này th́ người chồng sẽ bị tai hoạ nặng.
- Nh́n sang khu vực phía BẮC thấy hướng tinh 2 bị vận tinh và sơn tinh 4 khắc. Số 2 là sao Nhị hắc, hành Thổ, là biểu tượng của người vợ, người mẹ, nằm ở phía BẮC là đă bị sa cơ, thất thế (phương BẮC thuộc hành Thuỷ), lại bị 2 sao Tứ lục Mộc đắc địa xung khắc rất kịch liệt là tượng vợ buồn, cô khổ, trong nhà buồn tẻ hoang vắng, lại hay mắc bệnh về bao tử và đường ruột. Khu vực này lại c̣n có sink rửa chén nên thuỷ nhiều, mộc vượng, sao Nhị Hắc càng bị khắc nặng nên người vợ ắt phải chịu nhiều đau khổ.
- Cửa hông từ garage vào nhà phần lớn là nằm ở cung KHÔN nên cũng không tốt lành ǵ, chỉ mang thêm bệnh tật và Hoả khí vào trong nhà mà thôi.
- Khu vực phía ĐÔNG BẮC có hướng tinh Tứ Lục, sơn tinh Lục bạch và vận tinh Nhị Hắc. Phía ĐB thuộc hành Thổ, lại có vận Nhị hắc Thổ tức là Thổ vượng sinh cho kim cứng Lục bạch khắc Tứ lục Mộc. Tứ lục là biểu tượng của con gái trưởng nên biết là cô con gái lớn sẽ vất vả. C̣n hướng tinh Bát bạch thổ (biểu tượng của con trai út)nằm ở khu vực phía ĐÔNG NAM là bị Mộc khắc (phía ĐN thuộc hành Mộc), lại phải sinh xuất cho vận tinh Thất xích Kim. Thất xích Kim lại sinh cho sơn tinh Nhất bạch thuỷ, rồi thuỷ lại sinh Mộc khắc Thổ nên biết người con trai út sức khoẻ kém.
Trên đây chỉ là lược đoán về trạch bàn, c̣n đi vào vận hạn th́ nhà này tuy xây năm nay, nhưng có thể tới sang năm (tức năm BÍNH TUẤT) mới xong. Lúc đó nếu nhập trạch th́ Thái tuế tới phương Tuất (tức phương toạ). Phương này đă có hướng tinh Lục bạch bị Phục ngâm, gặp năm có Thái Tuế chiếu tới nên tai hoạ sẽ phát sinh, nhưng cũng chưa nguy hiểm tới tánh mạng. Qua năm ĐINH HỢI, Thái tuế vẫn tiếp tục nằm ở phương toạ (năm Hợi Thái tuế nằm ở cung Hợi). Năm đó lại là năm tuổi của người vợ và cô con gái, lại bị Thái tuế chiếu tới xung với đầu hướng nên sẽ có tai hoạ nặng xảy đến với gia chủ.
Cho nên nhà này khi nh́n vào phương hướng, thời gian động thổ xây dựng và trạch bàn th́ chỉ thấy toàn điều xấu, nên e rằng sau khi nhập trạch th́ toàn gia sẽ bất an. Do đó, phải dời được cửa trước về vị trí cung TỴ, đồng thời chỉ nên làm cửa 1 cánh để cho khỏi bị lệch ra ngoài cung mà lấy được quẻ thuần tuư. Có như thế th́ cửa mới nhận được vượng khí mà mới phá tan được những hung sát khí tràn ngập trong trạch bàn. Chứ c̣n hướng tinh ở phía trước tuy là vượng khí, nhưng v́ nhà này lệch độ hơi nhiều, mà lại không dùng được thế quái nên vượng tinh ở hướng chỉ là miễn cưỡng, giả tạo mà thôi, không có đủ uy lực mà giải trừ nổi mọi tai hoạ đâu. Riêng với cách "dùng sơn để chế ngự thuỷ" tức trồng cây cao phía sau nhà để hoá giải cách Phục ngâm th́ phải mất thời gian, v́ cây không phải trong 1 sớm 1 chiều mà lớn lên ngay được, trong khi hoạ th́ quá gần kề. Cho nên chỉ có cách dời cửa là hữu dụng nhất trong lúc này.
BNQ
|
| Quay trở về đầu |
|
| |
sang Học Viên Lớp Phong Thủy


Đă tham gia: 21 July 2005 Nơi cư ngụ: Canada
Hiện giờ: Offline Bài gửi: 179
|
| Msg 13 of 27: Đă gửi: 03 November 2005 lúc 4:18am | Đă lưu IP
|
|
|
Thưa bác LongLy và bác B́nh Nguyên Quân .
1) nh́n trên cái sơ đồ mà bác LongLy phân tích , vậy nên làm 1 cửa ở cung trái (533) hay phải (187)?
2) giả sử : nếu làm 2 cửa mà chỉ dùng TUYỆT ĐỐI 1 CÁNH CỬA THÔI , th́ có giảm được cái xấu không ?
3) nếu người trong nhà tuyệt đối không dùng cửa chánh Đông Nam , mà dùng cửa Tây Bắc thông với nhà xe th́ có giảm nạn không ???? đóng hết cửa sổ ở hướng Đông Nam có giảm lại cái khí xấu tràn vô nhà không ???
4) ngay trước cửa chánh có 1 cái CABLE BOX H̀NH CHỮ NHẬT , cao khoảng 1.5 m , dài 1 m và ngang khoảng 2 gang tay , xin hỏi cái này có tốt cho căn nhà không ?
5) Chú của sang sẽ đặt cái hồ cá ở cạnh cửa chính . c̣n bên ngoài cửa chính , thay v́ đặt một pond nước , chú của sang muốn xây 1 bồn cây h́nh chữ nhật để trồng những cây kiểng nhỏ có màu xanh quanh năm . xin hỏi xây 1 bồn để trồng cây như vậy có tốt như là đặt pond nước không ?
6) ở secondfloor , cái pḥng DEN thuộc cung 296 , dùng để làm pḥng học có tốt không ? và tủ sách nên để hướng nào ?
7) nếu đặt 1 con rùa , tượng trưng cho huyền vũ , ở đằng sau ngôi nhà có thể tạo thêm thế vững chắc cho sơn tinh không ? v́ như bác B́nh Nguyên Quân đă nói : Trồng cây th́ lâu mà Họa th́ gần kề .
sự phân tích kỹ càng của 2 bác đă dạy cho sang thêm rất nhiều điều bổ ích . sang vui lắm , sang cám ơn 2 bác Binh Nguyen Quan và Long Ly rất nhiều .
sang kính chúc 2 bác luôn sống an vui và riêng bác Long Ly , sang cầu mong sao cho bác mau sớm hết bịnh và dồi dào sức khỏe để tiếp tục " nhất thân nhất kiếm tầm long mạch " .
kính
sang
__________________ Growing
Living
Loving
Giving
|
| Quay trở về đầu |
|
| |
sang Học Viên Lớp Phong Thủy


Đă tham gia: 21 July 2005 Nơi cư ngụ: Canada
Hiện giờ: Offline Bài gửi: 179
|
| Msg 14 of 27: Đă gửi: 03 November 2005 lúc 4:41am | Đă lưu IP
|
|
|
Thưa bác DinhVanTan ,
sang kính chào bác DinhVanTan và kính chúc bác DinhVanTan luôn dồi dào sức khỏe . Thưa bác , nhà bếp th́ trở mặt ra garage , c̣n cái tủ lạnh th́ chung vách với cái washroom . cái sink rửa chén th́ nằm hướng cửa sổ . xin bác DinhVanTan vui ḷng giải thích thêm về cái từ "động" trong câu : Nếu bếp trở mặt ra garage th́ động . và thưa bác DinhVanTan , nếu cái bếp trở mặt hướng Tây Bắc (320 độ) và cái sink rửa chén hướng về cái garage ( Tây Nam , 230 độ ) th́ có tốt cho gia chủ không ??
kính mong bác DinhVanTan cho cháu thêm ư kiến .
sang
p.s. có lẽ bác DinhVanTan không nhớ cháu , nhưng cháu luôn nhớ đến bác , v́ bác là người đầu tiên đă vui vẻ tận t́nh giải thích những thắc mắc của cháu về Quỷ cốc Toán Mệnh . cháu cảm thấy thật có phước v́ đă được nhiều cao nhân giúp đỡ chỉ dạy .
cây có gốc mới xanh cành tươi ngọn
nước có nguồn mới biển cả sông sâu
kính cảm ơn tất cả những người không quen biết , chưa từng gặp mặt , đă bỏ công sức và thời gian để xây dựng nên trang web này và làm nó ngày càng thêm tươi đẹp .
__________________ Growing
Living
Loving
Giving
|
| Quay trở về đầu |
|
| |
sang Học Viên Lớp Phong Thủy


Đă tham gia: 21 July 2005 Nơi cư ngụ: Canada
Hiện giờ: Offline Bài gửi: 179
|
| Msg 15 of 27: Đă gửi: 03 November 2005 lúc 5:04am | Đă lưu IP
|
|
|
thưa bác Long Ly và bác BinhNguyenQuan
chừng nào mới hết vận 8 ?
và 1 vận là bao lâu ?
__________________ Growing
Living
Loving
Giving
|
| Quay trở về đầu |
|
| |
longly Hội viên


Đă tham gia: 30 December 2003 Nơi cư ngụ: United States
Hiện giờ: Offline Bài gửi: 307
|
| Msg 16 of 27: Đă gửi: 03 November 2005 lúc 1:34pm | Đă lưu IP
|
|
|
Chào anh BINHNGUYENQUAN,
Càng ngày càng thấy cách luận giải của anh thật da dạng, thiên biến vạn hoá, bao gồm nhiêu chi tiết cần thiết cho những hậu bối như tôi được tham khảo để ứng dụng khi có dịp thực hiện những lư thuyết của môn này. Nhiều phần anh đề cập đến, tôi đă đọc được trong sách nhưng v́ chưa hiểu thấu đáo nên đôi khi không dám đưa ra ứng dụng. Rất may có sự giúp đỡ tận t́nh của anh trong phần luận giải nên bây giờ mới hiểu hơn, như vậy là có thể dùng tới sau này.
Trong phần trên, anh nhấn mạnh các hoá giải cho trạch vận căn nhà này là nên mở cửa một cánh ở cung Tỵ. Nếu tôi hiểu đúng theo những ǵ học được ở những phần giải thích khác của anh khi dùng bí quyết thành môn để trổ cửa, th́ đối với trạch vận này trong vận 8 cả hai cung Tốn và Tỵ đều đắc vượng tinh Bát Bạch. Nhưng anh đề nghị mở cửa ở cung Tỵ mà không nhắc đến cung Tốn, có phải c̣n lư do khác cho đề nghị này không?
Kính,
LongLy.
Sửa lại bởi longly : 03 November 2005 lúc 3:36pm
__________________ Nhất thân nhất kiếm tầm long mạch
Bách sơn bách hướng ngoái cổ t́m
|
| Quay trở về đầu |
|
| |
longly Hội viên


Đă tham gia: 30 December 2003 Nơi cư ngụ: United States
Hiện giờ: Offline Bài gửi: 307
|
| Msg 17 of 27: Đă gửi: 03 November 2005 lúc 3:36pm | Đă lưu IP
|
|
|
Chào bạn Sang,
Mục đích của chúng ta tham gia diễn đàn là để học hỏi thêm kinh nghiệm của những người đi trước. V́ thấy bạn là học viên của lớp phong thủy nên chúng tôi cũng muốn khuyến khích bạn trước là để theo đuổi các lư thuyết phong thủy nói chung, sau là học thêm một vài môn có tính cách chuyên hơn, như môn Huyền Không Phi Tinh này chẳn hạn. Cho nên tôi và anh BQN cố gắng luận giải phần câu hỏi của bạn. Tôi cố gắng trả lời rất căn bản dể hiểu cho bạn (v́ sự hiểu biết của tôi c̣n hạn hẹp). Anh BNQ đi thêm vào chi tiết để bạn có dịp kiểm chứng với những ǵ sẻ học được sau này. Cho nên bạn đừng vội "vui lắm" v́ những ǵ anh BNQ luận giải, đối với tôi vẩn c̣n "cao cấp" lắm, phải mất một thời gian mới nắm hết được.
Chính v́ những lư do đó, phần trên tôi cũng để thêm cái link đến bài viết của anh KepNhut về môn HKPT này. Bạn cần đọc qua để có thêm nhiều câu trả lời cho bạn.
Nhân đây, tôi xin trả lời những câu hỏi của bạn. Trong lư thuyết của HKPT, có 3 Nguyên (Thượng, Trung, và Hạ), mỗi Nguyên có 3 Vận, và mỗi vận kéo dài 20 năm. Vận 8 (thuộc Hạ Nguyên) bắt đầu từ năm 2004 đến 2023. Sau đó là Vận 9 (2024 - 2043), rồi trở lại Vận 1 (thuộc Thượng Nguyên). Bạn có thể tham khảo tiếp phần này trong bài viết nói trên.
1) Vị trí mở cửa. Theo anh BNQ đề nghị th́ nên mở cửa ở cung Tỵ, vậy cung Tỵ ở toạ độ nào? Ngắn gọn, bạn lấy 360 độ chia cho 24 cung, mỗi cung chiếm 15 độ. Mỗi hướng trên la bàn có 3 cung (8 hướng = 24 cung). Tâm điểm của cung Tư là 0 độ. Cung Tỵ cách cung Tư 10 cung, tâm điểm của cung Tỵ là 150 độ. Vậy tâm cửa nên trùng với vị trí 150 độ của la bàn.
2) Nếu làm cửa 2 cánh mà chỉ dùng TUYỆT ĐỐI 1 CÁNH CỬA THÔI, th́ có giảm được cái xấu không? Trên đời không có ǵ là TUYỆT ĐỐI. Hơn nữa cả hai cánh cửa của căn nhà này đều bị xuất quái, cho nên dùng cánh nào cũng bị nhiều xấu hơn tốt.
3) Cửa phụ thông với nhà xe không phải hướng Tây Bắc, mà thuộc Trung cung của căn nhà. Nơi đây có hướng tinh Thất Xích chiếu đến. Thất Xích là thoái tinh trong vận 8, nếu kết hợp với niên tinh và nguyệt tinh xấu th́ sẻ có ảnh hưởng xấu khi dùng cửa ở đây thường xuyên. Phần nhiều các nhà đều dùng cửa thông với garage, không bao giờ chịu đi ṿng lối trước hay lối sau. Cho nên tôi mới đề nghị đặt hồ cá đối diện ở cửa phụ trong trường hợp nhà này để làm giảm ảnh hưởng của Thất Xích.
Đóng hết cửa sổ ở hướng Đông Nam có giảm lại cái khí xấu tràn vô nhà không? Cái này cũng c̣n tuỳ. Ví dụ khi cơ thể của bạn khoẻ mạnh rồi th́ có nốc một vài chai Cognac cũng chẳn ăn thua ǵ. Nhưng khi cơ thể bị tử khí tràn vào nhiều rồi, có kiên cữ cũng bị "mắt, mũi th́ chảy ṛng ṛng, miệng th́ ho sù sụ" .
4) Nếu cái CABLE BOX ngay trước cửa chánh không tốt cho căn nhà th́ bạn có dám bứng nó đi không ? Có những cái ḿnh không thay đổi được th́ t́m cách chế giải nó. Có cái cần phải chế hoá trước để toàn cuộc được tốt đẹp, những cái lặt vặt khác không cần thiết phải để ư đến.
5) Bên ngoài cửa chính nên để trống thoáng hoặc đặt một pond nước th́ tốt hơn. V́ hướng này thuộc Đông Nam có hướng tinh đắc vượng khí. V́ toạ thuộc sơn nên cao ráo, hướng thuộc thuỷ nên trống thoáng hoặc có nước th́ tốt hơn.
6) Nếu không dùng làm pḥng ngủ và treo một phong linh bên ngoài cửa pḥng, th́ cái DEN dùng làm pḥng học không sao cả. Tủ sách nên để hướng nào c̣n tùy vào cách bố trí trong pḥng.
7) Rùa tượng trưng cho huyền vũ nhưng không dùng làm sơn được v́ cách "dùng sơn để chế ngự thuỷ" phải có những vật cụ thể có chiều cao như núi cao, cây cao, nhà cao. Trong khi huyền vũ, thanh long, bạch hổ là những vị trí, mà những vị trí này cần những vật cụ thể th́ mới hoá giải được cái xấu.
Hy vọng phần luận giải trên và phần trả lời này giúp bạn hiểu thêm về phong thủy và môn HKPT. Nếu ông chú và gia đ́nh c̣n ở căn nhà này lâu dài, hy vọng bạn có thể theo dơi để t́m những cách hoá giải hiệu quả cho mọi người trong nhà. Biết đâu ông chú có phúc tốt nên có được người cháu như bạn đứng ra chống đỡ cho tai qua nạn khỏi. Đấy mới đúng với câu "Thiên, Địa, Nhân", cho dù gặp Địa xấu nhưng được Nhân quả tốt và Thiên ân tràn đầy th́ mọi việc đều tốt đẹp.
Kính,
LongLy.
Sửa lại bởi longly : 03 November 2005 lúc 3:44pm
__________________ Nhất thân nhất kiếm tầm long mạch
Bách sơn bách hướng ngoái cổ t́m
|
| Quay trở về đầu |
|
| |
BINHNGUYENQUAN Hội viên

Đă tham gia: 23 December 2003 Nơi cư ngụ: United States
Hiện giờ: Offline Bài gửi: 818
|
| Msg 18 of 27: Đă gửi: 04 November 2005 lúc 9:30pm | Đă lưu IP
|
|
|
Chào anh Long Lư,
Huyền không phi tinh quả thật huyền diệu, thiên biến vạn hoá vô cùng, chứ chẳng phải là BNQ tài giỏi ǵ, thật ra cũng chỉ là bỏ công, bỏ sức ngồi nhai đi, nhai lại những ǵ mà Chương trọng Sơn và Thẩm trúc Nhưng đă viết hay giải đoán mà thôi. Hôm nay đây có dịp viết ra cũng chỉ là để cho những ai đi sau có dịp hiểu thêm về lối suy luận và giải đoán trạch vận của Huyền không phái. Nó rất đa dạng và phong phú, chẳng những vừa kết hợp giữa lư khí của phi tinh với h́nh thế loan đầu bên ngoài, mà c̣n cả với những vật dụng bên trong, vị trí cửa nẻo...nữa. Một khu vực trong nhà như khu vực phía BẮC của nhà này chẳng hạn, nếu như không có bồn rửa chén, lại để yên không động th́ cũng không đến nỗi xấu cho người vợ lắm. Nhưng v́ có thêm bồn rửa chén mà làm tăng thêm mức độ tai hoạ cho người vợ. Đó là sự kết hợp uyển chuyển giữa lư khí với mọi hoàn cảnh bên ngoài và bên trong để đoán. Cho nên BNQ cũng chỉ muốn muợn trường hợp của cậu bé Sang để làm sáng tỏ điều này cho những ai đang muốn t́m hiểu về Huyền không phái mà thôi.
Riêng đối với vấn đề mở cửa ở phương TỴ th́ 1 phần là do BNQ dựa vào thiết kế của căn nhà này. Nếu đ̣i mở cửa ở phương TỐN ắt phải thay đổi phần thiết kế và như thế sẽ làm hao tốn thêm nhiều cho chủ nhà. C̣n mở cửa ở phương TỴ th́ sẽ dễ dàng và đỡ tốn kém hơn. Mà tác dụng th́ cũng như nhau mà thôi. Cho nên làm Phong thuỷ th́ phải luôn luôn nghĩ đến mọi cách để giúp người, chứ không thể chỉ dựa vào lư thuyết suông mà mặc sức phán, bất kể vấn đề ḿnh nói có hao tổn về tài vật và công sức của người khác hay không? Một phần là người vợ và cô con gái tuổi HỢI, nên nếu mở cửa ở phương TỴ mà đón được vượng khí th́ sẽ tốt hơn cho 2 người này. V́ hướng là TỐN kiêm TỴ, nên gặp những năm TỴ th́ Thái tuế sẽ chiếu tới đầu hướng mà trực xung với tuổi HỢI. Cho nên nếu làm cửa ở phương TỴ, cửa đón được vượng khí th́ khi gặp Thái tuế chiếu tới tức đă vượng lại càng thêm vượng, cho nên hoá hung thành cát. Nếu làm cửa ở phương TỐN th́ tuy cũng đón được vượng khí, nhưng tới năm TỴ th́ người tuổi HỢI bị trực xung, mà lại ở nhà có toạ, hướng tương xung với tuổi th́ tai hoạ sẽ nặng hơn. Vào những năm TỴ khi Thái tuế chiếu đến phương TỴ, trực xung với phương HỢI, mà phương TỴ không có cửa đón vượng khí để hoá giải nên đương nhiên người tuổi HỢI phải gặp điều xấu.
Đôi ḍng suy nghĩ, hy vọng giúp anh được phần nào.
Kính,
BNQ
|
| Quay trở về đầu |
|
| |
longly Hội viên


Đă tham gia: 30 December 2003 Nơi cư ngụ: United States
Hiện giờ: Offline Bài gửi: 307
|
| Msg 19 of 27: Đă gửi: 06 November 2005 lúc 10:54pm | Đă lưu IP
|
|
|
Chào anh BINHNGUYENQUAN,
Anh thật là chu đáo quá. Khi luận giải, anh kết hợp rất nhiều lănh vực như vậy sự ứng dụng có hiệu quả và rộng răi. Như vậy là tôi đă hiểu lư do mở cửa ở cung Tỵ rồi. Rất cám ơn anh.
Chào bạn Sang,
Như vậy là bạn đă có đủ dữ kiện để hiểu được cát hung của căn nhà ông chú. Hy vọng bạn có thể áp dụng và theo dơi rồi cho mọi người biết kết quả.
Kính,
LongLy.
__________________ Nhất thân nhất kiếm tầm long mạch
Bách sơn bách hướng ngoái cổ t́m
|
| Quay trở về đầu |
|
| |
sang Học Viên Lớp Phong Thủy


Đă tham gia: 21 July 2005 Nơi cư ngụ: Canada
Hiện giờ: Offline Bài gửi: 179
|
| Msg 20 of 27: Đă gửi: 12 November 2006 lúc 6:44am | Đă lưu IP
|
|
|
Bé Sang trân trọng kính chào các bậc tiền bối cao nhân khắp bốn phuơng và đặc biệt kính lễ các vị tiền bối dể thuơng : longly , B́nh Nguyên Quân, DinhVanTan , và Hoàng Duy Tâm .
Một năm trời đă trôi qua , bé Sang rất vui mừng v́ thân vẫn c̣n ấm , hơi thở đều ḥa , và tâm cũng thấy vui vui , mặc dù g̣ kim tinh của 2 bàn tay có wá nhiều gạch ngang dọc ( nguời coi chỉ bàn tay nói là : suốt đời sức khỏe kém , và chết sẽ tắt thở ) ....
Thưa bác longly, B́nh Nguyên Quân , DinhVanTan , Hoàng Duy Tâm , sau 1 năm trời theo dơi cát hung của căn nhà th́ bé Sang thấy rằng :
1) Ông chủ nhà th́ vất vả vô cùng: tiền làm ra 10 phần , chỉ c̣n lại 3 phần . 7 phần kia mất 1 cách vô cớ . Thật ra th́ ông chủ nhà có NGUỜI TRÊN ĐỘ (D́ ruột của Ông chủ nhà độ cho ) báo truớc những tai nạn sắp xảy ra , nên ông chủ cũng mừng là tiền mất thay cho mạng . Nhưng nỗi mừng đó của ông chủ nhà không làm sao che lấp nổi buồn phiền bực bội với Vợ và Con Gái . Theo bé Sang nhận xét và tóm gọn bằng 4 chữ : thật không chịu nổi .
2) Bà chủ nhà th́ chẳng những không phụ giúp chồng chăm sóc nhà cửa , lo lắng con cái , mà c̣n kiếm chuyện gây sự và tiêu xài phung phí . xin đuợc tóm tắt bằng 1 câu : "những điều nghe , thấy mà đau đớn ḷng . "
Nghe= ngồi chung xe hơi với ông chủ nhà và 2 đứa con của ổng , trong lúc ông ta lái xe th́ vợ ổng phone : nghe giọng và cách nói chuyện của ông bà chủ nhà , bé Sang cầu mong sao cho họ bớt xung khắc .
Thấy = thấy nhà cửa không ngăn nắp , sạch sẽ . 2 đứa con th́ không đuợc mẹ lo lắng . bé Sang cầu mong sao sẽ có đuợc vợ hiền .
3) Đứa con gái th́ học hành không tập trung . Khi vào nhà mới đuợc mấy tháng , th́ có "lấy tiền của ba mẹ nhưng không có xin phép " . Bây giờ bé Sang thấy nó tánh t́nh cũng tốt , có lễ phép , nhưng học hành vẫn không tập trung . Bé Sang bây giờ đang suy tính coi chừng nào mới tốt : để dẫn nó đi chùa và mong rằng những cái Lạy Phật của nó sẽ giúp tiêu đi ít nhiều nghiệp chuớng .
4) Trai út th́ ngoan hiền và lanh lợi , là niềm an ủi lớn của chủ và là nổi ganh tỵ của bà chủ : v́ nó chỉ thích gần gủi với Ba của nó , gần Mẹ nó th́ nó la khóc hoài .
Nói chung 1 năm qua , gia đ́nh của họ xáo trộn , Hung nhiều Cát ít . cái lay out của căn nhà th́ cũng giống như trên , không ǵ thay đổi (sơ đồ 1 :first floor plan , ở kitchen : bếp huớng ĐN (dựa vào vách tuờng TB , sink huớng ĐB ) . Ông chủ nhà th́ thích và thuờng đi ra vô nhà bằng cửa GARAGE , c̣n bà chủ nhà th́ thích và thuờng đi ra vô bằng cửa chánh .
Bé Sang đă áp dụng những cái mà bé Sang đă học đuợc , để giúp ÔNG BÀ CHỦ NHÀ này . Tuy nhiên , có những cái mà ông chủ nhà không có làm theo , và thời gian đă chứng minh cái kết quả cho Ông chủ nhà thấy .
Đó là những ǵ bé Sang đă thấy trong năm qua . Cám ơn mấy vị tiền bối đă giúp đỡ . v́ có việc phải đi gấp , nên xin tạm dừng ở đây .
Kính chúc các vị tiền bối nhiều sức khỏe .
Trân trọng kính chào ,
bé Sang
__________________ Growing
Living
Loving
Giving
|
| Quay trở về đầu |
|
| |
|
|