Đăng nhập nhanh
Mạnh Thường Quân
  Bảo Trợ
Chức Năng
  Diễn Đàn
  Thông tin mới
  Đang thảo luận
  Hội viên
  Tìm Kiếm
  Tham gia
  Đăng nhập
Diễn Đàn
Nhờ Xem Số
  Coi Tử Vi
  Coi Tử Bình
  Coi Địa Lý
  Coi Bói Dich
  Chọn Ngày Tốt
Nghiên Cứu và
Thảo Luận

  Mệnh Lý Tổng Quát
  Qủy Cốc Toán Mệnh
  Tử Vi
  Tử Bình
  Bói Dịch
  Mai Hoa Dịch Số
  Bát Tự Hà Lạc
  Địa Lý Phong Thủy
  Nhân Tướng Học
  Thái Ất - Độn Giáp
  Khoa Học Huyền Bí
  Văn Hiến Lạc Việt
  Lý - Số - Dịch - Bốc
  Y Học Thường Thức
Lớp Học
  Ghi Danh Học
  Lớp Dịch & Phong Thuy 2
  Lớp Địa Lư
  Lớp Tử Vi
    Bài Giảng
    Thầy Trò Vấn Đáp
    Phòng Bàn Luận
    Vở Học Trò
Kỹ Thuật
  Góp Ý Về Diễn Đàn
  Hỗ Trợ Kỹ Thuật
  Vi Tính / Tin Học
Thư Viện
  Bài Viết Chọn Lọc
  Tủ Sách
Thông Tin
  Thông Báo
  Hình Ảnh Từ Thiện
  Báo Tin
  Bài Không Hợp Lệ
Khu Giải Trí
  Gặp Gỡ - Giao Lưu
  Giải Trí
  Tản Mạn...
  Linh Tinh
Trình
  Quỷ Cốc Toán Mệnh
  Căn Duyên Tiền Định
  Tử Vi
  Tử Bình
  Đổi Lịch
Nhập Chữ Việt
 Hướng dẫn sử dụng

 Kiểu 
 Cở    
Links
  VietShare.com
  Thư Viện Toàn Cầu
  Lịch Âm Dương
  Lý Số Việt Nam
  Tin Việt Online
Online
 102 khách và 0 hội viên:

Họ đang làm gì?
  Lịch
Tích cực nhất
dinhvantan (6262)
chindonco (5248)
vothienkhong (4986)
QuangDuc (3946)
ThienSu (3762)
VDTT (2675)
zer0 (2560)
hiendde (2516)
thienkhoitimvui (2445)
cutu1 (2295)
Hội viên mới
thephuong07 (0)
talkativewolf (0)
michiru (0)
dieuhoa (0)
huongoc (0)
k10_minhhue (0)
trecon (0)
HongAlex (0)
clone (0)
lonin (0)
Thống Kê
Trang đã được xem

lượt kể từ ngày 05/18/2010
Địa Lư Phong Thủy (Diễn đàn bị khoá Diễn đàn bị khoá)
 Tử Vi Lư Số : Địa Lư Phong Thủy
Tựa đề Chủ đề: Xin chi? cho la`m sao cho.n hu*o*’ng nha` Gửi trả lời  Gửi bài mới 
Tác giả
Bài viết << Chủ đề trước | Chủ đề kế tiếp >>
trinh58
Học Viên Lớp Dịch Lư
Học Viên Lớp Dịch Lư


Đă tham gia: 14 March 2006
Nơi cư ngụ: United States
Hiện giờ: Offline
Bài gửi: 58
Msg 1 of 13: Đă gửi: 16 March 2006 lúc 10:58pm | Đă lưu IP Trích dẫn trinh58

Tôi tính mua nhà nhưng sau khi đọc bá Phong Thủy Bát Trạch và Huyền Không Học của anh Kép Nhựt th́ cảm thấy phân vân về hướng nhà thích hợp với tôi, xin nhờ các bác , các chú các anh chị em chỉ giùm.

Tôi sinh năm 1958. Tính số Mê.nh quái th́ là số 5 , nam nên thuộc CÀN
4 hướng tốt là:
Phục vị hướng Tây Bắc
Thiên Y hướng Đông Bắc
Phước Đức hướng Tây Nam
Sinh Khí hướng Tây

Trong sách có nói là Hướng Tây kỵ tuổi CÀN dù đây là hướng Sinh Khí của tuổi nàỵ

Bây giờ tôi hông dám mua nhà hướng Tây nhưng 3 hướng c̣n lại khó t́m nhà quá v́ chổ tôi đang ở nhà thường là theo 4 hướng Đông Tây Nam Bắc, không có Tây Bắc Tây Nam hay Đông Bắc .
Tôi có nên mua nhà hướng về 4 hướng xấu không (Lục Sát , Ngũ qủi , Hoạ Hại , Tuyệt Mạng)
Mong các chú bác và anh chị em giúp giùm

Cám ơn


Sửa lại bởi trinh58 : 16 March 2006 lúc 11:02pm
Quay trở về đầu Xem trinh58's Thông tin sơ lược T́m các bài viết đă gửi bởi trinh58
 
trinh58
Học Viên Lớp Dịch Lư
Học Viên Lớp Dịch Lư


Đă tham gia: 14 March 2006
Nơi cư ngụ: United States
Hiện giờ: Offline
Bài gửi: 58
Msg 2 of 13: Đă gửi: 23 March 2006 lúc 1:46pm | Đă lưu IP Trích dẫn trinh58

Sao hông có bác nào trả lời hết vậy ...Hello forum này đi đâu hết trơn rồi
Quay trở về đầu Xem trinh58's Thông tin sơ lược T́m các bài viết đă gửi bởi trinh58
 
BINHNGUYENQUAN
Hội viên
 Hội viên


Đă tham gia: 23 December 2003
Nơi cư ngụ: United States
Hiện giờ: Offline
Bài gửi: 818
Msg 3 of 13: Đă gửi: 23 March 2006 lúc 9:23pm | Đă lưu IP Trích dẫn BINHNGUYENQUAN


       Chào anh Trinh58,
    V́ đang bận mà lại thấy câu hỏi của anh cũng tương đối đơn giản nên BNQ nghĩ sẽ có vị khác trả lời dùm anh. Nhưng đến nay vẫn không có ai nên BNQ xin góp vài lời. Nếu nơi anh ở mà nhà thường chỉ xây theo 4 hướng chính là BẮC, NAM, ĐÔNG, TÂY th́ anh chỉ chọn được hướng NAM thôi. Nhưng nhớ là trước nhà phải trống, thoáng, không có cây cối che chắn. C̣n nếu chọn nhà hướng BẮC th́ ngược lại, tức là trước nhà nên có cây cối cao, to che, nhưng sau nhà cần trống thoáng và có cửa sau. C̣n những nhà thuộc 2 hướng ĐÔNG-TÂY th́ năm nay không thể mua được, nếu mua th́ dễ bị hao tài, làm ăn thất bại (hướng TÂY), hay tai hoạ cho mọi người trong nhà (hướng ĐÔNG).
   Hy vọng là những ǵ BNQ vừa nói sẽ giúp anh được phần nào trong vắn đề lựa chọn hướng nhà. C̣n muốn đi vào chi tiết th́ phải diễn tả thêm về địa thế cũng như phải có sơ đồ nhà th́ mới có thể nói thêm được.
    BNQ
Quay trở về đầu Xem BINHNGUYENQUAN's Thông tin sơ lược T́m các bài viết đă gửi bởi BINHNGUYENQUAN
 
trinh58
Học Viên Lớp Dịch Lư
Học Viên Lớp Dịch Lư


Đă tham gia: 14 March 2006
Nơi cư ngụ: United States
Hiện giờ: Offline
Bài gửi: 58
Msg 4 of 13: Đă gửi: 24 March 2006 lúc 11:21pm | Đă lưu IP Trích dẫn trinh58

Cám ơn BNQ nhiều lắm nha . Như vậy tôi có thể mua được nhà hướng Nam và hướng Bắc . Hướng Tây th́ chắc tôi hong dám mua đâu , tại v́ tôi đang ở căn nhà hướng nhà là hướng Đoài (Tây) tọa Chấn (Đông) mà cái bếp lại nằm ngay phía nam thuộc sao Sinh Khí , có lẻ bị xui thiệt nên bà xă có bầu mà cứ bị hư hoài , thằng con lớn th́ học hành hong mấy khá ... BNQ có thể cho biết tại sao năm nay hong mua nhà hướng Đông được , được hong dzị
Cám ơn nhiều
Quay trở về đầu Xem trinh58's Thông tin sơ lược T́m các bài viết đă gửi bởi trinh58
 
longly
Hội viên
 Hội viên
Biểu tượng

Đă tham gia: 30 December 2003
Nơi cư ngụ: United States
Hiện giờ: Offline
Bài gửi: 307
Msg 5 of 13: Đă gửi: 25 March 2006 lúc 10:09pm | Đă lưu IP Trích dẫn longly

Chào anh Trinh58,

Tôi xin phụ hoạ anh BNQ trả lời thêm câu hỏi của anh.

Theo lư thuyết Huyền Không Phi Tinh th́ năm nay có hung tinh Ngũ Hoàng đến hướng Tây. Sao này chuyên mang tai hoạ từ bệnh tật, tiền tài thất thoát, đến đủ thứ rủi ro. Nếu xây nhà hay mua nhà có hướng chính ở hướng Tây th́ có nhiều rủi ro thất thoát tiền bạc, v́ hướng nhà có liên hệ đến tiền bạc. Nếu xây nhà hay mua nhà có tọa ở hướng Tây th́ có rủi ro đến sức khoẻ, v́ tọa nhà có liên hệ đến nhân đinh trong nhà. Phần này tôi đă viết trong mục "HKPT Lược Đoán năm 2006". Anh có thể tham khảo thêm.

Tuy nhiên, trong vân 8 (từ năm 2004 - 2023) nhà hướng chính ở hướng Tây có song tinh Bát Bạch là vượng tinh của vận đến hướng, rất tốt cho tiền bạc. Duy chỉ năm nay là không thích hợp để mua hay xây cất, có thể chờ đến hết năm nay th́ tốt hơn.

Trở lại trạch vận nhà anh, theo Bát trạch th́ toạ Chấn hướng Đoài, theo KHPT th́ toạ Măo hướng Dậu, nếu muốn chính xát hơn th́ anh phải đo lại toạ độ hướng nhà. Vấn đề vợ chồng và con anh gặp phải có thể dùng lư thuyết HKPT để hoá giải phần nào, nhưng anh phải cung cấp thêm chi tiết như sơ đồ căn nhà, mô tả thêm chi tiết hoàn cảnh xung căn nhà như đường xá, ao hồ, cây cối, v.v. th́ mọi người mới có dữ kiện luận xét và đề nghị. Theo tôi biết có một trường hợp rất tương tự như gia cảnh của anh đă được anh BNQ luận giải và đề nghị cách hoá giải, sau đó gia đ́nh này được ư nguyện mong muốn.

Nói tóm lại, nếu trạch vận nhà anh được xem xét kỹ th́ anh sẻ có cách hoá giải thích hợp, có thể không phải chuyển nhà bằng cách cải tạo trạch vận để có được vượng tinh đến hướng.

Kính,
LongLy.

__________________
Nhất thân nhất kiếm tầm long mạch
Bách sơn bách hướng ngoái cổ t́m
Quay trở về đầu Xem longly's Thông tin sơ lược T́m các bài viết đă gửi bởi longly
 
trinh58
Học Viên Lớp Dịch Lư
Học Viên Lớp Dịch Lư


Đă tham gia: 14 March 2006
Nơi cư ngụ: United States
Hiện giờ: Offline
Bài gửi: 58
Msg 6 of 13: Đă gửi: 26 March 2006 lúc 11:46am | Đă lưu IP Trích dẫn trinh58

Cám ơn anh LongLy nhiều lắm . Để tôi đi đo góc độ và vẽ lại vị trí căn nhà rồi sẽ post lên, mong nhờ các anh giúp đở cho .
Một lần nữa xin thành thật cám ơn anh và anh BNQ .
Quay trở về đầu Xem trinh58's Thông tin sơ lược T́m các bài viết đă gửi bởi trinh58
 
longly
Hội viên
 Hội viên
Biểu tượng

Đă tham gia: 30 December 2003
Nơi cư ngụ: United States
Hiện giờ: Offline
Bài gửi: 307
Msg 7 of 13: Đă gửi: 27 March 2006 lúc 12:46pm | Đă lưu IP Trích dẫn longly

Chào anh Trinh58,

Khi anh đăng sơ đồ căn nhà, luôn tiện anh cho biết nhà xây năm nào hoặc gia đ́nh dọn vào ở khi nào. Trong thời gian ở nhà này có xây thêm hay sửa chửa phần lớn nào không.

Kính,
LongLy.

__________________
Nhất thân nhất kiếm tầm long mạch
Bách sơn bách hướng ngoái cổ t́m
Quay trở về đầu Xem longly's Thông tin sơ lược T́m các bài viết đă gửi bởi longly
 
trinh58
Học Viên Lớp Dịch Lư
Học Viên Lớp Dịch Lư


Đă tham gia: 14 March 2006
Nơi cư ngụ: United States
Hiện giờ: Offline
Bài gửi: 58
Msg 8 of 13: Đă gửi: 28 March 2006 lúc 10:50pm | Đă lưu IP Trích dẫn trinh58

Chào anh LongLy và anh BNQ,

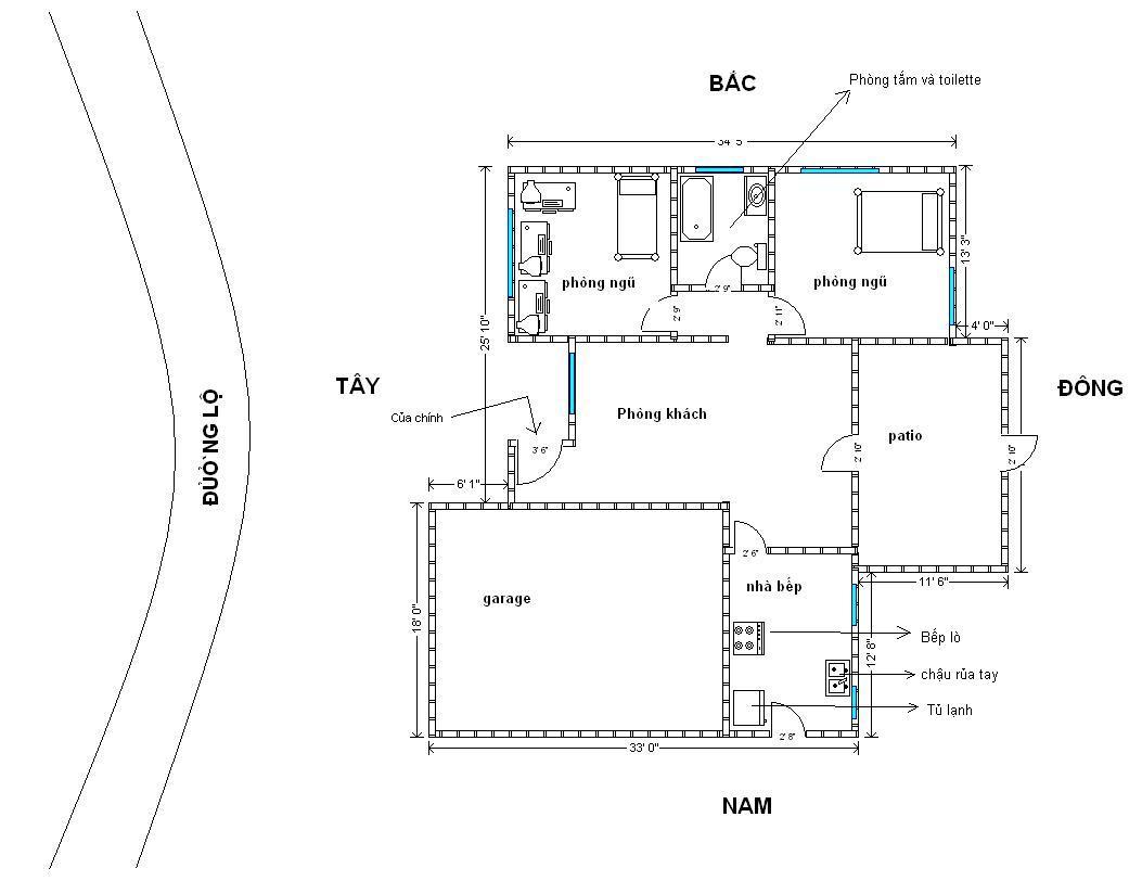
Đây là họa đồ của nhà tôi và h́nh chụp đằng trước và đằng sau, kích thước chắc không chính sát lắm tại v́ tôi đo bằng tay xong rồi vẽ lại .
Căn nhà này xây năm 1951 , tôi mua năm 1993 và dọn vô ở năm 1993 . Khi dọn vào th́ có sơn lại màu snow fox (hơi xám mà nh́n từ xa th́ cũng giống trắng nhưng hong phải là maù trắng ) . Tôi không có sửa chửa ǵ lơ'n lao chỉ lót gạch lại nhà bếp và buồng tắm với lại thay thảm mới .
Căn nhà này nằm trên đồi , h́nh dáng của miếng đất là h́nh thang, trước nhỏ sau hơi lơ'n ra , hướng nhà ra mặt đường là chính Tây 270 độ nhưng cửa chính lại là hướng bắc ( xin coi trong họa đồ ) , căn nhà nằm ngay đường cong của con lộ ( không tốt, mua xong rồi bây giờ mới biết ) trước cửa garage có 1 cái cây không lớn lắm nhưng cũng cao hơn mái nhà , sau nhà th́ có một khoảng sân bằng mặt , và hàng rào bằng gổ , tôi có trồng năm sáu cây Táo tầu , nhản , mảng cầu sát với hàng rào , sau đó là đất dốc xuống , tại v́ nhà ở trên đỉnh đồi .
Nhờ mấy anh coi giùm coi xấu tốt thế nào và cách hóa giải .
Xin thành thật cám ơn

Kính
trinh58





Sửa lại bởi trinh58 : 28 March 2006 lúc 11:12pm
Quay trở về đầu Xem trinh58's Thông tin sơ lược T́m các bài viết đă gửi bởi trinh58
 
longly
Hội viên
 Hội viên
Biểu tượng

Đă tham gia: 30 December 2003
Nơi cư ngụ: United States
Hiện giờ: Offline
Bài gửi: 307
Msg 9 of 13: Đă gửi: 29 March 2006 lúc 11:12pm | Đă lưu IP Trích dẫn longly

Chào anh Trinh58,

Hôm nay có được sơ đồ, tôi xin tranh thủ luận đoán tổng quát trạch vận căn nhà bằng lư thuyết Huyền Không Phi Tinh. Hy vọng anh BINHNGUYENQUAN sẻ bổ xung thêm các chi tiết quan trọng khác.

Căn nhà này xây năm 1951, gia đ́nh anh dọn vô ở năm 1993, như vậy trạch vận thuộc vận 7 (từ năm 1984 - 2003). Nhà hướng chính Tây 270 độ thuộc toạ Măo Hướng Dậu, có tinh bàn như sau:

Xin lưu ư, tôi xoay bản vẻ theo quy tắc của HKPT.



Trong vận 7, phong thủy nhà này rất tốt, được cuộc vượng đinh vượng tài v́ có vượng tinh 7 của hướng đến phía trước và vượng tinh 7 của sơn đến phía sau nhà. Từ năm 1993 đến khoản năm 2001, 2002 th́ kinh tế gia đ́nh và sức khoẻ mọi người rất tốt. Từ khoản năm 2002, 2003 trở đi th́ mọi việc không c̣n tốt đẹp như trước nữa v́ vận 7 đă hết, vận 8 bắt đầu từ năm 2004, cho nên hướng tinh, sơn tinh 7 không c̣ vượng để hổ trợ cho kinh tế cũng như sức khoẻ cho gia đ́nh.

Cụ thể là, trong những năm 93, 94, 95, 96 công ăn việc làm tốt đẹp, tiền bạc dư giả, sức khoẻ rất tốt. Riêng năm 96 có nhiều việc bực ḿnh hơn v́ năm này có niên tinh Lục Bạch Kim đến hướng, kết hợp với hướng tinh Thất Xích Kim tạo thế Giao kiếm sát nên có chuyện tranh chấp bực bội, công việc làm ăn không được thuận lợi như những năm trước.

Các năm sau đó, 97, 98, 99, 2000, 01, 02 th́ t́nh h́nh tài chánh cũng như sức khoẻ kém hơn so với các năm đầu sau khi dọn vào. Năm 97 có niên tinh Ngũ Hoàng Thổ đến hướng, sinh nhập cho hướng tinh Thất Xích nên tài chánh vẩn ổn định, nhưng v́ Ngũ Hoàng là hung tinh nên không tránh được các tai hoạ như bệnh tật, nhiều chuyện tranh chấp, bực bội. Năm 98, 99 có niên tinh Tứ Lục Mộc, Tam Bích Mộc đến hướng bị hướng tinh Thất xích Kim khắc xuất khiến cho hai năm đó bị hao tài, bệnh tật. Riêng năm 99 có thể đă bị hao tài liên quan đến trộm cướp hay bị lường gạt v́ Tam Bích là hung tinh đưa đến hoạ trộm cướp. Năm 2000 có niên tinh Nhị Hắc Thổ đến hướng, sinh nhập cho hướng tinh Thất Xích nên tài chánh có khá hơn đôi chút, nhưng v́ Ngũ Nhị Hắc là hung tinh mang hoạ bệnh tật, nên năm đó không tránh được các tai hoạ như bệnh tật, nhiều chuyện tranh chấp, bực bội, căng thẳng thần kinh. Năm 2001 có niên tinh Nhất Bạch Thủy tới hướng, được hướng tinh Thất xích Kim sinh xuất cho nên năm đó bị thất thoát tiền bạc. Năm 2002 có niên Cửu tử Hỏa tới hướng khắc nhập hướng tinh Thất xích Kim, tuy năm nay tài chánh có khá hơn đôi chúc nhưng Cửu tử gặp Thất Xích tạo thành Hỏa Hậu thiên nên đă có nhiều chuyện gây nóng giận, bực bội ảnh hưởng xấu đến sức khoẻ.

Những năm gần đây, 2003, 04, 05 t́nh h́nh tài chánh và sức khoẻ được tốt hơn đôi chút nhưng không bằnh những năm mới dọn vào. Năm 2003 là năm cuối vận 7, hướng tinh Thất Xích Kim bắt đầu xuy thoái nhưng nhờ có niên tinh Bát Bạch Thổ đến hướng sinh cho hướng tinh Thất xích, nên vấn đề tài chánh rất tốt trong năm. Năm 2004, 2005 có niên tinh Thất Xích và Lục Bạch Kim tới hướng hổ trợ cho hướng tinh nên kinh tế gia đ́nh c̣n cầm cự được. Tuy nhiên v́ hướng tinh Thất Xích bị xuy thoái nên khi bị Kim vượng quá gây ảnh hưởng xấu cho sức khoẻ, như đă nói cho năm 96 ở trên.

Năm nay 2006 có hung tinh Ngũ Hoàng đến hướng, nếu gia đ́nh dùng cửa chính thường xuyên, chắc chắn năm nay là một năm rất xấu cả về tài chính lẩn sức khoẻ. Lại thêm con lộ phía trước cửa tạo thế "phản cung xa" nên hung khí càng xung đột mạnh ở hướng. Riêng tháng 2 DL vừa rồi có nguyệt tinh Thất Xích đến hướng, kết hợp với niên tinh và hướng tinh ở đây th́ có thể đă gây những chuyện bực ḿnh, xung đột, trộm cắp. Đến tháng 3 có nguyệt tinh Lục Bạch Kim tới hướng , kết hợp với niên tinh và hướng tinh ở đây th́ có thể đă gây nhiều xung đột nặng, trộm cướp, hoặc tổn thất lớn về tiền bạc.

Đặt biệt trong tháng 4 tới đây, nếu có thể th́ gia đ́nh nên đóng kín cửa trước, chỉ dùng trong trường hợp khẩn, v́ có nguyệt tinh Ngũ Hoàng đến, kết hợp với niên tinh cũng là Ngũ Hoàng và hướng tinh th́ không thể tránh các đại hoạ từ bệnh tật đến trộm cướp, thất thoát tiền bạc.

Đối với các tháng khác, anh nên đọc qua bài "HKPT Lược Đoán năm 2006" như tôi nói ở trên để biết cách đề pḥng những tháng xấu.

Trên đây là lược đoán những năm trước để anh có cơ hội kiểm chứng năm nào tốt, năm nào xấu, xem có phù hợp với niên tinh mỗi năm không.

Trở lại vấn đề anh đưa ra là sức khoẻ mọi người trong gia đ́nh. Như đă nói ở trên, trong vận 7 sức khoẻ mọi mọi người rất tốt v́ sơn tinh Thất Xích ở toạ là vượng tinh. Mặc dù bếp ở phương vị có hướng tinh Ngũ Hoàng là hung tinh chiếu đến, nhưng trong vận 7 ở toạ và hướng có vượng tinh nên đă hoá giải hầu hết các tai hoạ liên quan đến bệnh tật. Chỉ khi sao sơn, hướng không c̣n vượng (cuối vận 7, qua vận 8) th́ Ngũ Hoàng được hoả của bếp hổ trợ bắt đầu có ảnh hưởng xấu. Cộng thêm ở patio phía sau nhà có hai cửa nối nhau khiến cho những hợp tinh 7-2, 7-5, 2-5 là những hung hoạ có thế xung mạnh vào nhà ảnh hưởng xấu cho sức khoẻ mọi người trong nhà. Hơn nữa, bếp hướng về hướng Đông có hướng tinh Nhị Hắc là hung tinh gây bệnh tật nên gia đ́nh rất khó tránh được tai hoạ này.

Về vấn đề học hành của con anh th́ đúng là có nhiều bất lợi v́ hướng Đông Nam có hợp tinh 1-6 chủ về khoa bảng. Thêm nữa hướng này thuộc Tứ Lục lại có hướng tinh Nhất Bạch toạ thành hợp tinh 1-4 cũng có lợi về học hành. Nhưng nhà anh lại bị khuyết góc Đông Nam nên không thể dùng hướng này để hổ trợ cho việc học hành nên con anh gặp khó khăn trong đường học vấn.

Cách hoá giải tạm thời gồm có:

1) Trong khu vực bếp và cửa chính nên để mỗi nơi một hủ nước pha với muối biển, bỏ vô 6 đồng tiền kim loại (1 cent hay 10 cent cũng được). Treo mồi nơi một phong linh 6 ống rỗng bằng kim loại. Những thứ này có thể hoá giải phần nào hung khí của Ngũ Hoàng.

2) Thay đổi trạch vận bằng cách dọn đi nơi khác, bỏ trống căn nhà một vài tháng (3 tháng là tốt nhất), rồi chọn ngày tốt dọn về. Nếu kết hợp với sơn lại tường, thay thảm, thay ngói nhà th́ hiệu quả cao hơn.

Ngoài những cách trên, anh chỉ có thể đổi nhà để được trạch vận tốt hơn. V́ hướng nhà và cách bố trí cửa, bếp, pḥng trong nhà không thể thay đổi để được tốt hơn.

Trên đây là phần luận đoán tổng quát, nếu anh có thắc mắc ǵ th́ xin cho biết. Tôi hoặc anh BINHNGUYENQUAN sẻ cố gắng giải đáp thêm.

Kính,
LongLy.

__________________
Nhất thân nhất kiếm tầm long mạch
Bách sơn bách hướng ngoái cổ t́m
Quay trở về đầu Xem longly's Thông tin sơ lược T́m các bài viết đă gửi bởi longly
 
BINHNGUYENQUAN
Hội viên
 Hội viên


Đă tham gia: 23 December 2003
Nơi cư ngụ: United States
Hiện giờ: Offline
Bài gửi: 818
Msg 10 of 13: Đă gửi: 30 March 2006 lúc 11:37am | Đă lưu IP Trích dẫn BINHNGUYENQUAN


       Chào các anh Trinh và Long Lư,
     Qua những chi tiết mà anh Trinh đă diễn tả về địa thế, cũng như nh́n vào sơ đồ nhà th́ BNQ xin có 1 vài nhận xét như sau:
    - Nhà tuy được sơn tinh Thất xích tới phía sau nên đúng ra là tốt cho nhân đinh, nhưng v́ nhà nằm ngay trên đỉnh đồi, nên ngay sau nhà tuy có 1 khoảng sân bằng, nhưng sau đó đất bắt đầu nghiêng xuống dốc, nên cũng là 1 h́nh thức "Long thần trên núi hạ thuỷ", chủ suy bại nhân đinh. Đó là chưa kể phía sau cũng có cửa và sân trống nên cũng là 1 h́nh thức thấy "thuỷ". V́ khi khảo sát "thuỷ" chung quanh nhà th́ không phải chỉ để ư đến những sông, nước, ao, hồ... là những h́nh thức "thuỷ" thật, mà c̣n phải theo nguyên lư "cao 1 tấc là sơn, thấp 1 tấc là thuỷ" để chú ư đến đường xá, địa thế thấp, cao của từng khu vực đất đai chung quanh nhà mà tính.
   - Cửa sau nhà này bị khí Nhị hắc Bệnh phù chủ bệnh tật tai ách. Chỗ này lại có 2 cửa thông nhau, khiến cho khí Nhị Hắc xông thẳng vào nhà tạo thành thế "xuyên tâm sát", chủ bệnh tật, tai ách lớn. Bếp lại nằm tại khu vực có hướng tinh Ngũ Hoàng, chủ hao tốn tiền bạc, tai ách, bệnh tật. Khu vực này lại có sơn tinh Nhất bạch Thuỷ bị hướng tinh Ngũ hoàng Thổ và vận tinh Nhị hắc Thổ khắc. Khu vực này lại thuộc cung LY Hoả tức là bị Thổ vượng c̣n được Hoả sinh để vây khắc Thuỷ. Mà sao Nhất bạch là biểu tượng của con thứ, nhất là thứ nam, bị khắc nặng nên chủ con thứ dễ bị chết yểu. Tuy rằng góc ĐÔNG NAM nhà có hướng tinh Nhất bạch gặp vận và sơn tinh Lục Bạch kết hợp thành thuỷ tiên thiên, có thể cứu giải. Nhưng v́ góc ĐÔNG NAM của căn nhà bị khuyết, thuỷ khí không phát huy được nên mới bị tai hoạ hư thai. Tuy rằng có bồn rửa chén có thể cứu nguy phần nào, nhưng nếu nh́n kỹ th́ các khu vực phía NAM, trung cung và phía ĐÔNG (tức là những khu vực bao vây phía ĐÔNG NAM), toàn là Thổ khí đă mạnh lại c̣n được Hoả sinh (phía NAM th́ như đă nói ở trên, c̣n trung cung th́ có 7-9 là Hoả hậu thiên sinh cho Ngũ Hoàng Thổ, mà trung cung cũng là Thổ. C̣n phía ĐÔNG là thuộc hành MỘC sinh cho 7-2 Hoả tiên thiên, Hoả này lại sinh cho vận tinh Ngũ Hoàng Thổ). Cho nên nhà này bị Thổ vượng vây khắc thuỷ nên mới có hoạ cho con cái. Nếu nh́n kỹ hơn th́ có thể đoán do người trong nhà bị suy yếu về thận hay bộ phận sinh đẻ (v́ Nhất bạch thuỷ chủ về thận, tai, máu huyết và những bộ phận sinh sản, nên nếu sao Nhất bạch bị khắc nặng tức người trong nhà bị bệnh về những bộ phận này. Cho nên mới có tai hoạ cho thai nhi. Cách hoá giải là phải mở thêm pḥng ra phu vực phía ĐÔNG NAM, chứ c̣n nếu chỉ dát kiếng hay để cây hoặc trồng cây lớn bên ngoài hay làm hàng rào cao cho khu vực này vuông vức lại cũng không hoá giải được.
    - Cửa trước nhà này lại không nh́n thẳng ra phía trước, mà laị nh́n về phía BẮC, nên trong vận 7 tài lộc chỉ xoàng chứ không khá, v́ không nhận được nhiều vượng khí. Nhưng qua vận 8 th́ có hy vọng khá hơn v́ thế nhà và cửa như thế sẽ nhận được vượng khí Bát bạch từ phía TÂY BẮC đưa tới, nên mọi sự sẽ từ từ thuận lợi hơn trước. Nhưng vẫn không thể giàu có lớn, v́ 1 phần là thế cửa trước như thế, 1 phần là v́ cửa sau vẫn bị tử khí Nhị hắc xông vào nhà mạnh quá. Cho nên dễ có chuyện bị hao tổn lớn về tài lộc. Đúng ra, nhà này bị khí Nhị hắc vào nhà mạnh như vậy th́ nếu không có thai nhi bị chết th́ trong nhà cũng đă phải có người chết rồi. Cho nên cũng c̣n có may mắn là nhờ cửa trước đắc sinh, vượng khí, giúp bảo đảm phần nào cho sinh mạng của người sống trong nhà nên mới có thai nhi thế mạng. Cho nên nhà này nếu muốn khá hơn cả về sức khoẻ lẫn tiền bạc th́ cần phải dời vị trí 1 trong 2 cánh cửa sau sang 1 bên, chứ không thể để thông nhau như thế này được. Nếu cửa sau bên trong mà dời sang sát với bên pḥng ngủ th́ sẽ tốt hơn.
   - Pḥng ngủ của cậu con trai tuy có cửa nằm tại khu vực ĐÔNG NAM của căn pḥng nên đúng ra phải học hành giỏi dang, nhưng v́ lối bố trí trong pḥng và giường ngủ sai nên lại hoá ra là học dốt. Đúng ra là phải kê giường bên góc trong th́ lại dể bàn học hay làm việc tại đó. C̣n giường th́ nằm sát với cửa và buồng tắm. Cho nên vị trí của cửa không c̣n nằm tại khu vực ĐÔNG NAM của giường nữa, mà nằm tại khu vực phía NAM, có Thổ vượng khắc thuỷ (như đă nói trong phần nói về nhà bếp). Phía sau (tức phía ĐÔNG của pḥng và giường ngủ) lại cũng có Thổ vượng khắc thuỷ, mà c̣n có buồng tắm tức là làm cho Thổ khí mạnh lên chứ không phải là có thuỷ đến trợ giúp cửa đâu. Cho nên vị trí của cửa pḥng đúng ra là có Nhất bạch thuỷ chủ thông minh, học giỏi, dễ thành tài, nhưng vị trí giường ngũ sẽ khiến cho Thổ tinh tới vây khắc thuỷ, là tượng THUỶ-THỔ hỗn tạp, nước trong biến thành bùn đặc nên hoá ra học dốt. Cho nên muốn hoá giải th́ phải dời những bàn làm việc sang sát bên buồng tắm, c̣n giường th́ phải đem vào mé trong căn pḥng. Pḥng và cửa pḥng đều phải sơn màu trắng, xám. Những khu vực phía NAM và phía ĐÔNG căn pḥng đều phải treo windchime hay để những vật dụng bằng kim loại. Có như thế th́ cậu bé trong nhà mới có cơ hội học hành giỏi dang được.
    C̣n con lộ phía trước nhà tuy bất lợi, nhưng chừng nào mà cửa trước nhà c̣n có vượng khí th́ cũng không đáng lo. C̣n nếu anh muốn tu sửa hoặc bỏ nhà đi 1 thời gian rồi trở về để cải tạo trạch vận th́ lúc đó nên sửa cửa trước lại cho nh́n thẳng ra phía trước th́ tài lộc sẽ tốt đẹp hơn.
    Đó chỉ là 1 số ư kiến của BNQ. C̣n những chi tiết khác th́ đă có anh Long Lư phân tích hoặc giải đáp cho anh rồi. Chúc anh và gia đ́nh nhiều may mắn nhé.
      BNQ
    
Quay trở về đầu Xem BINHNGUYENQUAN's Thông tin sơ lược T́m các bài viết đă gửi bởi BINHNGUYENQUAN
 
trinh58
Học Viên Lớp Dịch Lư
Học Viên Lớp Dịch Lư


Đă tham gia: 14 March 2006
Nơi cư ngụ: United States
Hiện giờ: Offline
Bài gửi: 58
Msg 11 of 13: Đă gửi: 01 April 2006 lúc 1:25pm | Đă lưu IP Trích dẫn trinh58

Kính chào hai anh LongLy và BINHNGUYENQUAN

Xin chân thành cám ơn hai anh đă dành chút th́ giờ giăi đáp cho những thắc mắc của tôi , thiệt là không biết nói ǵ để diễn tả cảm kích nàỵ

Sau khi đọc xong lời giăi đoán của các anh và những cách hóa giăi tạm thời , tôi sẽ cố gắng làm theo trong lúc này hy vọng nhất là mong cho thằng con học hành khá hơn nhưng có lẻ giăi pháp cuối cùng là phải đi mua nhà khác để được trạch vận tốt hơn v́ như anh LongLy nhận xét là hướng nhà và cách bố trí cửa , bếp , pḥng trong nhà không thể thay đổi để được tốt hơn .
Nói thiệt hai anh đừng cười , tôi muốn có thêm 1 đứa con nhưng thấy bà xă bị hư hoài nên hong dám "try" nữa , chắc là khi nào mua nhà khác th́ mới dám thử lại , hy vọng lúc đó chưa già lắm ...hihihi..bi giờ đă gần 50 rồi .

Một lần nữa xin kính chúc hai anh lúc nào cũng mạnh khỏe để có thể giúp đở giăi đáp thắc mắc cho những hội viên trong forum này

Kính
Trinh58
Quay trở về đầu Xem trinh58's Thông tin sơ lược T́m các bài viết đă gửi bởi trinh58
 
longly
Hội viên
 Hội viên
Biểu tượng

Đă tham gia: 30 December 2003
Nơi cư ngụ: United States
Hiện giờ: Offline
Bài gửi: 307
Msg 12 of 13: Đă gửi: 01 April 2006 lúc 11:58pm | Đă lưu IP Trích dẫn longly

Chào anh Trinh,

Ban đầu tôi cũng hy vọng có thể giúp anh được như ư. Nhưng v́ bếp nhà anh không có những sơn tinh tốt hổ trợ th́ đành phải chịu vậy.

Khi nào anh t́m được căn nhà vừa ư, anh cứ đưa sơ đồ và hướng nhà, mọi người sẻ cho anh ư kiến đẻ anh có thể quyết định phù hợp với nguyện vọng.

Chúc anh nhiều may mắn.

Kính,
LongLy.

__________________
Nhất thân nhất kiếm tầm long mạch
Bách sơn bách hướng ngoái cổ t́m
Quay trở về đầu Xem longly's Thông tin sơ lược T́m các bài viết đă gửi bởi longly
 
trinh58
Học Viên Lớp Dịch Lư
Học Viên Lớp Dịch Lư


Đă tham gia: 14 March 2006
Nơi cư ngụ: United States
Hiện giờ: Offline
Bài gửi: 58
Msg 13 of 13: Đă gửi: 03 April 2006 lúc 8:43pm | Đă lưu IP Trích dẫn trinh58

Cám ơn các anh nhiều lắm . Khi nào tôi t́m ra căn nhà vừa ư cũng hy vọng các anh dành chút th́ giờ giúp đở cho .

Kính
Trinh58
Quay trở về đầu Xem trinh58's Thông tin sơ lược T́m các bài viết đă gửi bởi trinh58
 

Xin lỗi, bạn không thể gửi bài trả lời.
Diễn đàn đă bị khoá bởi quản trị viên.

  Gửi trả lời Gửi bài mới
Bản để in Bản để in

Chuyển diễn đàn
Bạn không thể gửi bài mới
Bạn không thể trả lời cho các chủ đề
Bạn không thể xóa bài viết
Bạn không thể sửa chữa bài viết
Bạn không thể tạo các cuộc thăm ḍ ư kiến
Bạn không thể bỏ phiếu cho các cuộc thăm ḍ

Powered by Web Wiz Forums version 7.7a
Copyright ©2001-2003 Web Wiz Guide

Trang này đă được tạo ra trong 3.1953 giây.
Google
 
Web tuvilyso.com



DIỄN ĐÀN NÀY ĐĂ ĐÓNG CỬA, TẤT CẢ HỘI VIÊN SINH HOẠT TẠI TUVILYSO.ORG



Bản quyền © 2002-2010 của Tử Vi Lý Số

Copyright © 2002-2010 TUVILYSO