| Tác giả |
|
trieu-kim Hội viên


Đă tham gia: 18 May 2006 Nơi cư ngụ: United States
Hiện giờ: Offline Bài gửi: 43
|
| Msg 1 of 13: Đă gửi: 05 June 2006 lúc 10:48pm | Đă lưu IP
|
|
|

Kính gỡi Bác B́nhNguyenQuan và Bác LongLy.
Xin hai Bác nh́n sơ đồ nhà coi giúp giùm cháu với , cháu mới dọn vào nhà này chĩ có 1 năm mà nhiều chuyện lộn xộn trong gia đ́nh quá ,không biết có phăi bị ănh hưỡng bỡi phong thũy nhà không? Xin hai Bác hăy giúp giùm.
Nhà cháu 1 story , nhà này được xây 1971 , c̣n gia đ́nh cháu dọn và đây năm 2005.Nhà cháu ỡ ngay corner , từ trong nhà nh́n ra đường th́ bên tay trái là con đường đại lộ- có hàng thông cao bằng mái nhà- bên tay phăi là nhà hàng xóm (cũng 1 story ), phía sau nhà cũng nhà hàng xóm với một hàng thông chóp nhọn cao quá nhà cháu. C̣n trước mặt nhà cháu khoăng 3 block đường xa xa chếch về hướng nam là một dăy đồi cao. Thế đất cũa nhà cháu th́ bằng phẵng. C̣n sau vườn nhà cháu hướng tây bắc có ḥn non bộ có hồ nhơ với thác nước và tượng Phật Quan Âm cao đướng trên đĩnh ḥn non bộ.Chồng cháu sinh năm 1973 , c̣n cháu sanh năm 1974.Cháu đứng giữa trung tâm nhà đo th́ cữa chánh cũa nhà cháu khơang 167 -169 độ.
Cháu mong hai bác bơ chút th́ giờ giúp cháu với.Xin chân thành căm tạ hai Bác.
Sửa lại bởi trieu-kim : 05 June 2006 lúc 11:02pm
|
| Quay trở về đầu |
|
| |
BINHNGUYENQUAN Hội viên

Đă tham gia: 23 December 2003 Nơi cư ngụ: United States
Hiện giờ: Offline Bài gửi: 818
|
| Msg 2 of 13: Đă gửi: 05 June 2006 lúc 11:11pm | Đă lưu IP
|
|
|
Chào Triệu Kim,
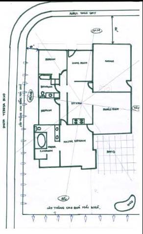
Nếu có thể th́ em thử cầm la bàn ra phía trước và phía sau nhà đo lại hướng nhà coi sao? V́ nếu em đứng ngay giữa tâm nhà để đo hướng nhà hay hướng cửa th́ dễ bị sai lệch lắm, do nhà cửa hiện đại bị rất nhiều làn sóng điện chi phối và làm lệch la bàn. Với lại v́ sơ đồ em đưa lên nhỏ quá, nên ngoài 2 pḥng tắm và garage ra th́ tôi không biết pḥng ngủ là pḥng nào? Bếp và bồn rửa chén tại đâu?... Nên em có thể chú thích thêm vị trí các pḥng được không? Nếu có thêm những chi tiết đó th́ tôi hoặc anh Long Lư sẽ cố gắng giúp em.
Thân,
BNQ
|
| Quay trở về đầu |
|
| |
trieu-kim Hội viên


Đă tham gia: 18 May 2006 Nơi cư ngụ: United States
Hiện giờ: Offline Bài gửi: 43
|
| Msg 3 of 13: Đă gửi: 06 June 2006 lúc 12:52am | Đă lưu IP
|
|
|
|
| Quay trở về đầu |
|
| |
trieu-kim Hội viên


Đă tham gia: 18 May 2006 Nơi cư ngụ: United States
Hiện giờ: Offline Bài gửi: 43
|
| Msg 4 of 13: Đă gửi: 06 June 2006 lúc 12:57am | Đă lưu IP
|
|
|
Kính gỡi Bác B́nhNguyenQuan.
Căm ơn Bác đă tră lời cháu , cháu sữa h́nh lại đễ Bác dễ thấy nhưng cháu phóng lớn nó hơi mờ xin Bác ráng chịu khó dùm.C̣n phía trước và sau cháu đo lại như lời Bác chĩ dẫn là 173 độ ( trước) và 353 độ (sau)
Thanhs again
Sửa lại bởi trieu-kim : 06 June 2006 lúc 12:28pm
|
| Quay trở về đầu |
|
| |
BINHNGUYENQUAN Hội viên

Đă tham gia: 23 December 2003 Nơi cư ngụ: United States
Hiện giờ: Offline Bài gửi: 818
|
| Msg 5 of 13: Đă gửi: 06 June 2006 lúc 11:41pm | Đă lưu IP
|
|
|
Chào Triệu Kim,
Nếu hướng nhà em là 173 độ tức là hướng nhà đă phạm vào hướng Không vong (v́ nằm giữa 2 hướng BÍNH và NGỌ). Đây là 1 hướng xấu, v́ là quẻ Thiên kiêm quẻ Địa, nghịch tử (BÍNH) kiêm phụ mẫu (NGỌ) khí âm-dương lẫn lộn, nên sẽ làm cho người ở không yên, gia vận bất ổn. Nhà này không thể ở lâu, nếu ở lâu sẽ chuốc nhiều tai tiếng. Vợ chồng dễ lục đục, bỏ nhau, trong gia đ́nh cũng có nhiều chuyện bất hoà, xung đột. V́ nhà em bị tạp khí nhiều quá, nên dù cửa trước và cửa garage tuy đắc khí sinh vượng nên đúng ra về tài lộc phải rất khá, nhưng thật ra bị tổn thất rất nhiều, lại c̣n gặp lắm chuyện bực ḿnh nữa. Lại thêm góc ĐÔNG NAM của nhà em có khúc quanh của con lộ là nơi khí tới, nơi này lại có các sơn-hướng tinh 5-2, 3-4, chủ đem đến nhiều bệnh tật và tai hoạ cho gia đ́nh. Lối đi từ ngoài vườn vào garage để vào nhà nằm tại khu vực phía TÂY, có các sơn-hướng tinh 2-5,6-1 nên tuy về công việc làm ăn th́ không đến nỗi, nhưng lại dễ mắc bệnh tật, tai hoạ. C̣n góc TÂY BẮC sau vườn cũng lại bị các sơn-hướng tinh 3-4, 5-2 tức toàn là tử khí, lại c̣n bị Phản Ngâm, Bệnh phù chiếu tới. Mà nơi này c̣n có thuỷ và ḥn non bộ nên cũng chủ bệnh tật, tai hoạ nhiều. Nói chung th́ nhà em do khí không thuần mà phát sinh ra nhiều tai hoạ. Cho nên cách tốt nhất là em nên bán nhà đi nơi khác càng sớm càng tốt. C̣n trong thời gian ở tạm th́ nên làm 1 vài cách hoá giải sau đây:
- Trồng 1 hàng cây hay làm hàng rào bằng gỗ kín, cao khoảng bằng đầu người hay hơn tại khu vực có chổ uốn cong của đại lộ nơi phía ĐÔNG NAM. Hàng rào nên sơn trắng để "phản quang" sát khí nơi con lộ vào nhà.
- Sơn cửa trước màu vàng, ngà hoặc trắng. Nếu cửa trước làm bằng kim loại th́ càng tốt. C̣n nơi cửa garage nếu thường dùng để ra vào c̣n hơn cửa trước th́ nên đặt 1 cặp kỳ lân bằng đá tại đây.
- Lối cửa từ bên hông vào garage nên treo 1 cái windchime, 4,5hoặc 6 ống ǵ cũng được, miễn là làm hoàn toàn bằng kim loại là được.
- Dời ḥn non bộ và hồ nước sang khu vực phía BẮC của căn nhà. Phía BẮC căn nhà nếu có cửa sổ hay cửa ra vào th́ càng tốt. Nếu chỉ có cửa sổ th́ cũng nên mở thường xuyên hơn. C̣n cửa trước của căn nhà cũng nên dùng nhiều để cho vấn đề tài chánh ổn định hơn.
- C̣n bếp ḷ nằm tại nơi phía NAM của pḥng ngủ là không tốt, do hoả khí của bếp, của khu vực phía NAM và của phi tinh đều tới đó nhiếu quá, chủ xung đột, bực bội hoặc bệnh tật về tim mạch, khí huyết. Cho nên pḥng ngủ nên sơn các màu vàng, ngà để làm dịu Hoả xuống. Các pḥng ngủ 1 và 2 đều chủ lắm bệnh tật. Nhất là nhà có con nhỏ th́ phải đề pḥng bệnh sốt phát ban. muốn hoá giải điều này th́ ngoài việc treo windchime ngoài cửa pḥng th́ c̣n phải cần biết đích xác ngày giờ tháng năm sinh của em bé th́ mới có thể có phương pháp hoá giải xác đáng.
Đại khái phong thuỷ nhà em là như thế. Nếu tôi có ǵ sai hay em c̣n có ǵ thắc mắc th́ xin cứ lên tiếng, tôi sẽ cố gắng trả lời cho em.
BNQ
|
| Quay trở về đầu |
|
| |
|
|
trieu-kim Hội viên


Đă tham gia: 18 May 2006 Nơi cư ngụ: United States
Hiện giờ: Offline Bài gửi: 43
|
| Msg 6 of 13: Đă gửi: 07 June 2006 lúc 1:36am | Đă lưu IP
|
|
|
Kính gỡi Bác B́nhNguyenQuan.
Có lẽ Bác nói đúng khí âm dương nhà cháu lẫn lộn nên mọi người không yên , mọi người cứ nóng năy với nhau ṭan chuyện không đâu , chồng cháu th́ cứ thấy lo lắng hồi hộp , c̣n băn thân cháu th́ không yên ngồi nhà là cứ nôn nao cứ muốn ra ng̣ai đường đi làm kiếm tiền.Thật ra vợ chồng cháu vào nhà này làm ra tiền nhiều lắm gấp 3 lần khi trước nhưng lại chi phí gấp......4 lần hơn trước mà cháu không biết làm sao căn được.....out of control luôn.
Thật ra mấy tháng nay tụi cháu cũng có ư muốn dời nhà , phần v́ bất an phần v́ cháu muốn chuyễn gần trường con cháu vậy nếu cháu mua nhà mới xin Bác hăy cho lời khuyên :
1. Tụi cháu nên chọn nhà hướng nào khơang bao nhiêu độ?
2. Cháu nên mua và dọn vào tháng mấy ?
Xin thành thật căm ơn Bác đă bơ thời gian tră lời cho tụi cháu.
|
| Quay trở về đầu |
|
| |
BINHNGUYENQUAN Hội viên

Đă tham gia: 23 December 2003 Nơi cư ngụ: United States
Hiện giờ: Offline Bài gửi: 818
|
| Msg 7 of 13: Đă gửi: 07 June 2006 lúc 9:35pm | Đă lưu IP
|
|
|
Chào Triệu Kim,
Nếu em muốn mua nhà th́ có thể chọn 1 số hướng như sau:
- Nếu nhà hướng NAM: th́ em nên chọn những nhà hướng NGỌ (180 độ) hay hướng ĐINH (195 độ).
- Nếu nhà hướng TÂY NAM: th́ em nên chọn những nhà hướng MÙI (210 độ) mà thôi.
- Nếu nhà hướng TÂY BẮC: th́ chọn nhà hướng CÀN (315 độ) hay hướng HỢI (330 độ).
- Nếu nhà hướng BẮC: th́ nên chọn nhà hướng NHÂM (345 độ) mà thôi.
- Nếu nhà hướng ĐÔNG BẮC: th́ nên chọn nhà hướng SỬU (30 độ) mà thôi.
- Nếu nhà hướng ĐÔNG NAM: th́ nên chọn hướng TỐN 135 độ) hay hướng TỴ (150 độ).
Điều nên nhớ là những nhà này cần có cửa trước nằm ngay chính giữa mặt tiền căn nhà. Chỉ có những nhà hướng NGỌ (180 độ), hướng CÀN (315 độ), hướng TỐN (135 độ) th́ cửa có thể nằm ở chính giữa hay lệch sang bên Phải (nếu đứng từ trong nhà nh́n ra trước) 1 chút cũng được. Nếu cửa lệch sang bên trái (nếu đứng trong nhà nh́n ra trước) th́ tuy được hướng nhưng không được cửa, nên tài lộc sẽ khó khăn.
Một điều nữa là những nhà này phía trước cần rộng, thoáng, không nên có cây cối hay bị nhà cao che chắn nơi phía trước. Nếu trước nhà c̣n có thêm ao, hồ, fountain... th́ càng tốt đẹp.
C̣n những nhà hướng TÂY và ĐÔNG th́ năm nay không nên mua. Chẳng những thế mà năm nay em cũng không nên mua những căn nhà nằm tại khu vực phía TÂY, phía ĐÔNG hay ĐÔNG NAM hoặc TÂY BẮC so với căn nhà mà em đang ở nữa.
Trên đây là 1 số hướng cụ thể để cho em dễ lựa chọn. C̣n có rất nhiều phương hướng khác nữa, nhưng phải tuỳ trường hợp mới có thể quyết định lấy hoặc bỏ. Cho nên những trường hợp đó th́ phức tạp và khó khăn hơn nên tôi không muốn đề cập tới. C̣n vấn đề dọn vào nhà lúc nào th́ c̣n phải tuỳ hướng nhà mới có thể chọn ngày, giờ tốt được. Cho nên việc đó th́ em chờ tới lúc nào mua nhà xong th́ hăy cho tôi biết, tôi sẽ chọn ngày tốt cho em. C̣n vấn đề mua nhà th́ lúc nào cũng được, chỉ có hướng ĐÔNG BẮC và TÂY NAM nếu có mua th́ phải mua và nhập trạch nội trong năm nay, chứ nếu chờ tới qua năm sau th́ sẽ biến cát thành hung, mọi sự đều thất bại.
Thân,
BNQ
|
| Quay trở về đầu |
|
| |
trieu-kim Hội viên


Đă tham gia: 18 May 2006 Nơi cư ngụ: United States
Hiện giờ: Offline Bài gửi: 43
|
| Msg 8 of 13: Đă gửi: 09 June 2006 lúc 12:02am | Đă lưu IP
|
|
|
Kính gỡi Bác BinhNguyenQuan.
Cháu đọc được thư cũa Bác hôm qua nhưng bận quá hôm nay mới tră lời được mong Bác thông căm.
Cháu rất lấy làm căm kích v́ Bác đă nhiệt t́nh bơ thời gian và ḷng tốt chĩ rơ cặn kẽ dùm cháu như vậy. Cháu hy vong sẽ kiếm được nhà đúng hướng theo lời Bác dạy và hy vọng vào nhà mơ'i những chuyện phiền tóai sẽ trôi qua và may mắn sẽ đến trỡ lại với tui cháu . Mọi chuyện yên ỗn như cháu hy vong th́ một ngày nào đó cháu sẽ ghé Indiana đễ căm tạ Bác.  
Kính chúc Bác và ṭan thễ những hội viên đọc thư này điều mạnh khơe và vui vẽ.
|
| Quay trở về đầu |
|
| |
trieu-kim Hội viên


Đă tham gia: 18 May 2006 Nơi cư ngụ: United States
Hiện giờ: Offline Bài gửi: 43
|
| Msg 9 of 13: Đă gửi: 21 June 2006 lúc 6:32pm | Đă lưu IP
|
|
|
Bác B́nhNguyenQuan ới.
Trong nhà cháu ngay pḥng Master Bedroom tự nhiên 1 tuần nay có mùi rất kỳ lạ giống như mùi chuột chết vậy đó , cháu nhờ người sữa ống nươ'c tới kiễm tra tất că ống nước dưới gầm hết că nhà mà không thấy bị bễ nứt hay có con vật ǵ chết hết nhưng không hiễu tại sao lại có mùi hôi , cháu mỡ cữa kiếng cho gió thông thóang vào pḥng cho bớt mùi hôi , th́ đỡ một chút ,nhưng hôm nay cháu đi làm về th́ thấy trong nhà đầy là ruồi , mà ṭan bộ căn nhà cháu rất nhiều skylight mà không hiễu sao ruồi chĩ bám vào skylight cũng trong pḥng Master cũa tụi cháu. Từ khi cháu qua Mỹ đến giờ cháu chưa bao giờ thấy nhiều ruồi trong nhà như vậy.Cháu sợ quá. Xin Bác cho cháu hơi như vậy có điềm ǵ hay không?
Sửa lại bởi trieu-kim : 21 June 2006 lúc 6:34pm
|
| Quay trở về đầu |
|
| |
BINHNGUYENQUAN Hội viên

Đă tham gia: 23 December 2003 Nơi cư ngụ: United States
Hiện giờ: Offline Bài gửi: 818
|
| Msg 10 of 13: Đă gửi: 21 June 2006 lúc 11:50pm | Đă lưu IP
|
|
|
Chào Triệu Kim,
Nếu tự nhiên trong nhà bốc mùi hôi mà không phải do xác thú vật chết dưới hầm hay ống nước bị bể th́ có thể là do trước đây, vùng đất mà căn nhà em hiện tại đang ở đă được dùng làm băi đỗ rác. Sau này khi đă đổ đầy th́ người ta lấp lại và trồng cỏ xanh hay cây cối trên đó cho phân huỷ hết. Rồi nhà thầu mua lại vùng đất này và cất đại nhà lên bán cho mọi người mua ở thôi. Nếu muốn biết chắc chắn th́ em có thể tới sở nhà đất địa phương để t́m xem quá khứ của khu đất mà em đang ở ra sao? Riêng đối với phong thuỷ mà tự nhiên trong nhà có mùi hôi, dù là do xác thú vật chết hay do tự nhiên trong ḷng đất bốc ra (như trường hợp nhà xây trên băi rác như tôi vừa nói) đều là điều gở, không tốt. Nhất là nếu tự nhiên trong nhà lại có ruồi nhặng đầy nhà th́ càng xấu (nếu chúng ngửi thấy mùi hôi mà từ xa bay lại th́ đỡ hơn), chủ xuất hiện nhiều bệnh tật, tai hoạ, hoặc công việc làm ăn sắp đến thời kỳ suy sụp, khó khăn. Nhất là nhà em lại phạm hướng Không vong, gặp điềm này th́ thật là đáng e ngại. Cho nên em nên rời khỏi căn nhà này càng sớm càng tốt.
Mấy ḍng để em khỏi mong. C̣n những thắc mắc khác trong thư riêng th́ có ǵ tới cuối tuần tôi sẽ trả lời cho em.
Thân,
BNQ
|
| Quay trở về đầu |
|
| |
trieu-kim Hội viên


Đă tham gia: 18 May 2006 Nơi cư ngụ: United States
Hiện giờ: Offline Bài gửi: 43
|
| Msg 11 of 13: Đă gửi: 23 June 2006 lúc 1:02am | Đă lưu IP
|
|
|
Kính Gỡi Bác BinhNguyenQuan.
Bác thật Từ Thiện và Nhân Hậu luôn giúp đỡ cháu thật nhiệt t́nh không một chút vụ lợi dù Bác chẳng biết cháu là ai.Cháu kính cẩn cúi đầu đa tạ Bác về tất că ḷng tốt cũa Bác đă dành cho cháu.Cháu cầu chúc Bác luôn có sức khoẽ dồi dào và đôi mắt luôn sáng suốt để mỗi tối vào computer tră lời cho những người cần giúp như cháu. .
Sửa lại bởi trieu-kim : 23 June 2006 lúc 1:04am
|
| Quay trở về đầu |
|
| |
BINHNGUYENQUAN Hội viên

Đă tham gia: 23 December 2003 Nơi cư ngụ: United States
Hiện giờ: Offline Bài gửi: 818
|
| Msg 12 of 13: Đă gửi: 23 June 2006 lúc 9:45am | Đă lưu IP
|
|
|
Chào Triệu Kim,
Xin em đừng có quá lời như thế. Đúng ra nếu em đừng gọi tôi là "Bác" và chê tôi già đến nỗi cần có "đôi mắt sáng suốt" th́ chính tôi mới phải "kính cẩn cúi đầu đa tạ" em mới phải!!!
Chúc em 1 ngày vui vẻ.
Thân,
BNQ
|
| Quay trở về đầu |
|
| |
trieu-kim Hội viên


Đă tham gia: 18 May 2006 Nơi cư ngụ: United States
Hiện giờ: Offline Bài gửi: 43
|
| Msg 13 of 13: Đă gửi: 23 June 2006 lúc 11:03am | Đă lưu IP
|
|
|
Ha.......ha......ha........Bác làm cháu cười muốn bể bụng ,Bác chơi chữ hay quá ăn miếng tră miếng thế mà bảo không phải là............già.
Cháu cũng chúc Bác một ngày vui vẽ.Kính.
|
| Quay trở về đầu |
|
| |